Bildegalleri

Velkommen til Drammensveien 62 - presentert av Tinholt Eiendomsmegling.
FROGNER / SKILLEBEKK
Påkostet og gjennomgående 3-roms selveier|2 ildsteder|Kjøkken 2022| Balkong|Klassiske detaljer| Stor takhøyde
Prisantydning10 490 000 kr
Nøkkelinfo
- Boligtype
- Leilighet
- Eieform
- Eier (Selveier)
- Soverom
- 2
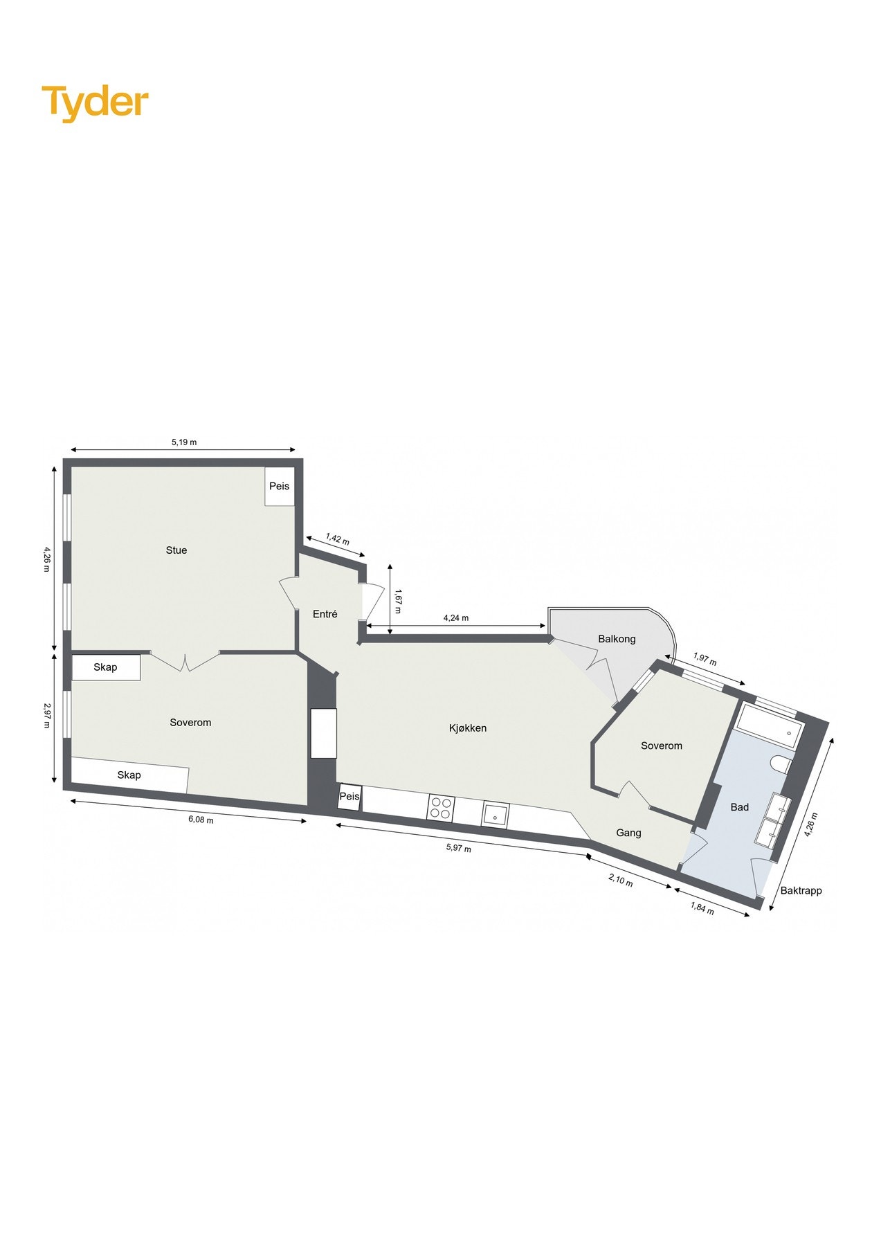
- Internt bruksareal
- 92 m² (BRA-i)
- Bruksareal
- 104 m²
- Eksternt bruksareal
- 12 m² (BRA-e)
- Balkong/Terrasse
- 3 m² (TBA)
- Etasje
- 2
- Byggeår
- 1898
- Energimerking
- G - Oransje
- Rom
- 3
- Tomteareal
- 420 m² (eiet)
Fasiliteter
Barnevennlig
Balkong/Terrasse
Kabel-TV
Offentlig vann/kloakk
Parkett
Peis/Ildsted
Vaktmester-/vektertjeneste
Sentralt
Bredbåndstilknytning
Moderne
Om boligen
Velkommen til en elegant & klassisk 3-roms selveier en klassisk bygård fra 1800-tallet. Her bor du i et av byens mest ettertraktede områder med restauranter, sjarmerende butikker & spesialforretninger i samme gate. Boligen gir et solid inntrykk, har gjennomgått flere oppgraderinger for å sikre høy standard & moderne fasiliteter, samtidig som den opprinnelige sjarmen er bevart. Interiøret preges av lyse og luftige rom med en svært god flyt mellom oppholdssonene. Store vinduer slipper inn rikelig med naturlig lys som sammen med generøs takhøyde skaper en helt spesiell atmosfære.
K V A L I T E T E R
K V A L I T E T E R
- Stilrent kjøkken fra 2022
- Rosett, stukkatur og doble fløydører
- Takhøyde opptil 3,16 m
- Bad, oppusset i 2021
- Gjennomgående plassbygde løsninger i hele leiligheten
- Balkong som vender inn mot bakgården
- Hjørnepeis, stuen & på kjøkken
- Rikelig med bodplass, med 4 boder totalt.
- Off. kommunikasjon i umiddelbar nærhet
NB: Knappen for å vise hele beskrivelsen har kun en visuell effekt.
NB: Knappen for å vise hele beskrivelsen har kun en visuell effekt.
Salgsoppgaven beskriver vesentlig og lovpålagt informasjon om eiendommen
Se komplett salgsoppgaveNærområdet
TINHOLT Eiendomsmegling
Du vil kjenne forskjellen
Annonseinformasjon
| FINN-kode | 441999702 |
|---|---|
| Sist endret | 28. des. 2025 18:01 |
| Referanse | 201250435 |
Annonsene kan være mangelfulle i forhold til lovpålagt opplysningsplikt. Før bindende avtale inngås oppfordres interessenter til å innhente komplett informasjon fra meglerforetaket, selger eller utleier.




























