Bildegalleri

Velkommen til Østre Norderhovskogen 5C! Foto: EFKT. Fotograf: Pål Godager

Moderne og lettstelt 2-roms fra 2019. Sentralt i Løten med parkeringsplass, uteplass og alt på ett plan.

Prisantydning2 000 000 kr
Totalpris
2 051 090 kr
Omkostninger
51 090 kr
Felleskost/mnd.
810 kr
Kommunale avg.
7 671 kr per år
Eiendomsskatt
2 663 kr per år
Formuesverdi
447 541 kr

Nøkkelinfo

Boligtype
Leilighet
Eieform
Eier (Selveier)
Soverom
1
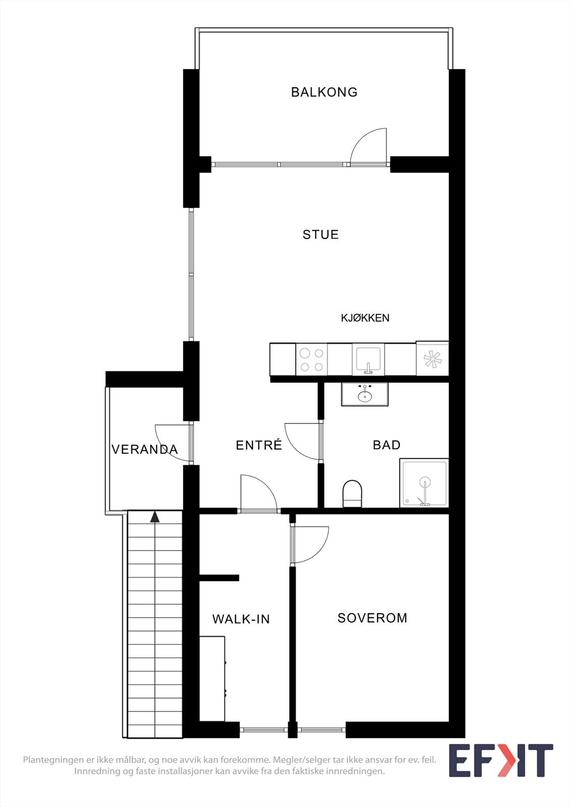
Internt bruksareal
47 m² (BRA-i)
Bruksareal
53 m²
Eksternt bruksareal
6 m² (BRA-e)
Balkong/Terrasse
12 m² (TBA)
Etasje
2
Byggeår
2019
Energimerking
B - Rød
Tomteareal
4 368 m² (eiet)

Les mer om bruksareal her

Fasiliteter

Aircondition
Balkong/Terrasse
Barnevennlig
Bredbåndstilknytning
Kjæledyr tillatt
Kabel-TV
Offentlig vann/kloakk
Parkett
Turterreng
Balansert ventilasjon

Visning

onsdag, 14. januar
16:30 – 17:30
Ønsker du å delta på visningen ber vi deg melde deg på slik at vi vet at du kommer. Da kan vi bistå alle best mulig og gi deg tiden du trenger på visningen. Ta gjerne kontakt med megler før visning hvis du har noen spørsmål. Velkommen!
Visningspåmelding

Om boligen

Velkommen til Østre Norderhovskogen 5C en moderne og lettstelt leilighet i attraktive Brenneriroa!
Dette er et ideelt hjem for deg som ønsker en praktisk og behagelig hverdag, enten du er pendler, førstegangskjøper eller bare ser etter noe lettvint og moderne. Leiligheten ligger i et nyere og rolig boligområde med kort vei til både natur og kollektivtransport perfekt for deg som vil kombinere rolig bomiljø med enkel tilgang til Hamar og Elverum.

Leiligheten er fra 2019 og har en smart planløsning med alt på ett plan. Her får du lyse og åpne oppholdsrom, et soverom, bad, samt en åpen stue- og kjøkkenløsning med utgang til en solrik uteplass et flott sted å nyte kaffekoppen eller en god bok på fine dager.
Egen parkeringsplass og utvendig bod.

Velkommen på visning!

Salgsoppgaven beskriver vesentlig og lovpålagt informasjon om eiendommen

Se komplett salgsoppgave

Nærområdet

Annonseinformasjon

FINN-kode441975654
Sist endret29. des. 2025 09:30
Referanse1250352

Rapporter annonse

Annonsene kan være mangelfulle i forhold til lovpålagt opplysningsplikt. Før bindende avtale inngås oppfordres interessenter til å innhente komplett informasjon fra meglerforetaket, selger eller utleier.