Bildegalleri

EiendomsMegler 1 ved Markus Tangvik har gleden av å presentere en lekker 3-roms leilighet i Stjørdalsveien 9 på Lilleby. Foto: Krokstad & Nervik Boligfotografer, (Jens Martin Nervik)
Lilleby
FANTASTISK 3-ROMS LEILIGHET FRA 2017 I HØY 2.ETG MED STOR BALKONG. Parkering i kjeller. Lave felleskostnader. Heis.
Prisantydning4 290 000 kr
Nøkkelinfo
- Boligtype
- Leilighet
- Eieform
- Eier (Selveier)
- Soverom
- 2
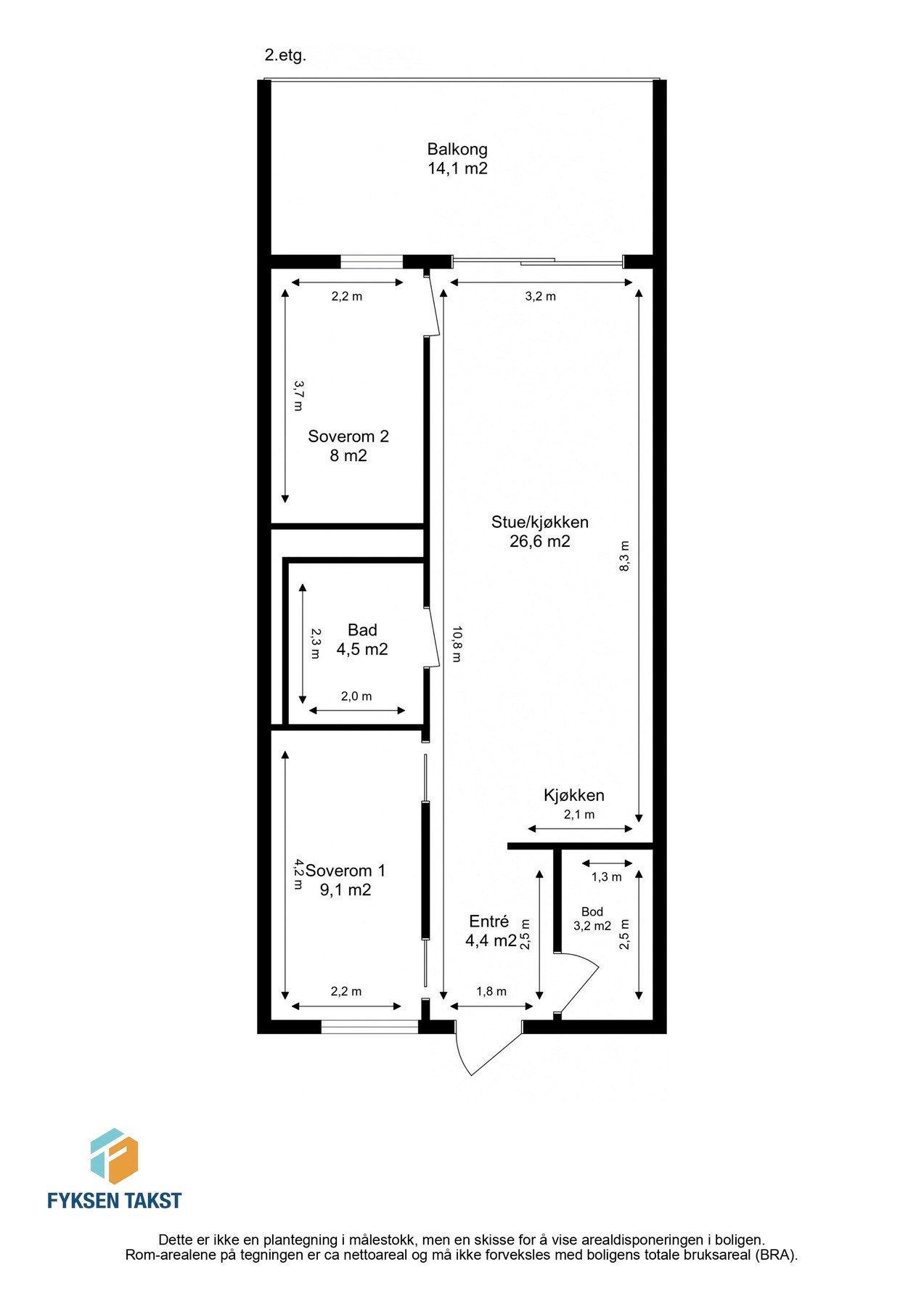
- Internt bruksareal
- 60 m² (BRA-i)
- Bruksareal
- 65 m²
- Eksternt bruksareal
- 5 m² (BRA-e)
- Balkong/Terrasse
- 14 m² (TBA)
- Etasje
- 2
- Byggeår
- 2017
- Energimerking
- B - Mørkegrønn
- Rom
- 3
- Tomteareal
- 1 262 m² (eiet)
Fasiliteter
Barnevennlig
Balkong/Terrasse
Garasje/P-plass
Kabel-TV
Heis
Offentlig vann/kloakk
Parkett
Turterreng
Utsikt
Vaktmester-/vektertjeneste
Sentralt
Bredbåndstilknytning
Moderne
Rolig
Balansert ventilasjon
Visning
tirsdag, 06. januar
15:45 – 16:30
Våre visninger har påmelding. Dette gjør vi for å kunne yte bedre service for våre kunder. Verdifullt for boligkjøper og for oss. Vi anbefaler at salgsoppgaven lastes ned digitalt før visning, og ring oss gjerne på forhånd for spørsmål om boligen. Passer ikke angitt tidspunkt, ta kontakt så finner vi en løsning. Skulle det mot formodning ikke være påmeldte til angitt visningstidspunkt vil ikke visning bli gjennomført.
Om boligen
EiendomsMegler 1 ved Markus Tangvik har gleden av å presentere en lekker 3-roms selveier i Stjørdalsveien 9 på Lilleby. Leiligheten ble ferdigstilt i 2017 og består av tidsriktige og fine materialvalg. Her får du en fantastisk og moderne 3-roms leilighet i høy 2.etasje med både store oppholdsrom, balkong, parkering i kjeller og heis i bygget.
Kvaliteter:
- Stilsikker 3-roms leilighet fra 2017 i høy 2.etg med store oppholdsrom.
- Parkeringsplass i P-kjeller.
- Nydelig balkong på 14 kvm som er ypperlig å benytte i sommerhalvåret.
- Moderne kjøkken fra HTH med integrerte hvitevarer.
- Pent baderom med opplegg for vaskemaskin.
- 2 stk. soverom som er lett å innrede.
- Fjernvarme og balansert ventilasjon.
- Lave felleskostnader, hvor fjernvarme er inkludert.
- Heis i bygget.
- Egen bod i både leilighet og i kjeller.
- Nærhet til Solsiden.
Velkommen på visning!
Kvaliteter:
- Stilsikker 3-roms leilighet fra 2017 i høy 2.etg med store oppholdsrom.
- Parkeringsplass i P-kjeller.
- Nydelig balkong på 14 kvm som er ypperlig å benytte i sommerhalvåret.
- Moderne kjøkken fra HTH med integrerte hvitevarer.
- Pent baderom med opplegg for vaskemaskin.
- 2 stk. soverom som er lett å innrede.
- Fjernvarme og balansert ventilasjon.
- Lave felleskostnader, hvor fjernvarme er inkludert.
- Heis i bygget.
- Egen bod i både leilighet og i kjeller.
- Nærhet til Solsiden.
Velkommen på visning!
NB: Knappen for å vise hele beskrivelsen har kun en visuell effekt.
NB: Knappen for å vise hele beskrivelsen har kun en visuell effekt.
Salgsoppgaven beskriver vesentlig og lovpålagt informasjon om eiendommen
Se komplett salgsoppgaveNærområdet
EiendomsMegler 1 Trondheim sentrum, Kongens gate
Vi loser deg trygt gjennom hele boligsalget
Annonseinformasjon
| FINN-kode | 441865343 |
|---|---|
| Sist endret | 24. des. 2025 12:04 |
| Referanse | 32250390 |
Annonsene kan være mangelfulle i forhold til lovpålagt opplysningsplikt. Før bindende avtale inngås oppfordres interessenter til å innhente komplett informasjon fra meglerforetaket, selger eller utleier.



























