Bildegalleri

Velkommen til Breidablikkstien 4C - en svært innbydende og innholdsrik 3-roms selveierleilighet med kort vei til både Trondheim sentrum og Bymarka. Foto: Joakim Reinaas.
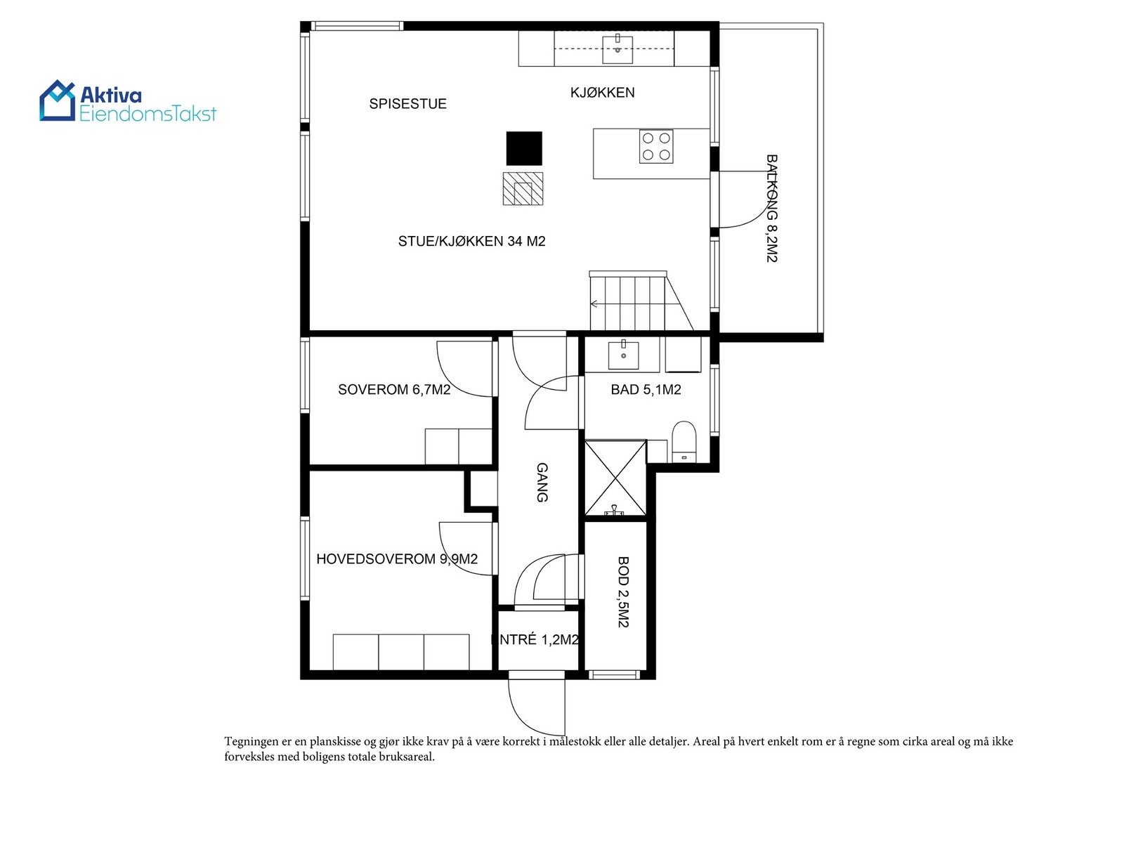
Innholdsrik selveierleilighet over to plan (111 kvm BRA). Nydelig utsikt mot byen. Kjøkken fra 2024. Veranda. P-plass.
Prisantydning4 690 000 kr
Nøkkelinfo
- Boligtype
- Leilighet
- Eieform
- Eier (Selveier)
- Soverom
- 2
- Internt bruksareal
- 91 m² (BRA-i)
- Bruksareal
- 111 m²
- Eksternt bruksareal
- 20 m² (BRA-e)
- Balkong/Terrasse
- 8 m² (TBA)
- Etasje
- 2
- Byggeår
- 2004
- Energimerking
- D - Gul
- Tomteareal
- 909 m² (eiet)
Fasiliteter
Barnevennlig
Balkong/Terrasse
Garasje/P-plass
Kabel-TV
Offentlig vann/kloakk
Peis/Ildsted
Turterreng
Utsikt
Sentralt
Bredbåndstilknytning
Moderne
Rolig
Visning
mandag, 05. januar
16:15 – 17:00
Velkommen til visning!
Alle våre visninger har påmelding. På denne måten sikrer vi at megler har god oversikt og tid til å imøtekomme alle interessenter på beste måte. Dette er veldig verdifullt for boligkjøpere og for oss. Det er enkelt å melde seg på, og du kan like enkelt melde deg av. Kontakt også gjerne megler i forkant av visning dersom du har spørsmål.
Om boligen
Innbydende og innholdsrik 3-roms selveierleilighet med utmerket plassering i en rolig stikkvei på nedre deler av Byåsen. Her bor man skjermet til men samtidig sentralt med god forbindelse til både marka og Trondheim sentrum. Leiligheten har vært gjennom flere oppgraderinger i nyere tid, og fremstår i svært god stand.
En egen veranda med utgang fra kjøkken, samt tilgang på veranda ved eget inngangsparti. Gjennom sommeren kan man nyte sola fra den står opp i øst og ned i vest.
Lyst og romslig stue- og kjøkkenareal på 34 kvm.
Vedovn og varmepumpe med kjøl.
Lekkert kjøkken med integrerte hvitevarer.
Flislagt bad med varmekabler i gulv.
To gode soverom.
Innredet loft (46 kvm GUA) med høy bruksverdi.
Parkering for sameierne.
Felles hage for alle i sameiet.
Godt kollektivtilbud med trikk og buss i umiddelbar nærhet, og direktelinje til både sentrum, Bymarka, St. Olavs og NTNU.
Fin sykkelavstand til nevnte destinasjoner på 5-10 min.
En egen veranda med utgang fra kjøkken, samt tilgang på veranda ved eget inngangsparti. Gjennom sommeren kan man nyte sola fra den står opp i øst og ned i vest.
Lyst og romslig stue- og kjøkkenareal på 34 kvm.
Vedovn og varmepumpe med kjøl.
Lekkert kjøkken med integrerte hvitevarer.
Flislagt bad med varmekabler i gulv.
To gode soverom.
Innredet loft (46 kvm GUA) med høy bruksverdi.
Parkering for sameierne.
Felles hage for alle i sameiet.
Godt kollektivtilbud med trikk og buss i umiddelbar nærhet, og direktelinje til både sentrum, Bymarka, St. Olavs og NTNU.
Fin sykkelavstand til nevnte destinasjoner på 5-10 min.
NB: Knappen for å vise hele beskrivelsen har kun en visuell effekt.
NB: Knappen for å vise hele beskrivelsen har kun en visuell effekt.
Salgsoppgaven beskriver vesentlig og lovpålagt informasjon om eiendommen
Se komplett salgsoppgaveNyttige lenker
Nærområdet

PrivatMegleren Trondheim
Kun det beste på dine vegne
Annonseinformasjon
| FINN-kode | 441727428 |
|---|---|
| Sist endret | 27. des. 2025 19:06 |
| Referanse | 114251256 |
Annonsene kan være mangelfulle i forhold til lovpålagt opplysningsplikt. Før bindende avtale inngås oppfordres interessenter til å innhente komplett informasjon fra meglerforetaket, selger eller utleier.




































