Bildegalleri

Velkommen til Buskveien 14E!
Østerøya
Fantastisk flott nyoppført tomannsbolig med gjennomgående god standard - Kort vei til både byliv og sjø - 3 sov - 2 bad
Prisantydning2 280 000 kr
Nøkkelinfo
- Boligtype
- Tomannsbolig
- Eieform
- Andel
- Soverom
- 3
- Internt bruksareal
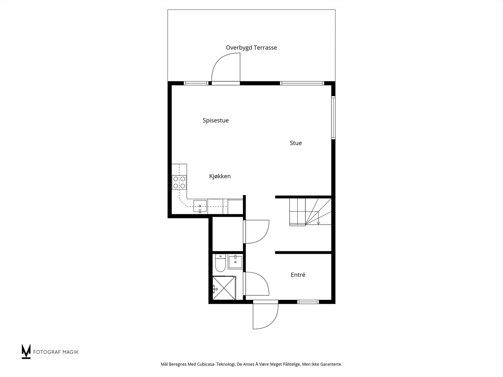
- 109 m² (BRA-i)
- Bruksareal
- 115 m²
- Eksternt bruksareal
- 6 m² (BRA-e)
- Etasje
- 2
- Byggeår
- 2023
- Energimerking
- B - Rød
- Rom
- 4
- Tomteareal
- 5 586 m² (eiet)
Fasiliteter
Balkong/Terrasse
Barnevennlig
Bredbåndstilknytning
Rolig
Turterreng
Balansert ventilasjon
Visning
For å delta på visning, ber vi om at du melder deg på. Da sikrer vi at du får nødvendig informasjon og at det er satt av tilstrekkelig med tid. Kontakt megler dersom annet tidspunkt ønskes. Husk å lese salgsoppgaven før visningen, så du stiller forberedt. NB. Visning utgår dersom det ikke er noen påmeldte.
Ønsker du kun å bli holdt orientert, kan du fra eiendommens hjemmeside få varsel om solgtpris, eller kontakte megler.
VisningspåmeldingOm boligen
Moderne, nyoppført bolig som kombinerer komfort, kvalitet og praktiske løsninger. Det stilrene kjøkkenet med integrerte hvitevarer, to delikate bad, eget vaskerom og tre romslige soverom gjør hjemmet perfekt for både barnefamilier og par. Boligen byr på usjenerte uteplasser med terrasse, hyggelig hage og balkonger i 2. etasje, som gir gode soner for både ro, lek og sosiale stunder.
Beliggenheten er svært barnevennlig, med trygge gang- og sykkelveier til sjø, strender, turstier, skole og ulike fritidsaktiviteter. Området har også gode bussforbindelser til Sandefjord sentrum og videre til Oslo, noe som gjør pendling enkelt.
Boligen er bygget etter TEK-17 og fremstår helt ny. Borettslaget tilbyr IN-ordning for en fleksibel og forutsigbar finansieringsløsning.
Beliggenheten er svært barnevennlig, med trygge gang- og sykkelveier til sjø, strender, turstier, skole og ulike fritidsaktiviteter. Området har også gode bussforbindelser til Sandefjord sentrum og videre til Oslo, noe som gjør pendling enkelt.
Boligen er bygget etter TEK-17 og fremstår helt ny. Borettslaget tilbyr IN-ordning for en fleksibel og forutsigbar finansieringsløsning.
NB: Knappen for å vise hele beskrivelsen har kun en visuell effekt.
NB: Knappen for å vise hele beskrivelsen har kun en visuell effekt.
Salgsoppgaven beskriver vesentlig og lovpålagt informasjon om eiendommen
Se komplett salgsoppgaveNyttige lenker
Nærområdet
Krogsveen Sandefjord
Velkommen til en enklere boligreise.
Annonseinformasjon
| FINN-kode | 441614283 |
|---|---|
| Sist endret | 13. des. 2025 10:03 |
| Referanse | KR22.25474 |
Annonsene kan være mangelfulle i forhold til lovpålagt opplysningsplikt. Før bindende avtale inngås oppfordres interessenter til å innhente komplett informasjon fra meglerforetaket, selger eller utleier.










































