Bildegalleri

Solrik halvpart av tomannsbolig på hele 147 kvm gulvareal, presentert av Vemund Thorkildsen
Røa
Strøken påbygd 147m² GUA - Solrik takterrasse - 4 sov - 2 bad - Parkering m/ lader - Friområde som nærmeste nabo!
Prisantydning12 190 000 kr
Nøkkelinfo
- Boligtype
- Tomannsbolig
- Eieform
- Eier (Selveier)
- Soverom
- 4
- Internt bruksareal
- 106 m² (BRA-i)
- Bruksareal
- 111 m²
- Eksternt bruksareal
- 5 m² (BRA-e)
- Balkong/Terrasse
- 29 m² (TBA)
- Etasje
- 2
- Byggeår
- 1954
- Rom
- 5
- Tomteareal
- 559 m² (eiet)
Fasiliteter
Takterrasse
Balkong/Terrasse
Barnevennlig
Bredbåndstilknytning
Garasje/P-plass
Hage
Kjæledyr tillatt
Kabel-TV
Offentlig vann/kloakk
Parkett
Peis/Ildsted
Rolig
Sentralt
Utsikt
Turterreng
Lademulighet
Visning
søndag, 11. januar
12:00 – 13:00
mandag, 12. januar
16:30 – 17:30
Ta kontakt om oppsatte visninger ikke passer!
Husk å meld deg på oppsatte visninger!
VisningspåmeldingOm boligen
Påkostet og romslig halvpart av horisontaldelt tomannsbolig med meget gode solforhold.
Perfekt for deg som jakter en romslig familiebolig på hele 147m² gulvareal, samt mye bodplass.
Plan 2: Meget god planløsning med romslig kjøkken med øy og plass for stort spisebord. Luftig sofahjørne og mulighet for peis. Hele tre gode soverom og delikat baderom med god plass. Entré med mye skapplass.
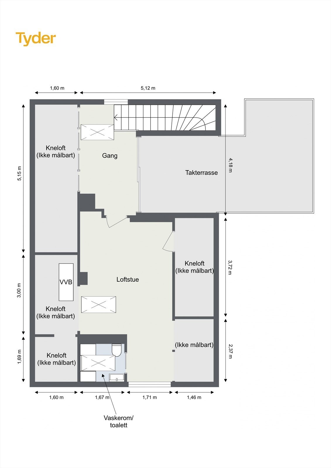
Plan 3: Loftstue/soverom med god plass til sofa og tv og hjemmekontor. Flott vaskerom med WC, samt masse lagring i bod og kneloft. Utgang til stor solrik takterrasse med sol fra morgen til kveld.
Nærmeste nabo er tursti til Bogstad. Ski-in, ski-out!
Bilfri vei til skoler og barnehage!
INFO:
- To eksterne boder og halvparten av en fellesbod
- Påbygd og godkjent med ferdigattest
Perfekt for deg som jakter en romslig familiebolig på hele 147m² gulvareal, samt mye bodplass.
Plan 2: Meget god planløsning med romslig kjøkken med øy og plass for stort spisebord. Luftig sofahjørne og mulighet for peis. Hele tre gode soverom og delikat baderom med god plass. Entré med mye skapplass.
Plan 3: Loftstue/soverom med god plass til sofa og tv og hjemmekontor. Flott vaskerom med WC, samt masse lagring i bod og kneloft. Utgang til stor solrik takterrasse med sol fra morgen til kveld.
Nærmeste nabo er tursti til Bogstad. Ski-in, ski-out!
Bilfri vei til skoler og barnehage!
INFO:
- To eksterne boder og halvparten av en fellesbod
- Påbygd og godkjent med ferdigattest
NB: Knappen for å vise hele beskrivelsen har kun en visuell effekt.
NB: Knappen for å vise hele beskrivelsen har kun en visuell effekt.
Salgsoppgaven beskriver vesentlig og lovpålagt informasjon om eiendommen
Se komplett salgsoppgaveNyttige lenker
Nærområdet
Nordvik Frogner
Annonseinformasjon
| FINN-kode | 441585322 |
|---|---|
| Sist endret | 05. jan. 2026 18:29 |
| Referanse | 14-0746/25 |
Annonsene kan være mangelfulle i forhold til lovpålagt opplysningsplikt. Før bindende avtale inngås oppfordres interessenter til å innhente komplett informasjon fra meglerforetaket, selger eller utleier.













































