Bildegalleri

Leiligheten har moderniseringsbehov, men stort potensial.
BISLETT/ HOMANSBYEN
Stor 5-roms toppleilighet med stort potensial. Attraktiv beliggenhet. Moderniseringsbehov. Perfekt for utleie.
Prisantydning6 490 000 kr
Nøkkelinfo
- Boligtype
- Leilighet
- Eieform
- Eier (Selveier)
- Soverom
- 4
- Internt bruksareal
- 78 m² (BRA-i)
- Bruksareal
- 88 m²
- Eksternt bruksareal
- 10 m² (BRA-e)
- Etasje
- 5
- Byggeår
- 1894
- Energimerking
- G - Rød
- Rom
- 5
- Tomteareal
- 810 m² (eiet)
Fasiliteter
Kabel-TV
Offentlig vann/kloakk
Ingen gjenboere
Peis/Ildsted
Utsikt
Vaktmester-/vektertjeneste
Sentralt
Bredbåndstilknytning
Rolig
Om boligen
Velkommen til Pilestredet 55E!
Presentert av Mikal Ufuk v/Eiendomsmeglerne.
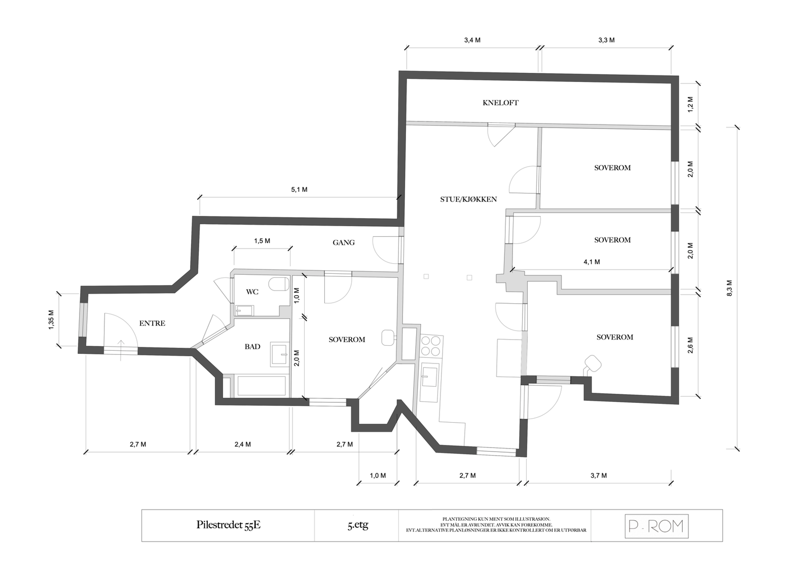
En romslig 5-roms toppleilighet sentralt midt på Bislett. Her bor du kun en kort spasertur fra et mangfold av butikker, restauranter, treningssentre, kollektiv transport og grønne parker. Med OsloMet rett utenfor døren, er dette det perfekte stedet for studenter. Leiligheten ligger i byggets 5. etasje som sørger for flott utsyn over nabolaget. Leiligheten har god planløsning med totalt fire soverom, samt delvis åpen stue/kjøkken løsning. Leiligheten har behov for modernisering, noe som gir deg muligheten til å skape ditt drømmehjem.
Kort fortalt:
Presentert av Mikal Ufuk v/Eiendomsmeglerne.
En romslig 5-roms toppleilighet sentralt midt på Bislett. Her bor du kun en kort spasertur fra et mangfold av butikker, restauranter, treningssentre, kollektiv transport og grønne parker. Med OsloMet rett utenfor døren, er dette det perfekte stedet for studenter. Leiligheten ligger i byggets 5. etasje som sørger for flott utsyn over nabolaget. Leiligheten har god planløsning med totalt fire soverom, samt delvis åpen stue/kjøkken løsning. Leiligheten har behov for modernisering, noe som gir deg muligheten til å skape ditt drømmehjem.
Kort fortalt:
- Mulighet for kjøp av loft*
- Det medfølger 2 boder
- Stort potensial
- Moderniseringsbehov
- Peisovn på 2 soverom
- 4 gode soverom
- Lave felleskostnader
- Ingen fellesgjeld
- Sentral beliggenhet
- Gode kollektiv muligheter rett utenfor døren.
Velkommen til visning - Husk påmelding!
NB: Knappen for å vise hele beskrivelsen har kun en visuell effekt.
NB: Knappen for å vise hele beskrivelsen har kun en visuell effekt.
Salgsoppgaven beskriver vesentlig og lovpålagt informasjon om eiendommen
Se komplett salgsoppgaveNærområdet
Eiendomsmeglerne AS
Erfaring og lokalkunnskap
Annonseinformasjon
| FINN-kode | 441584052 |
|---|---|
| Sist endret | 26. jan. 2026 05:02 |
| Referanse | 202250248 |
Annonsene kan være mangelfulle i forhold til lovpålagt opplysningsplikt. Før bindende avtale inngås oppfordres interessenter til å innhente komplett informasjon fra meglerforetaket, selger eller utleier.


































