Bildegalleri

Velkommen til Sløssåsveien 22!
Innbydende enebolig m/flott beliggenhet|4 soverom | Stor terrasse på 47 m² | Barnevennlig og nær marka| Dobbel carport
Prisantydning5 700 000 kr
Nøkkelinfo
- Boligtype
- Enebolig
- Eieform
- Eier (Selveier)
- Soverom
- 4
- Internt bruksareal
- 138 m² (BRA-i)
- Bruksareal
- 146 m²
- Eksternt bruksareal
- 8 m² (BRA-e)
- Balkong/Terrasse
- 47 m² (TBA)
- Byggeår
- 1994
- Energimerking
- E - Rød
- Rom
- 5
- Tomteareal
- 697 m² (eiet)
Fasiliteter
Balkong/Terrasse
Barnevennlig
Garasje/P-plass
Hage
Parkett
Peis/Ildsted
Turterreng
Visning
søndag, 01. februar
13:00 – 14:00
For visninger utover de annonserte, ta kontakt med megler på telefon 906 85 556.
Vi ønsker på forhånd å vite om du kommer på visning og ber deg ta kontakt for avtale om visning på angitt dag. Dette gjør vi for å kunne yte bedre service til kundene våre.
VisningspåmeldingOm boligen
Velkommen til Sløssåsveien 22!
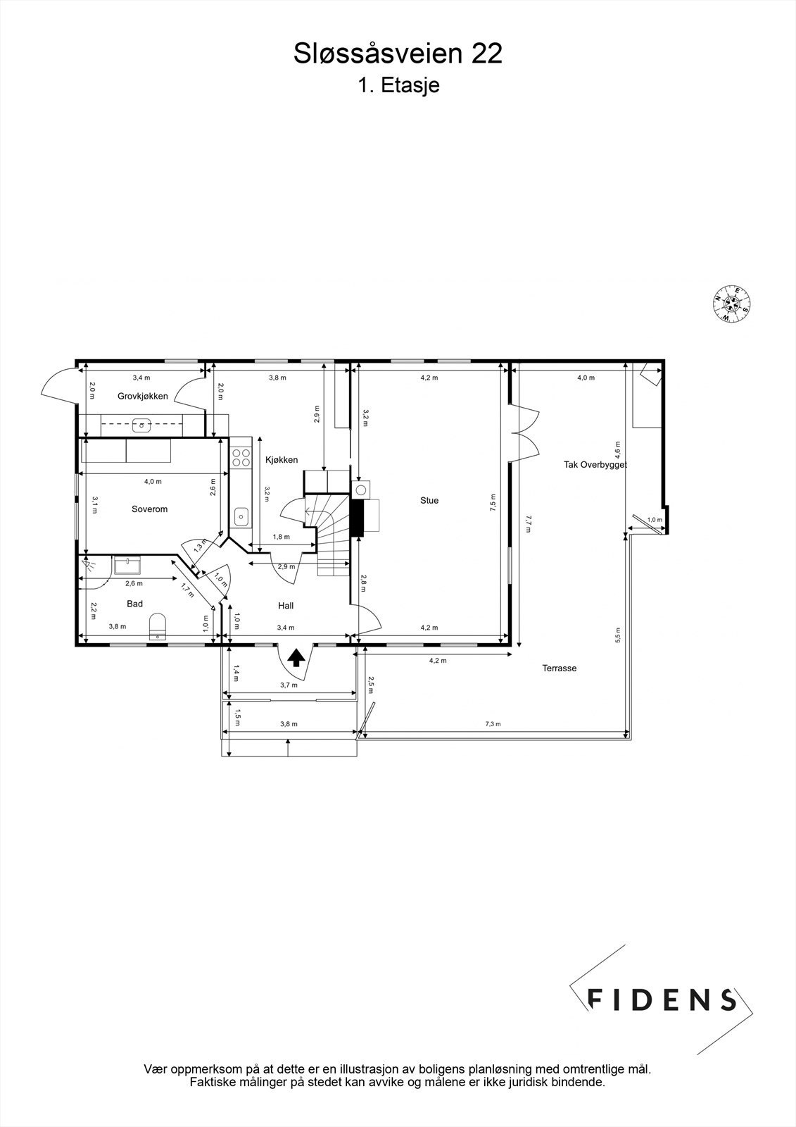
Dette er en sjarmerende bolig fra 1994 som framstår innflytningsklar og svært godt vedlikeholdt. Innvendig har huset fire soverom, mye oppbevaringsplass, en koselig stue/spisestue med utgang til terrasse på hele 47 m² med utepeis og hyggelig overbygd del. Det innbydende kjøkkenet er husets hjerte og her kan storfamilien samles. Videre er det et meget praktisk spiskammers og et grovkjøkken/vaskerom med egen utgangsdør. Uteområdet er pent opparbeidet med en stor gårdsplass og romslig hage med plen, hekk og epletre.
Parkering i carport med plass til 2 biler og på gårdsplass med plass til både biler, båter og campingvogn. Tilgang til utvendig bod.
Eiendommen ligger med umiddelbar nærhet til marka, samt kort avstand til både skoler, barnehager og servicetilbud
Dette er en sjarmerende bolig fra 1994 som framstår innflytningsklar og svært godt vedlikeholdt. Innvendig har huset fire soverom, mye oppbevaringsplass, en koselig stue/spisestue med utgang til terrasse på hele 47 m² med utepeis og hyggelig overbygd del. Det innbydende kjøkkenet er husets hjerte og her kan storfamilien samles. Videre er det et meget praktisk spiskammers og et grovkjøkken/vaskerom med egen utgangsdør. Uteområdet er pent opparbeidet med en stor gårdsplass og romslig hage med plen, hekk og epletre.
Parkering i carport med plass til 2 biler og på gårdsplass med plass til både biler, båter og campingvogn. Tilgang til utvendig bod.
Eiendommen ligger med umiddelbar nærhet til marka, samt kort avstand til både skoler, barnehager og servicetilbud
NB: Knappen for å vise hele beskrivelsen har kun en visuell effekt.
NB: Knappen for å vise hele beskrivelsen har kun en visuell effekt.
Salgsoppgaven beskriver vesentlig og lovpålagt informasjon om eiendommen
Se komplett salgsoppgaveNyttige lenker
Nærområdet
EiendomsMegler 1 Ski
Vi loser deg trygt gjennom hele boligsalget
Annonseinformasjon
| FINN-kode | 441574970 |
|---|---|
| Sist endret | 24. jan. 2026 09:27 |
| Referanse | 6038260071 |
Annonsene kan være mangelfulle i forhold til lovpålagt opplysningsplikt. Før bindende avtale inngås oppfordres interessenter til å innhente komplett informasjon fra meglerforetaket, selger eller utleier.
























































