Bildegalleri

EIE eiendomsmegling v/Alexander Reitan har gleden av å presentere Strindfjordvegen 17A! (Foto: EFKT Foto)
Grilstad Marina
Lekker 2-roms selveierleilighet |attraktiv beliggenhet på Grilstad | Fjordutsikt | Garasjeplass med lader | Badestrand
Prisantydning4 290 000 kr
Nøkkelinfo
- Boligtype
- Leilighet
- Eieform
- Eier (Selveier)
- Soverom
- 1
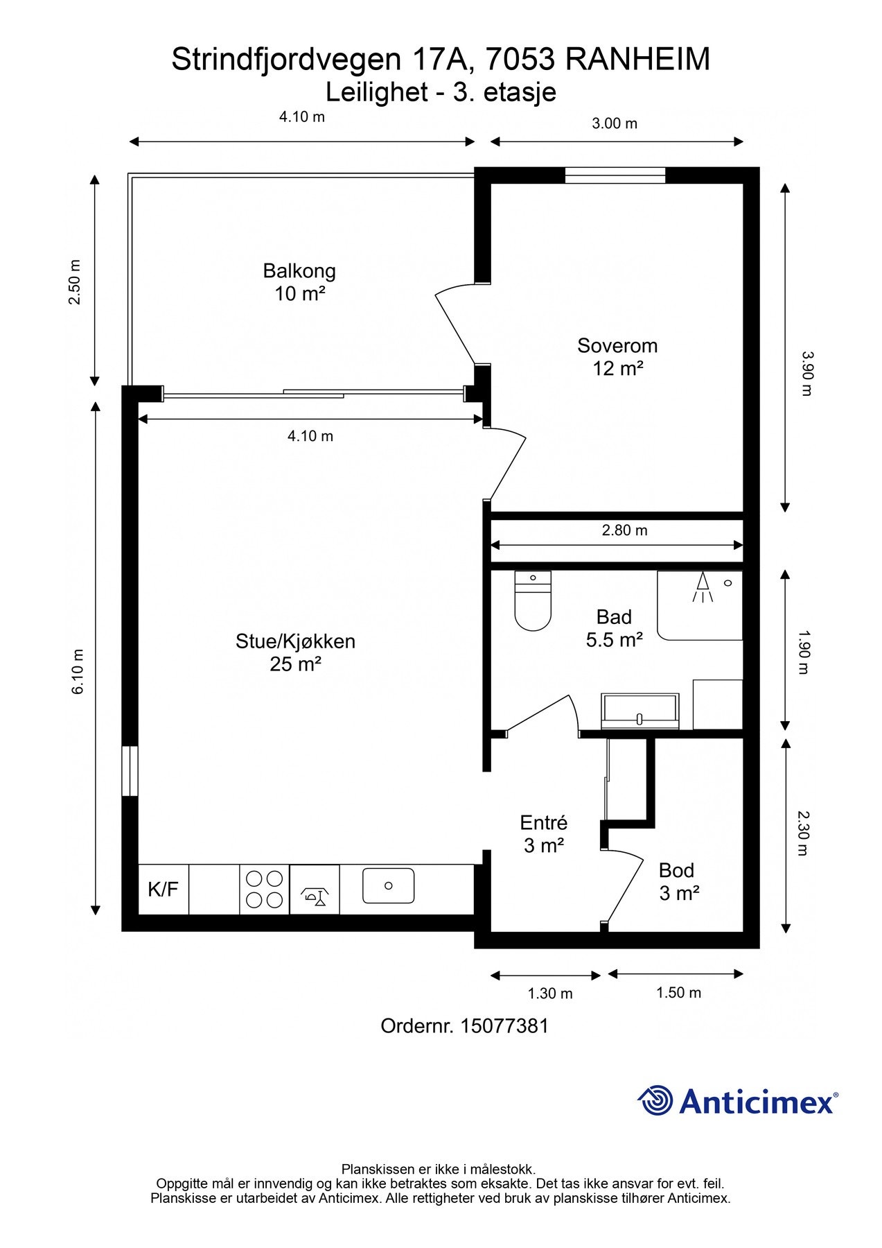
- Internt bruksareal
- 53 m² (BRA-i)
- Bruksareal
- 58 m²
- Eksternt bruksareal
- 5 m² (BRA-e)
- Balkong/Terrasse
- 10 m² (TBA)
- Etasje
- 3
- Byggeår
- 2023
- Energimerking
- B - Mørkegrønn
- Rom
- 2
- Tomt
- Eiet
Fasiliteter
Barnevennlig
Balkong/Terrasse
Garasje/P-plass
Kabel-TV
Heis
Offentlig vann/kloakk
Turterreng
Utsikt
Bredbåndstilknytning
Moderne
Rolig
Bademulighet
Lademulighet
Balansert ventilasjon
Visning
mandag, 12. januar
18:30 – 19:15
Våre visninger har påmelding. Dette gjør vi for å kunne yte bedre service for våre kunder. Verdifullt for boligkjøper og for oss. Vi anbefaler at salgsoppgaven lastes ned digitalt før visning, og ring oss gjerne på forhånd for spørsmål om boligen. Passer ikke angitt tidspunkt, ta kontakt så finner vi en løsning. Skulle det mot formodning ikke være påmeldte til angitt visningstidspunkt vil ikke visning bli gjennomført.
Om boligen
EIE eiendomsmegling ved Alexander Reitan har gleden av å presentere Strindfjordvegen 17A - En lys og delikat 2-roms selveierleilighet fra 2023 med fin beliggenhet i 3. etasje med kanalen som nærmeste nabo.
Leiligheten har en idyllisk beliggenhet ved fjorden og ligger i et svært attraktivt boligområde. Livet utendørs kan nytes på en herlig balkong. Fra leiligheten får man nydelig utsikt over fjorden. Leillighetens stue oppleves lys og luftig og har et stilrent og lekkert kjøkken. Det er kort vei til dagligvare, Grilstadporten kjøpesenter og buss
Merk deg dette:
-Selveierleilighet i 3. etasje
- Åpen stue-/kjøkkenløsning
- Fjordutsikt
- Flott balkong
- Byggeår 2023
- Følger med egen parkeringsplass
- Attraktivt område
- Fjernvarme
- Kort vei til dagligvarebutikk
- Gjennomgående tilstandsgrad 1 (TG1) fra
takstmann
- Fast p-plass i oppvarmet kjeller med installert
elbillader.
- Solrike uteområder, grøntanlegg og kort vei til
sjø, strand og friområder!
Velkommen til visning!
Leiligheten har en idyllisk beliggenhet ved fjorden og ligger i et svært attraktivt boligområde. Livet utendørs kan nytes på en herlig balkong. Fra leiligheten får man nydelig utsikt over fjorden. Leillighetens stue oppleves lys og luftig og har et stilrent og lekkert kjøkken. Det er kort vei til dagligvare, Grilstadporten kjøpesenter og buss
Merk deg dette:
-Selveierleilighet i 3. etasje
- Åpen stue-/kjøkkenløsning
- Fjordutsikt
- Flott balkong
- Byggeår 2023
- Følger med egen parkeringsplass
- Attraktivt område
- Fjernvarme
- Kort vei til dagligvarebutikk
- Gjennomgående tilstandsgrad 1 (TG1) fra
takstmann
- Fast p-plass i oppvarmet kjeller med installert
elbillader.
- Solrike uteområder, grøntanlegg og kort vei til
sjø, strand og friområder!
Velkommen til visning!
NB: Knappen for å vise hele beskrivelsen har kun en visuell effekt.
NB: Knappen for å vise hele beskrivelsen har kun en visuell effekt.
Salgsoppgaven beskriver vesentlig og lovpålagt informasjon om eiendommen
Se komplett salgsoppgaveNyttige lenker
Nærområdet
EIE eiendomsmegling Trondheim sentrum
Annonseinformasjon
| FINN-kode | 441560404 |
|---|---|
| Sist endret | 31. des. 2025 14:16 |
| Referanse | 33251113 |
Annonsene kan være mangelfulle i forhold til lovpålagt opplysningsplikt. Før bindende avtale inngås oppfordres interessenter til å innhente komplett informasjon fra meglerforetaket, selger eller utleier.





























