Bildegalleri

Henrik Wang v/EIE eiendomsmegling har gleden av å presentere Erich Mogensøns vei 20!
Solgt
Linderud
Lys og romslig 3-roms m/vestvendt innglasset balkong - V.V & fyring à konto inkl. - Moderniseringsbehov - Sentralt
Prisantydning4 500 000 kr
Nøkkelinfo
- Boligtype
- Leilighet
- Eieform
- Andel
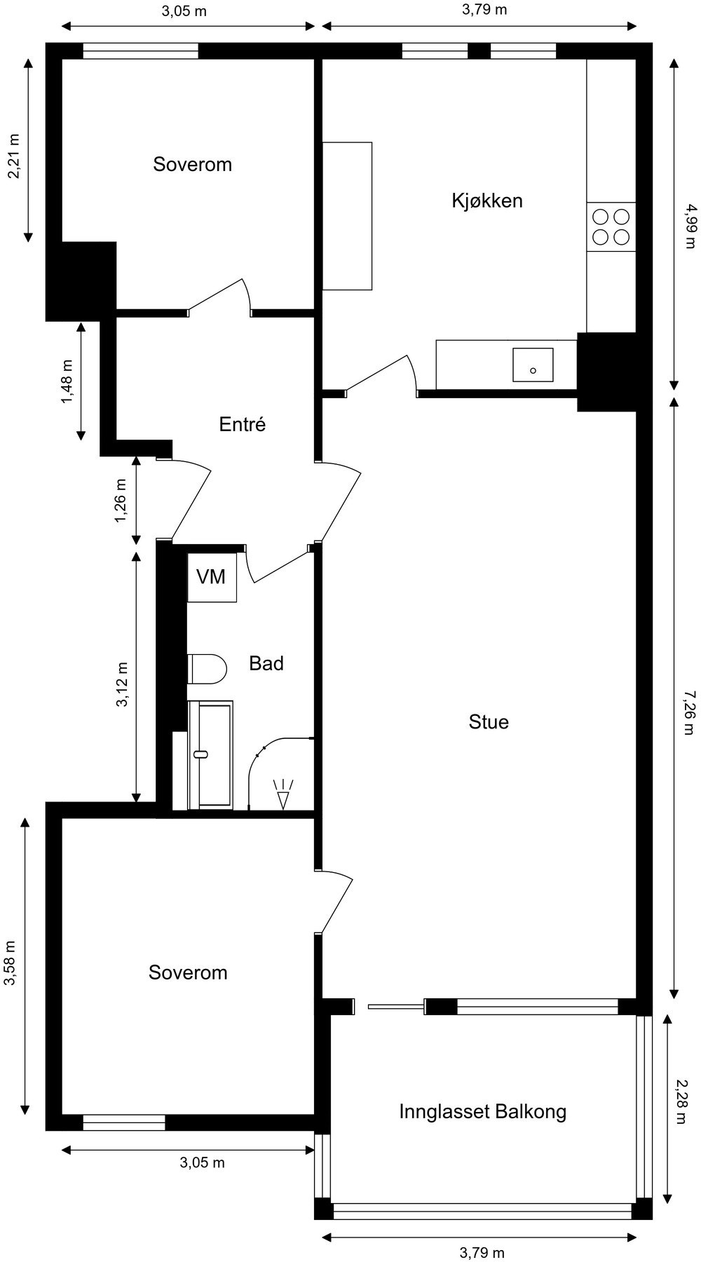
- Soverom
- 2
- Internt bruksareal
- 72 m² (BRA-i)
- Bruksareal
- 85 m²
- Eksternt bruksareal
- 4 m² (BRA-e)
- Innglasset balkong
- 9 m² (BRA-b)
- Etasje
- 5
- Byggeår
- 1964
- Energimerking
- F - Mørkegrønn
- Rom
- 3
- Tomteareal
- 33 583 m² (eiet)
Fasiliteter
Barnevennlig
Balkong/Terrasse
Kabel-TV
Heis
Offentlig vann/kloakk
Parkett
Turterreng
Utsikt
Vaktmester-/vektertjeneste
Fellesvaskeri
Sentralt
Bredbåndstilknytning
Rolig
Om boligen
Henrik Wang v/EIE eiendomsmegling har gleden av å presentere Erich Mogensøns vei 20 - en gjennomgående og romslig 3-roms med gode muligheter for å skape din drømmebolig! Dette er en bolig som byr på store oppholdsrom med god boltringsplass, innglasset vestvendt balkong med herlig utsikt og praktisk planløsning.
Beliggenheten er svært attraktiv, med kort vei til skoler, barnehager, butikker, Linderud senter, kollektivtransport og flotte grøntområder.
Kvaliteter:
- Lys og romslig 3-roms
- Gjennomgående
- Separat kjøkken
- 2 gode soverom
- 5.etasje med luftig utsyn
- Heis
- Vestvendt innglasset balkong på 9 kvm
- V.vann, fyring, TV og internett inkl.
- Romslig stue med god boltringsplass
- Kjellerbod
- Mulighet for 3 soverom
- Meget sentral beliggenhet med kort vei til butikker, skoler/barnehage & offentlig kommunikasjon
- Mulighet for å leie p-plass/garasje
- 2 min gange til Linderud senter
- Mulighet for rask overtagelse
Mangler du egenkapital? Boligen kan kjøpes med Finit Deleie.
Beliggenheten er svært attraktiv, med kort vei til skoler, barnehager, butikker, Linderud senter, kollektivtransport og flotte grøntområder.
Kvaliteter:
- Lys og romslig 3-roms
- Gjennomgående
- Separat kjøkken
- 2 gode soverom
- 5.etasje med luftig utsyn
- Heis
- Vestvendt innglasset balkong på 9 kvm
- V.vann, fyring, TV og internett inkl.
- Romslig stue med god boltringsplass
- Kjellerbod
- Mulighet for 3 soverom
- Meget sentral beliggenhet med kort vei til butikker, skoler/barnehage & offentlig kommunikasjon
- Mulighet for å leie p-plass/garasje
- 2 min gange til Linderud senter
- Mulighet for rask overtagelse
Mangler du egenkapital? Boligen kan kjøpes med Finit Deleie.
NB: Knappen for å vise hele beskrivelsen har kun en visuell effekt.
NB: Knappen for å vise hele beskrivelsen har kun en visuell effekt.
Salgsoppgaven beskriver vesentlig og lovpålagt informasjon om eiendommen
Se komplett salgsoppgaveNyttige lenker
Nærområdet
EIE eiendomsmegling Stovner
Annonseinformasjon
| FINN-kode | 441475894 |
|---|---|
| Sist endret | 09. jan. 2026 14:04 |
| Referanse | 75250322 |
Annonsene kan være mangelfulle i forhold til lovpålagt opplysningsplikt. Før bindende avtale inngås oppfordres interessenter til å innhente komplett informasjon fra meglerforetaket, selger eller utleier.




























