Bildegalleri

Velkommen til Steinveien 3 - presentert av Krogsveen. Fotograf; Børge Oppegård.

Ekholt

Særs innholdsrik familiebolig med 6 sov, 3 bad og flere stuer. Oppgradert i senere år. Stor, solfylt hage. Dobbelgarasje

Prisantydning9 700 000 kr
Totalpris
9 963 490 kr
Omkostninger
263 490 kr
Kommunale avg.
19 911 kr per år
Eiendomsskatt
10 271 kr per år
Formuesverdi
2 049 074 kr

Nøkkelinfo

Boligtype
Enebolig
Eieform
Eier (Selveier)
Soverom
6
Internt bruksareal
411 m² (BRA-i)
Bruksareal
482 m²
Eksternt bruksareal
71 m² (BRA-e)
Balkong/Terrasse
118 m² (TBA)
Etasje
3
Byggeår
1960
Rom
9
Tomteareal
1 200 m² (eiet)

Les mer om bruksareal her

Fasiliteter

Balkong/Terrasse
Barnevennlig
Bredbåndstilknytning
Garasje/P-plass
Golfbane
Hage
Kjæledyr tillatt
Kabel-TV
Offentlig vann/kloakk
Peis/Ildsted
Rolig
Sentralt
Turterreng
Lademulighet

Visning

søndag, 04. januar
15:00 – 16:00
For å delta på visning, ber vi om at du melder deg på. Da sikrer vi at du får nødvendig informasjon og at det er satt av tilstrekkelig med tid. Kontakt megler dersom annet tidspunkt ønskes. Husk å lese salgsoppgaven før visningen, så du stiller forberedt. NB. Visning utgår dersom det ikke er noen påmeldte. Ønsker du kun å bli holdt orientert, kan du fra eiendommens hjemmeside få varsel om solgtpris, eller kontakte megler.
Visningspåmelding

Om boligen

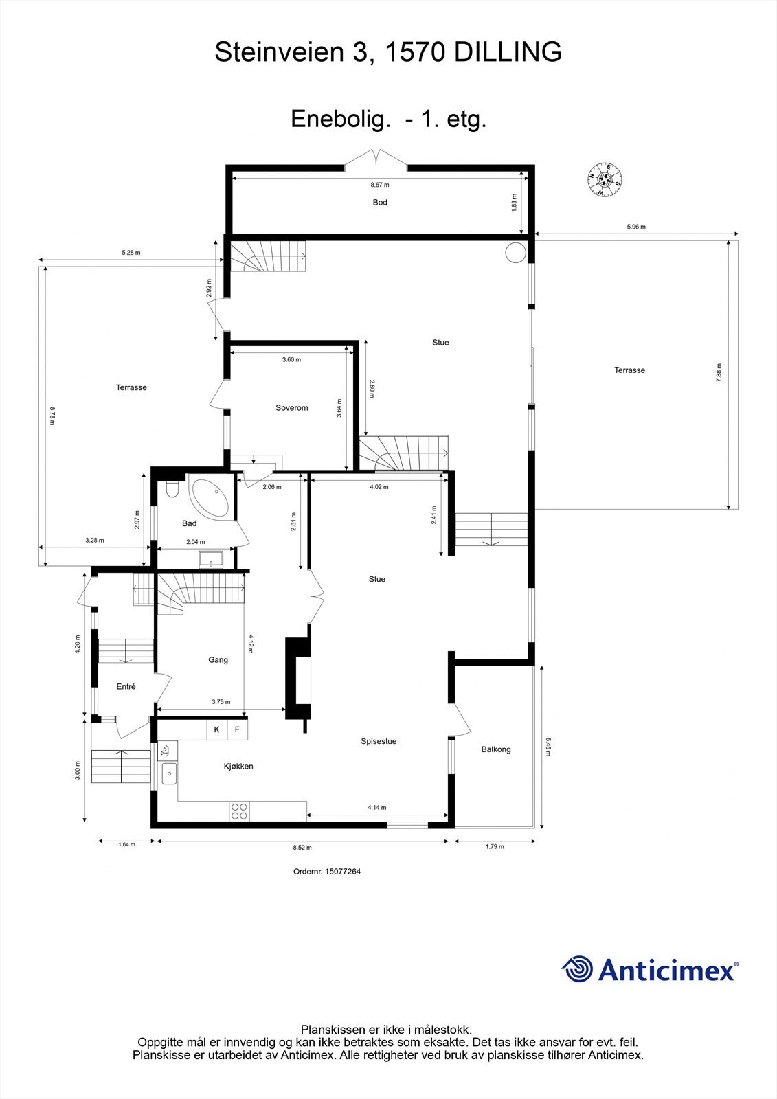
Meget innholdsrik enebolig på ettertraktede Ekholt med hele 429 kvm. BRA

  • Rikelig boltreplass for familien innendørs som utendørs
  • Bygget om, pusset opp og modernisert i senere år
  • Velholdt, påkostet Sigdal-kjøkken fra 2017
  • Seks generøse soverom gir god plass til storfamilien
  • Bad i alle tre etasjer; to renovert i 2014 og 2012
  • To ildsteder i første etasje - vedovn ny i 2021
  • Stort og praktisk vaskerom i kjeller, renovert i 2011
  • Kjellerstue med tilstøtende barrom
  • Uterom på til sammen 118 kvm. inkl. terrasse med utekjøkken
  • Syd- og vestvegg kledd om og flere vinduer skiftet ut i 2022
  • Taktekking lagt om og takvinduer skiftet ut i 2017
  • Dobbelgarasje med tilstøtende boder
  • Lader til EL-bil montert ved innkjørsel

Salgsoppgaven beskriver vesentlig og lovpålagt informasjon om eiendommen

Se komplett salgsoppgave

Nærområdet

Annonseinformasjon

FINN-kode441470647
Sist endret25. des. 2025 23:43
ReferanseKR30.25204

Rapporter annonse

Annonsene kan være mangelfulle i forhold til lovpålagt opplysningsplikt. Før bindende avtale inngås oppfordres interessenter til å innhente komplett informasjon fra meglerforetaket, selger eller utleier.