Bildegalleri

Velkommen til Konvalldalen 2 - En flott og nyere leilighet med kun TG0 og en TG1. Privat takterrasse
SØGNE
Lekker nyere(2023) leilighet med stor privat solrik takterrasse | Moderne og praktisk planløsning | Parkering i garasje
Prisantydning5 390 000 kr
Nøkkelinfo
- Boligtype
- Leilighet
- Eieform
- Eier (Selveier)
- Soverom
- 2
- Internt bruksareal
- 104 m² (BRA-i)
- Bruksareal
- 109 m²
- Eksternt bruksareal
- 5 m² (BRA-e)
- Etasje
- 3
- Byggeår
- 2023
- Energimerking
- A - Gul
- Tomteareal
- 2 053 m² (eiet)
Fasiliteter
Takterrasse
Balkong/Terrasse
Garasje/P-plass
Heis
Kjæledyr tillatt
Offentlig vann/kloakk
Rolig
Sentralt
Utsikt
Turterreng
Balansert ventilasjon
Visning
Velkommen til visning! Husk å melde deg på visningen ved å trykke på knappen visningspåmelding under, eller ta kontakt med megler for å gjøre en avtale. Visninger uten påmeldte blir avlyst.
VisningspåmeldingOm boligen
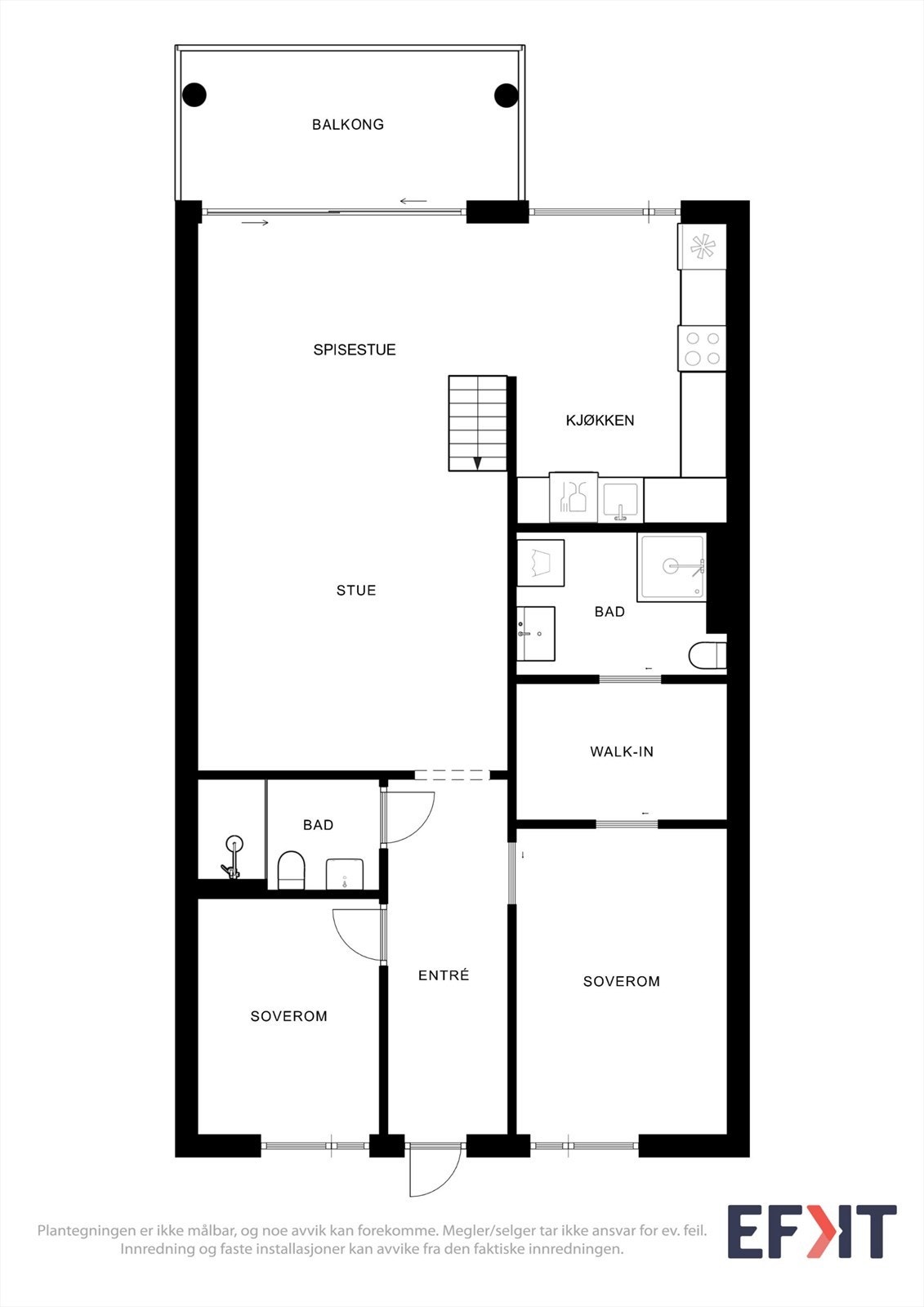
Flott leilighet i et helt nytt boligkompleks i Konvalldalen i Søgne. Leiligheten har en attraktiv beliggenhet med fin utsikt og egen privat takterrasse. Fra stua er det utgang til balkong som er delvis overbygget. Her kan man nyte fine solrike sommerdager.
Konvalldalen ligger sentralt i Søgne med nærhet til både Høllen og Åros. Fra leiligheten er det umiddelbar nærhet til flere turløyper som tar deg rundt Søgne. Kort vei til Tangvall og Kristiansand med bil.
Vert å merke seg:
- Lys og pen nyere leilighet
- 2 soverom, 2 stuer og 2 bad
- Høy standard
- Vannbåren varme
- 2 p-plasser i kjeller samt romslig bod
Leiligheten holder høy standard og inneholder:
3. etasje: Gang, 2 romslige bad, stue/kjøkken, 2 soverom samt garderobe.
4. etasje: Takstue samt takterrasse.
Velkommen til visning
Konvalldalen ligger sentralt i Søgne med nærhet til både Høllen og Åros. Fra leiligheten er det umiddelbar nærhet til flere turløyper som tar deg rundt Søgne. Kort vei til Tangvall og Kristiansand med bil.
Vert å merke seg:
- Lys og pen nyere leilighet
- 2 soverom, 2 stuer og 2 bad
- Høy standard
- Vannbåren varme
- 2 p-plasser i kjeller samt romslig bod
Leiligheten holder høy standard og inneholder:
3. etasje: Gang, 2 romslige bad, stue/kjøkken, 2 soverom samt garderobe.
4. etasje: Takstue samt takterrasse.
Velkommen til visning
NB: Knappen for å vise hele beskrivelsen har kun en visuell effekt.
NB: Knappen for å vise hele beskrivelsen har kun en visuell effekt.
Salgsoppgaven beskriver vesentlig og lovpålagt informasjon om eiendommen
Se komplett salgsoppgaveNyttige lenker
Nærområdet
Eiendomsmegler Norge Kristiansand
Best der du bor
Annonseinformasjon
| FINN-kode | 441435919 |
|---|---|
| Sist endret | 08. jan. 2026 21:22 |
| Referanse | 52250161 |
Annonsene kan være mangelfulle i forhold til lovpålagt opplysningsplikt. Før bindende avtale inngås oppfordres interessenter til å innhente komplett informasjon fra meglerforetaket, selger eller utleier.




























