Bildegalleri

EIE eiendomsmegling v/ Julie Marie Vollan Brennvik presenterer Dvergstien 5! Foto: Robin Syrstad v/ EFKT
Selsbakk/Byåsen.
Plass, potensial og rolig beliggenhet - stor vertikaldelt tomannsbolig med vaskerom og mulighet for fem soverom
Prisantydning3 090 000 kr
Nøkkelinfo
- Boligtype
- Tomannsbolig
- Eieform
- Eier (Selveier)
- Soverom
- 3
- Internt bruksareal
- 159 m² (BRA-i)
- Bruksareal
- 159 m²
- Byggeår
- 1955
- Energimerking
- G - Rød
- Rom
- 4
- Tomteareal
- 769 m² (eiet)
Fasiliteter
Garasje/P-plass
Offentlig vann/kloakk
Peis/Ildsted
Utsikt
Rolig
Om boligen
EIE eiendomsmegling ved Julie Marie Vollan Brennvik ønsker velkommen til Dvergstien 5. Dette er en romslig tomannsbolig med blindgate beliggenhet på Nedre Selsbakk.
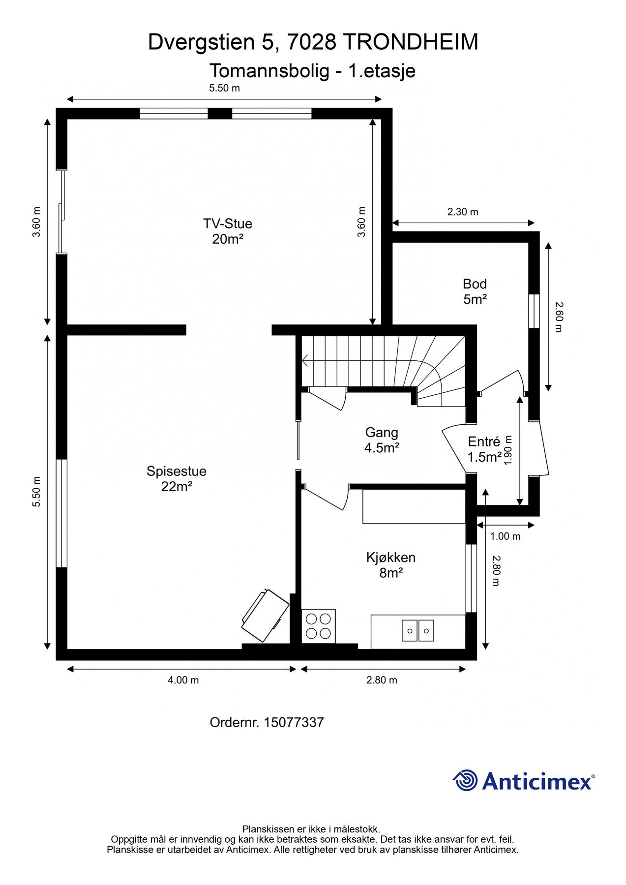
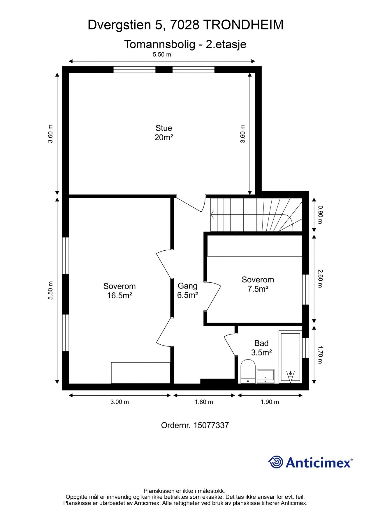
Boligen går over tre etasjer, og består bla. av to store stuer og spisestue, eller muligheten for fem store soverom. Det er eget vaskerom i kjelleretasjen, og godt med lagringsmuligheter. Parkering på egen tomt.
Boligen er oppført i 1955, og har et tilbygg fra 2010. Tomten er på 769 kvm. Solforholdene er gode, og muligheten for å nyte både vest- og sørvendt sol er tilstede.
Dvergstien 5 har flere bygningsdeler har behov for oppgraderinger, og mulighetene her er mange for den som ønsker å gjøre dette hjemmet til sitt eget.
Velkommen til hyggelig EIE-visning!
Boligen går over tre etasjer, og består bla. av to store stuer og spisestue, eller muligheten for fem store soverom. Det er eget vaskerom i kjelleretasjen, og godt med lagringsmuligheter. Parkering på egen tomt.
Boligen er oppført i 1955, og har et tilbygg fra 2010. Tomten er på 769 kvm. Solforholdene er gode, og muligheten for å nyte både vest- og sørvendt sol er tilstede.
Dvergstien 5 har flere bygningsdeler har behov for oppgraderinger, og mulighetene her er mange for den som ønsker å gjøre dette hjemmet til sitt eget.
Velkommen til hyggelig EIE-visning!
NB: Knappen for å vise hele beskrivelsen har kun en visuell effekt.
NB: Knappen for å vise hele beskrivelsen har kun en visuell effekt.
Salgsoppgaven beskriver vesentlig og lovpålagt informasjon om eiendommen
Se komplett salgsoppgaveNyttige lenker
Nærområdet
EIE eiendomsmegling Heimdal

Julie Marie Vollan Brennvik
Eiendomsmeglerfullmektig | Sosiale medier ansvarlig
Annonseinformasjon
| FINN-kode | 441332308 |
|---|---|
| Sist endret | 29. des. 2025 12:57 |
| Referanse | 97251199 |
Annonsene kan være mangelfulle i forhold til lovpålagt opplysningsplikt. Før bindende avtale inngås oppfordres interessenter til å innhente komplett informasjon fra meglerforetaket, selger eller utleier.

































