Bildegalleri

Velkommen til Hans Nordahls gate 32, presentert av Hang Thai Nguyen v/EIE Valkyrien. Foto: Lars Gartå
Lys og moderne 3-roms selveierleilighet fra 2018 | Smart planløsning som byr på høy bokvalitet | Balkong | Garasje
Prisantydning7 500 000 kr
Nøkkelinfo
- Boligtype
- Leilighet
- Eieform
- Eier (Selveier)
- Soverom
- 2
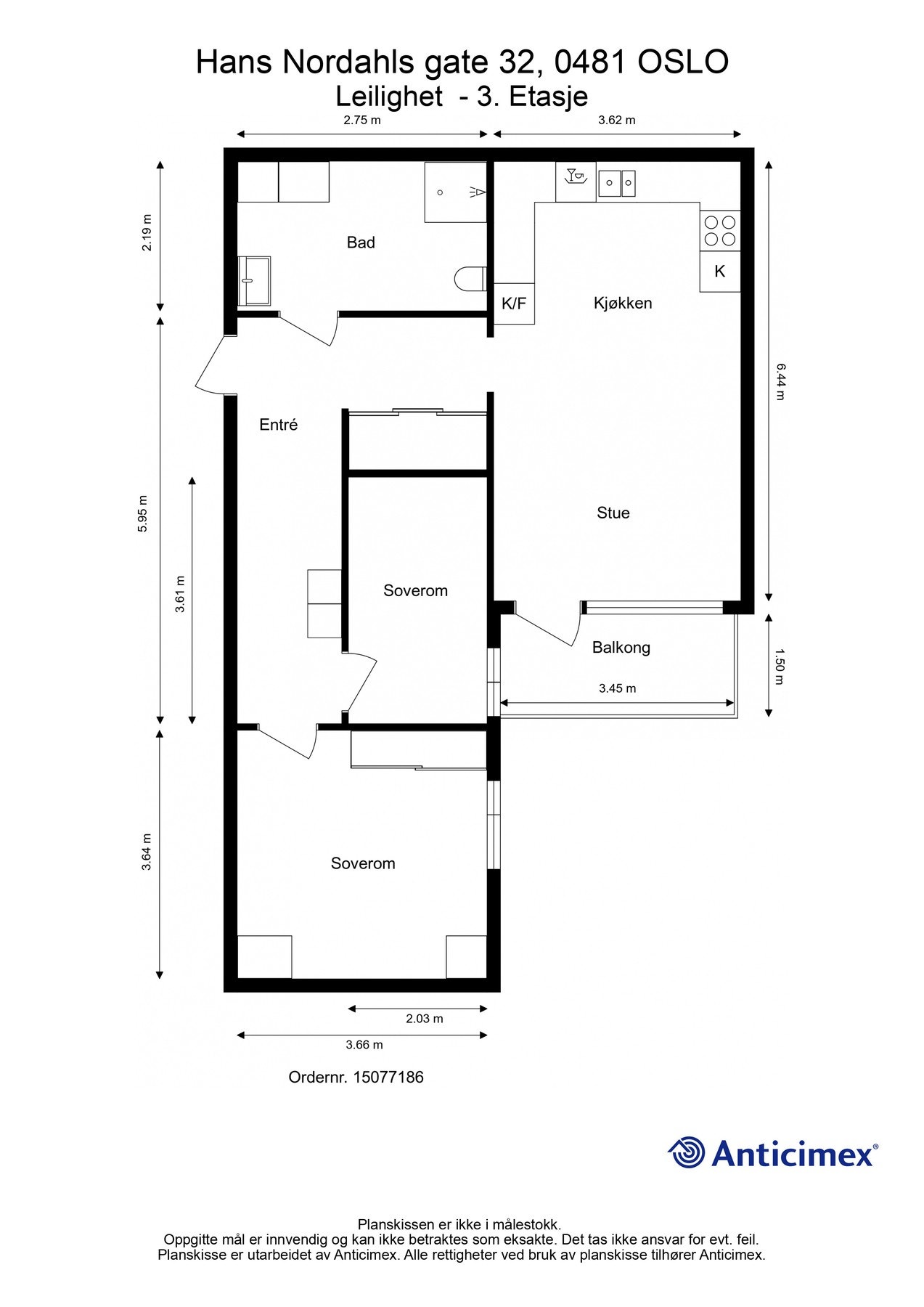
- Internt bruksareal
- 68 m² (BRA-i)
- Bruksareal
- 74 m²
- Eksternt bruksareal
- 6 m² (BRA-e)
- Balkong/Terrasse
- 5 m² (TBA)
- Etasje
- 3
- Byggeår
- 2018
- Energimerking
- B - Mørkegrønn
- Rom
- 3
- Tomteareal
- 1 954 m² (eiet)
Fasiliteter
Barnevennlig
Balkong/Terrasse
Garasje/P-plass
Kabel-TV
Heis
Offentlig vann/kloakk
Parkett
Sentralt
Bredbåndstilknytning
Moderne
Rolig
Lademulighet
Balansert ventilasjon
Om boligen
Hang Thai Nguyen v/EIE Valkyrien har gleden av å presentere Hans Nordahls gate 32 - En moderne 3-roms fra 2018 med optimal planløsning og et lyst, behagelig bomiljø.
Leiligheten byr på en åpen og sosial stue- og kjøkkenløsning, to gode soverom, et delikat flislagt bad med opplegg for vaskemaskin og en romslig entré med praktisk garderobeløsning. Balkongen på ca. 5m² vender mot et stille, indre gårdsrom og fungerer som et hyggelig uterom.
Her bor du svært komfortabelt på populære Grefsen Stasjon, med umiddelbar nærhet til butikker, servicetilbud og alt av offentlig kommunikasjon.
Høydepunkter:
- Balansert ventilasjon
- Fjernvarme og varmtvann avregnes etter forbruk
- Stor kjellerbod på 6m²
- Garasjeplass med elbil-lader
- Heis til tredje etasje
- Sentralt på Grefsen Stasjon med kort vei til handel og kollektivtransport
Leiligheten byr på en åpen og sosial stue- og kjøkkenløsning, to gode soverom, et delikat flislagt bad med opplegg for vaskemaskin og en romslig entré med praktisk garderobeløsning. Balkongen på ca. 5m² vender mot et stille, indre gårdsrom og fungerer som et hyggelig uterom.
Her bor du svært komfortabelt på populære Grefsen Stasjon, med umiddelbar nærhet til butikker, servicetilbud og alt av offentlig kommunikasjon.
Høydepunkter:
- Balansert ventilasjon
- Fjernvarme og varmtvann avregnes etter forbruk
- Stor kjellerbod på 6m²
- Garasjeplass med elbil-lader
- Heis til tredje etasje
- Sentralt på Grefsen Stasjon med kort vei til handel og kollektivtransport
NB: Knappen for å vise hele beskrivelsen har kun en visuell effekt.
NB: Knappen for å vise hele beskrivelsen har kun en visuell effekt.
Salgsoppgaven beskriver vesentlig og lovpålagt informasjon om eiendommen
Se komplett salgsoppgaveNærområdet
EIE eiendomsmegling Valkyrien
Annonsene kan være mangelfulle i forhold til lovpålagt opplysningsplikt. Før bindende avtale inngås oppfordres interessenter til å innhente komplett informasjon fra meglerforetaket, selger eller utleier.
































