Bildegalleri

Velkommen til Fjordgata 12 - Toppleilighet (143 kvm) midt i Harstad sentrum med moderne standard fra byggår 2018. Bildet inneholder digital møblering.
SENTRUM
STOR TOPPLEILIGHET I HARSTAD SENTRUM - Vinterhage, balkong, takterrasse, treningsrom, heis og gunstig IN-ordning
Prisantydning3 411 775 kr
Nøkkelinfo
- Boligtype
- Leilighet
- Eieform
- Andel
- Soverom
- 2
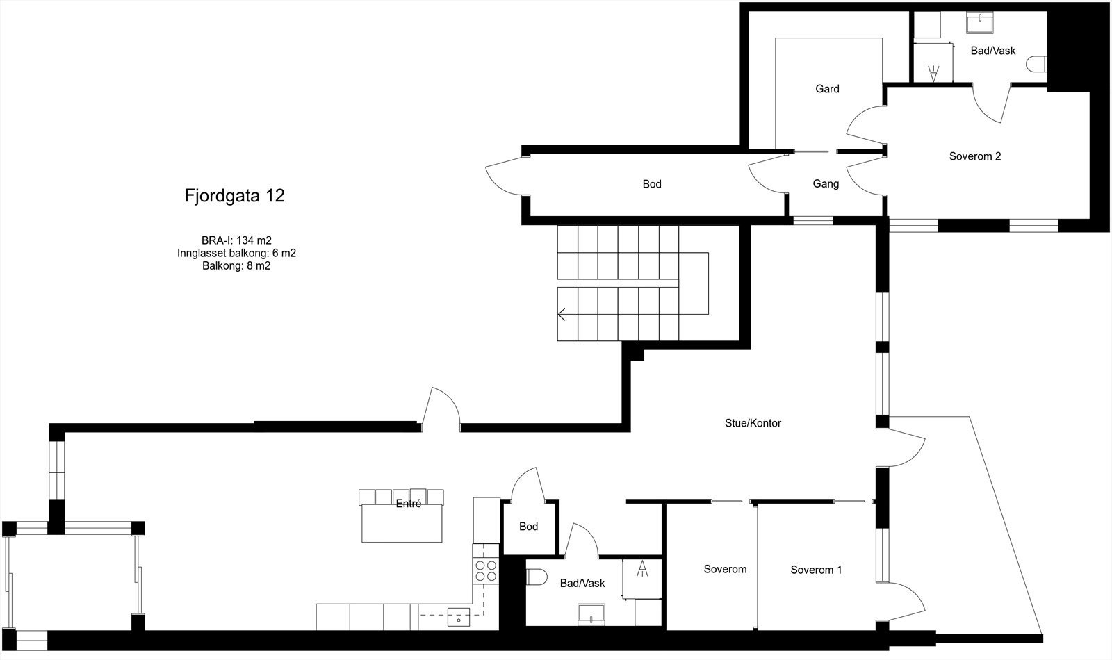
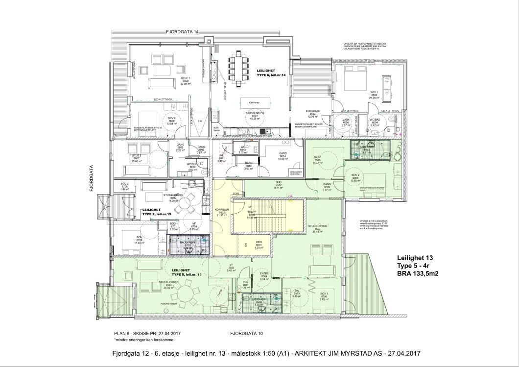
- Internt bruksareal
- 143 m² (BRA-i)
- Bruksareal
- 143 m²
- Balkong/Terrasse
- 8 m² (TBA)
- Etasje
- 6
- Byggeår
- 2018
- Energimerking
- D - Lysegrønn
- Rom
- 3
- Tomteareal
- 509 m² (eiet)
Fasiliteter
Takterrasse
Balkong/Terrasse
Heis
Offentlig vann/kloakk
Parkett
Sentralt
Utsikt
Balansert ventilasjon
Visning
tirsdag, 03. februar
16:30 – 17:30
Velkommen til visning! Meld deg på ved å trykke "visningspåmelding" i våre boligannonser. Visning med megler til stede vil ikke bli avholdt uten påmeldinger. Ta gjerne kontakt med megler i forkant av visningen om du har spørsmål.
VisningspåmeldingOm boligen
VELKOMMEN TIL FJORDGATA 12 -
Attraktiv leilighet i 6. etasje med solrike uteplasser og en beliggenhet som gir deg alt du trenger rett utenfor døren. Her bor du med gangavstand til butikker, kafeer, restauranter, treningssenter og flotte turområder. Transportmulighetene er førsteklasses med buss, hurtigbåt, Hurtigruten og flybuss i nærheten.
VERDT Å MERKE SEG:
Attraktiv leilighet i 6. etasje med solrike uteplasser og en beliggenhet som gir deg alt du trenger rett utenfor døren. Her bor du med gangavstand til butikker, kafeer, restauranter, treningssenter og flotte turområder. Transportmulighetene er førsteklasses med buss, hurtigbåt, Hurtigruten og flybuss i nærheten.
VERDT Å MERKE SEG:
- Heis i bygget
- 149 kvm leilighet på et plan
- Mulighet for parkering i bakgård
- Attraktiv leilighet i 6.etg. fra 2018
- Privat takhage på solrik takterrasse
- IN-ordning (betal ned hele eller deler av fellesgjeld for lavere mnd kostnad), sikringsordning og ingen dok.avgift ved kjøp
Velkommen til en hyggelig visning, husk påmelding!
NB: Knappen for å vise hele beskrivelsen har kun en visuell effekt.
NB: Knappen for å vise hele beskrivelsen har kun en visuell effekt.
Salgsoppgaven beskriver vesentlig og lovpålagt informasjon om eiendommen
Se komplett salgsoppgaveNyttige lenker
Nærområdet
DNB Eiendom AS
Fra hjem til hjem
Annonseinformasjon
| FINN-kode | 441303415 |
|---|---|
| Sist endret | 24. jan. 2026 15:40 |
| Referanse | 804250075 |
Annonsene kan være mangelfulle i forhold til lovpålagt opplysningsplikt. Før bindende avtale inngås oppfordres interessenter til å innhente komplett informasjon fra meglerforetaket, selger eller utleier.


















