Bildegalleri

Velkommen til Tidemands gate 31 - Her har vi gleden av å presentere en innholdsrik 2(3)-roms med flott balkong.
Innholdsrik 2-roms med ettertraktet beliggenhet | Balkong | 5. etasje med heisadkomst | P-plass kan kjøpes
Nøkkelinfo
- Boligtype
- Leilighet
- Eieform
- Andel
- Soverom
- 1
- Internt bruksareal
- 62 m² (BRA-i)
- Bruksareal
- 62 m²
- Balkong/Terrasse
- 7 m² (TBA)
- Etasje
- 5
- Byggeår
- 1974
- Energimerking
- G - Rød
- Rom
- 2
- Tomteareal
- 838 m² (eiet)
Fasiliteter
Visning
Om boligen
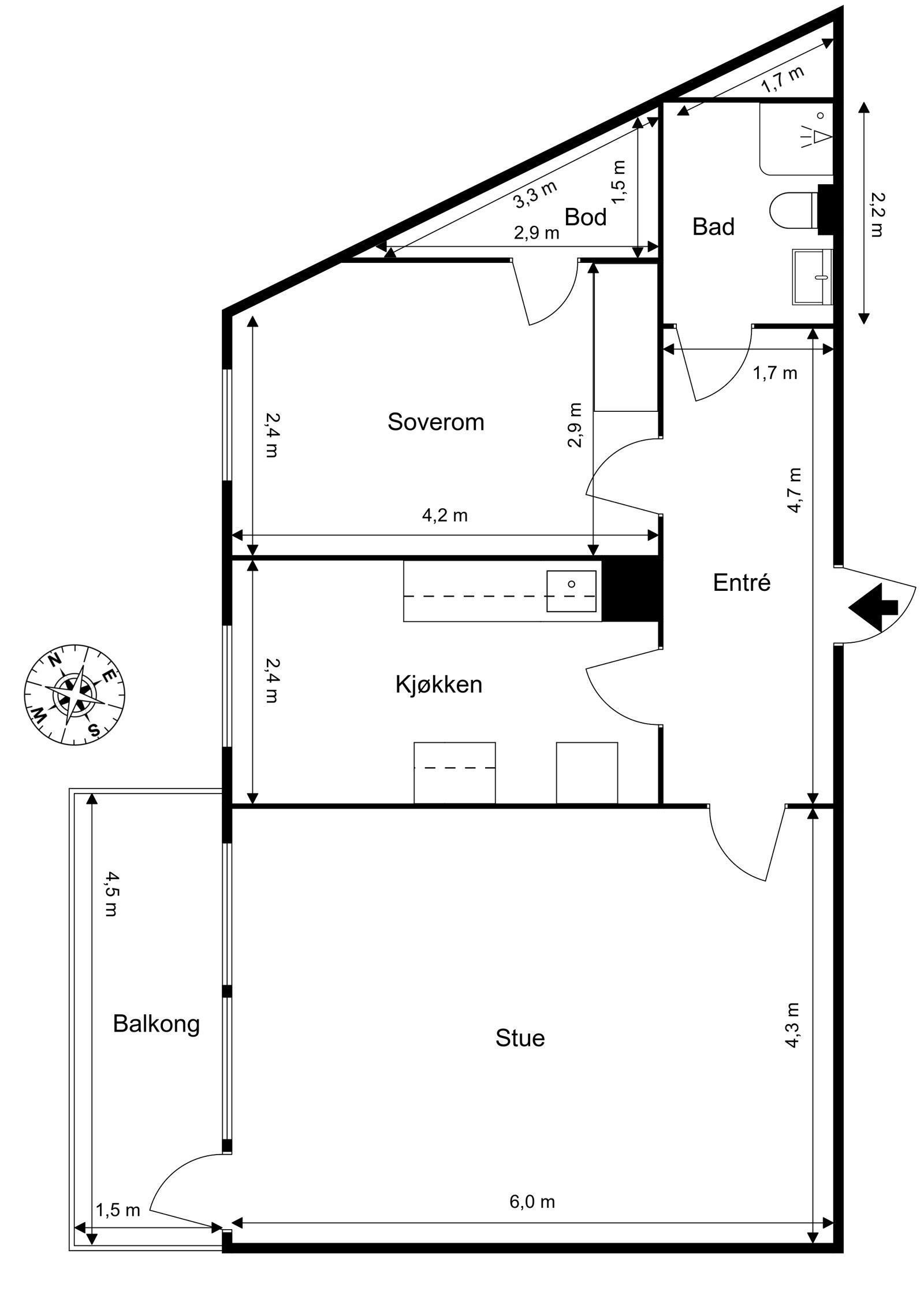
Velkommen til Tidemanns gate 31- her har vi gleden av å presentere en innholdsrik og lys 2-roms leilighet med flott nordvest vendt balkong. Leiligheten ligger i et svært populært og etterspurt strøk, rett ved Vestkanttorget, med kort vei til trikk, hyggelige kafeer, butikker og flere grønne parker - alt innen kort gangavstand. Svært god intern beliggenhet i byggets femte etasje med heisadkomst.
Kvaliteter:
- Lys 2-roms leilighet, høyt beliggende i byggets femte etasje med heisadkomst
- Nordvest- vendt balkong på ca. 7 kvm
- Bad med opplegg for vaskemaskin
- Romslig soverom
- Kjøkken i eget rom
- Mulighet for kjøp av bruksrett til garasjeplass for kr. 800 000,-
- Kort avstand til Frognerparken med Frognerbadet og tennisbaner, Majorstuen, Briskeby og Frogner
Velkommen til visning!
Salgsoppgaven beskriver vesentlig og lovpålagt informasjon om eiendommen
Se komplett salgsoppgaveNyttige lenker
Nærområdet

PrivatMegleren Dyve & Partnere
Annonseinformasjon
| FINN-kode | 441208418 |
|---|---|
| Sist endret | 12. jan. 2026 19:47 |
| Referanse | 159250829 |
Annonsene kan være mangelfulle i forhold til lovpålagt opplysningsplikt. Før bindende avtale inngås oppfordres interessenter til å innhente komplett informasjon fra meglerforetaket, selger eller utleier.

























