Bildegalleri

Velkommen til Buskveien 10B!
Ny, stilren tomannsbolig med idyllisk beliggenhet - kort vei til både byliv og sjø - 3 sov - 2 bad
Prisantydning2 020 000 kr
Nøkkelinfo
- Boligtype
- Tomannsbolig
- Eieform
- Andel
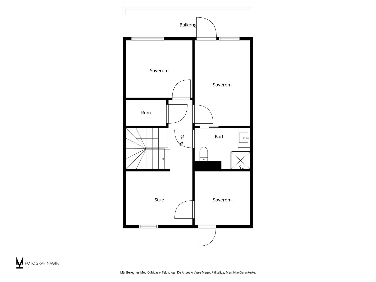
- Soverom
- 3
- Internt bruksareal
- 109 m² (BRA-i)
- Bruksareal
- 115 m²
- Eksternt bruksareal
- 6 m² (BRA-e)
- Balkong/Terrasse
- 26 m² (TBA)
- Etasje
- 2
- Byggeår
- 2023
- Energimerking
- B - Rød
- Rom
- 4
- Tomteareal
- 5 586 m² (eiet)
Fasiliteter
Balkong/Terrasse
Barnevennlig
Bredbåndstilknytning
Hage
Rolig
Turterreng
Balansert ventilasjon
Visning
For å delta på visning, ber vi om at du melder deg på. Da sikrer vi at du får nødvendig informasjon og at det er satt av tilstrekkelig med tid. Kontakt megler dersom annet tidspunkt ønskes. Husk å lese salgsoppgaven før visningen, så du stiller forberedt. NB. Visning utgår dersom det ikke er noen påmeldte.
Ønsker du kun å bli holdt orientert, kan du fra eiendommens hjemmeside få varsel om solgtpris, eller kontakte megler.
VisningspåmeldingOm boligen
Moderne, nyoppført bolig som kombinerer komfort, praktisk livsstil og gjennomtenkte løsninger. Rålekkert kjøkken med integrerte hvitevarer, to stilrene bad, eget vaskerom og tre romslige soverom gjør hjemmet perfekt for barnefamilier eller par. Boligen har usjenerte uteplasser med terrasse, hyggelig hage og to balkonger i 2. etasje ideelt for både avslapning og sosiale sammenkomster.
Beliggenheten er svært barnevennlig med trygge gang- og sykkelveier til sjø, strender, flotte turområder, skole og fritidsaktiviteter. Gode bussforbindelser til Sandefjord og Oslo gjør pendling enkelt.
Bygget etter TEK-17, og alt er helt nytt. Eikelyhagen et godt alternativ. Borettslaget har IN-Ordning for en fleksibel finansieringsløsning.
Velkommen til en hyggelig visning!
Beliggenheten er svært barnevennlig med trygge gang- og sykkelveier til sjø, strender, flotte turområder, skole og fritidsaktiviteter. Gode bussforbindelser til Sandefjord og Oslo gjør pendling enkelt.
Bygget etter TEK-17, og alt er helt nytt. Eikelyhagen et godt alternativ. Borettslaget har IN-Ordning for en fleksibel finansieringsløsning.
Velkommen til en hyggelig visning!
NB: Knappen for å vise hele beskrivelsen har kun en visuell effekt.
NB: Knappen for å vise hele beskrivelsen har kun en visuell effekt.
Salgsoppgaven beskriver vesentlig og lovpålagt informasjon om eiendommen
Se komplett salgsoppgaveNyttige lenker
Nærområdet
Krogsveen Sandefjord
Velkommen til en enklere boligreise.
Annonseinformasjon
| FINN-kode | 441185166 |
|---|---|
| Sist endret | 12. des. 2025 10:51 |
| Referanse | KR22.25470 |
Annonsene kan være mangelfulle i forhold til lovpålagt opplysningsplikt. Før bindende avtale inngås oppfordres interessenter til å innhente komplett informasjon fra meglerforetaket, selger eller utleier.









































