Bildegalleri

Eiendomsmegler 1 ved Martin Antonsen ønsker velkommen til Harald Torps veg 23!
Tiller
Moderne og lekker 2-roms leilighet i 1. etasje. TG1 bad og kjøkken. Vestvendt balkong. P-plass i kjeller.
Prisantydning2 790 000 kr
Nøkkelinfo
- Boligtype
- Leilighet
- Eieform
- Eier (Selveier)
- Soverom
- 1
- Internt bruksareal
- 40 m² (BRA-i)
- Bruksareal
- 45 m²
- Eksternt bruksareal
- 5 m² (BRA-e)
- Balkong/Terrasse
- 7 m² (TBA)
- Etasje
- 1
- Byggeår
- 2017
- Energimerking
- B - Mørkegrønn
- Rom
- 2
- Tomteareal
- 6 854 m² (eiet)
Fasiliteter
Barnevennlig
Balkong/Terrasse
Garasje/P-plass
Kabel-TV
Heis
Offentlig vann/kloakk
Parkett
Vaktmester-/vektertjeneste
Bredbåndstilknytning
Moderne
Rolig
Lademulighet
Balansert ventilasjon
Visning
torsdag, 08. januar
17:00 – 18:00
Våre visninger har påmelding. Dette gjør vi for å kunne yte bedre service for våre kunder. Verdifullt for boligkjøper og for oss. Vi anbefaler at salgsoppgaven lastes ned digitalt før visning, og ring oss gjerne på forhånd for spørsmål om boligen. Passer ikke angitt tidspunkt, ta kontakt så finner vi en løsning. Skulle det mot formodning ikke være påmeldte til angitt visningstidspunkt vil ikke visning bli gjennomført.
Om boligen
Velkommen til Harald Torps veg 23 A
EiendomsMegler 1 ved Martin Antonsen har gleden av å presentere en Moderne og lekker 2-roms leilighet i 1. etasje på Tiller.
Kvaliteter verdt å nevne:
EiendomsMegler 1 ved Martin Antonsen har gleden av å presentere en Moderne og lekker 2-roms leilighet i 1. etasje på Tiller.
Kvaliteter verdt å nevne:
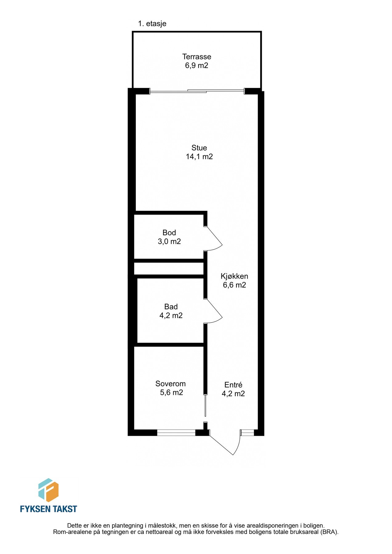
- Åpen stue-kjøkkenløsning på 20,7 kvm.
- Store vindusflater som gir rikelig med naturlig lysinnslipp.
- Moderne kjøkken med integrerte hvitevarer, vurdert til TG1 av takstmann.
- Pent flislagt bad med behagelig gulvvarme, vurdert til TG1 av takstmann.
- Badet har opplegg til vaskemaskin.
- Utgang til en vestvendt balkong med overtak.
- Elektrisk solskjermer på balkongen som medfølger i handelen.
- Boligen varmes opp ved fjernvarme og elektrisk.
- Godt med lagringsplass i boligen, samt utvendig bod.
- Parkering i felles garasjeanlegg med el-bil lader.
- Nærhet til Tillermarka.
- Flere bussforbindelser i nærheten.
Velkommen til en hyggelig visning!
NB: Knappen for å vise hele beskrivelsen har kun en visuell effekt.
NB: Knappen for å vise hele beskrivelsen har kun en visuell effekt.
Salgsoppgaven beskriver vesentlig og lovpålagt informasjon om eiendommen
Se komplett salgsoppgaveNærområdet
EiendomsMegler 1 Heimdal
Vi loser deg trygt gjennom hele boligsalget
Annonseinformasjon
| FINN-kode | 441148210 |
|---|---|
| Sist endret | 26. des. 2025 14:42 |
| Referanse | 31250609 |
Annonsene kan være mangelfulle i forhold til lovpålagt opplysningsplikt. Før bindende avtale inngås oppfordres interessenter til å innhente komplett informasjon fra meglerforetaket, selger eller utleier.



























