Bildegalleri

EIE eiendomsmegling ønsker velkommen til Skolegata 3 og 4 etasje!
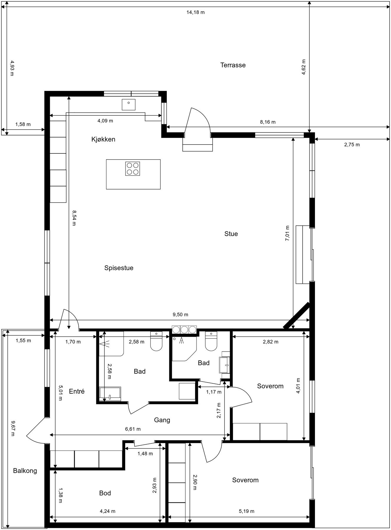
Fantastisk og innholdsrik selveierleilighet i 4.etasje med ca 100 kvm terrasse! Sol fra morgen til kveld. Midt i byen!
Prisantydning10 900 000 kr
Nøkkelinfo
- Boligtype
- Leilighet
- Eieform
- Eier (Selveier)
- Soverom
- 2
- Internt bruksareal
- 142 m² (BRA-i)
- Bruksareal
- 148 m²
- Eksternt bruksareal
- 6 m² (BRA-e)
- Balkong/Terrasse
- 105 m² (TBA)
- Etasje
- 4
- Byggeår
- 2002
- Energimerking
- D - Rød
- Tomteareal
- 2 228 m² (eiet)
Fasiliteter
Balkong/Terrasse
Kabel-TV
Heis
Offentlig vann/kloakk
Parkett
Peis/Ildsted
Utsikt
Sentralt
Bredbåndstilknytning
Om boligen
EIE eiendomsmegling ønsker velkommen til Skolegata 3!
Leiligheten holder en gjennomgående god standard og har en meget praktisk romløsning. Stor stue med store vindusflater fra gulv til tak, som gjør at leiligheten er lys og trivelig. Stor terrasse på ca.100 kvm som innbyr til flotte selskaper og moro, og hvor man kan nyte solen fra tidlig om morgenen til langt ut på kvelden. En unik mulighet - midt i byen med "alt" utenfor døren i umiddelbar nærhet.
Kort fortalt:
- Leilighet i 4.etasje med fantastiske uteplasser
- Terrasse på ca 100 kvm med suverene solforhold hele året
- Sol fra morgen til kveld
- Designa kjøkken med "alt" av integrerte hvitevarer
- Gasspeis
- 2 bad og 2 soverom
- Bod i 1.etasje på 6 kvm.
- Garasje leie
- Heis i bygget
Denne leiligheten må oppleves! Velkommen på visning.
Leiligheten holder en gjennomgående god standard og har en meget praktisk romløsning. Stor stue med store vindusflater fra gulv til tak, som gjør at leiligheten er lys og trivelig. Stor terrasse på ca.100 kvm som innbyr til flotte selskaper og moro, og hvor man kan nyte solen fra tidlig om morgenen til langt ut på kvelden. En unik mulighet - midt i byen med "alt" utenfor døren i umiddelbar nærhet.
Kort fortalt:
- Leilighet i 4.etasje med fantastiske uteplasser
- Terrasse på ca 100 kvm med suverene solforhold hele året
- Sol fra morgen til kveld
- Designa kjøkken med "alt" av integrerte hvitevarer
- Gasspeis
- 2 bad og 2 soverom
- Bod i 1.etasje på 6 kvm.
- Garasje leie
- Heis i bygget
Denne leiligheten må oppleves! Velkommen på visning.
NB: Knappen for å vise hele beskrivelsen har kun en visuell effekt.
NB: Knappen for å vise hele beskrivelsen har kun en visuell effekt.
Salgsoppgaven beskriver vesentlig og lovpålagt informasjon om eiendommen
Se komplett salgsoppgaveNyttige lenker
Nærområdet
EIE eiendomsmegling Sandefjord
Annonseinformasjon
| FINN-kode | 441124087 |
|---|---|
| Sist endret | 24. jan. 2026 08:55 |
| Referanse | 87251169 |
Annonsene kan være mangelfulle i forhold til lovpålagt opplysningsplikt. Før bindende avtale inngås oppfordres interessenter til å innhente komplett informasjon fra meglerforetaket, selger eller utleier.

























































