Bildegalleri

Velkommen til Storgata 3! Seksjon 12 presenteres av Kenneth Graarud Olsen i Krogsveen. Fotograf; Kristoffer Kristiansen.
Sentrum
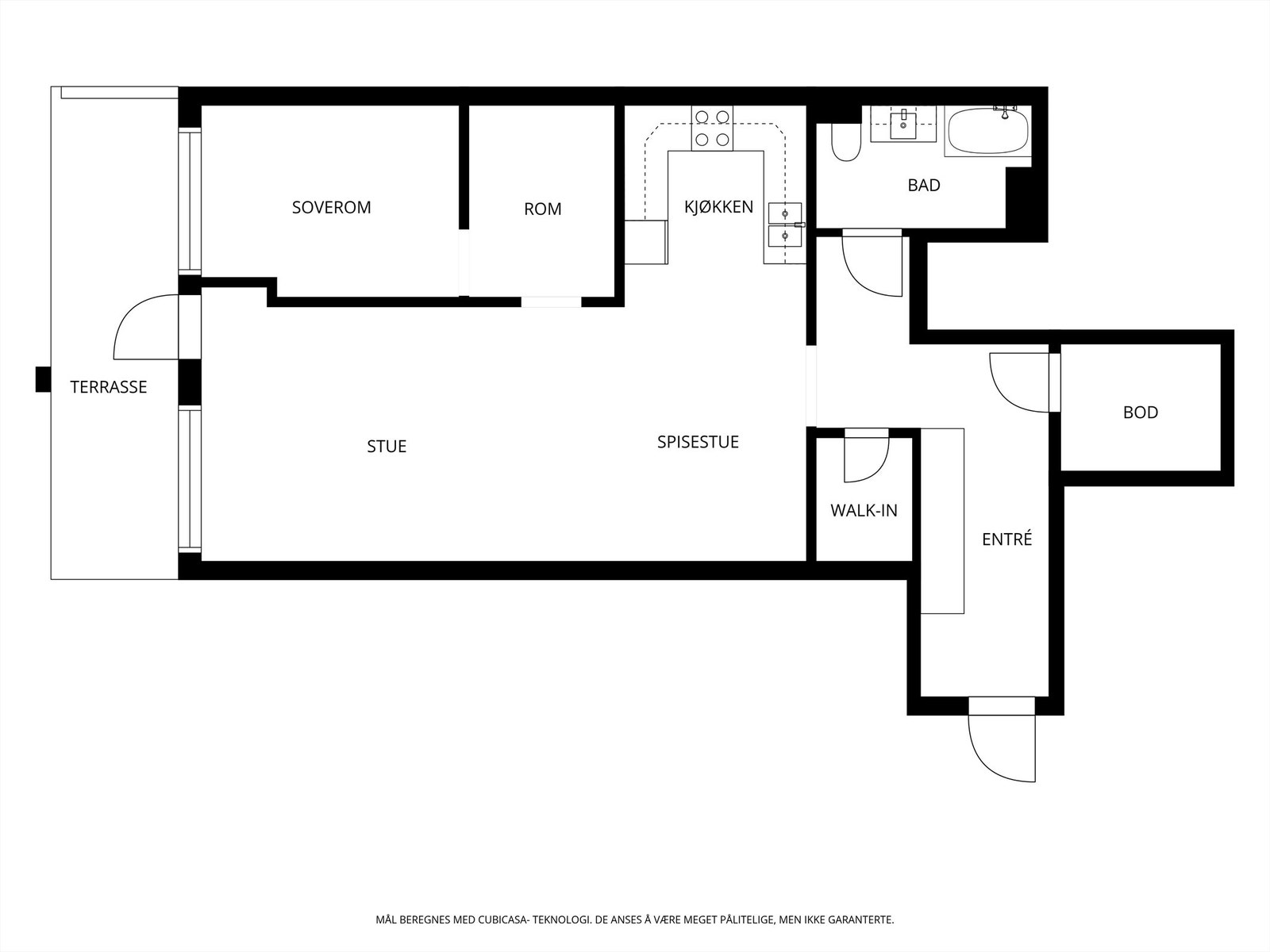
Bo høyt og sentralt ved brygga; stor 2-roms på 88 kvm. i 5. etg. Altan med sol morgen/formiddag. Fjernvarme. Heis.
Prisantydning4 750 000 kr
Nøkkelinfo
- Boligtype
- Leilighet
- Eieform
- Selveier
- Soverom
- 1
- Internt bruksareal
- 88 m² (BRA-i)
- Bruksareal
- 88 m²
- Balkong/Terrasse
- 8 m² (TBA)
- Etasje
- 5
- Byggeår
- 2013
- Rom
- 2
- Tomteareal
- 1 148 m² (eiet)
Fasiliteter
Takterrasse
Balkong/Terrasse
Bredbåndstilknytning
Heis
Kjæledyr tillatt
Ingen gjenboere
Kabel-TV
Offentlig vann/kloakk
Parkett
Rolig
Sentralt
Utsikt
Turterreng
Balansert ventilasjon
Visning
onsdag, 27. mai
15:00 – 15:30
For å delta på visning, ber vi om at du melder deg på. Da sikrer vi at du får nødvendig informasjon og at det er satt av tilstrekkelig med tid. Kontakt megler dersom annet tidspunkt ønskes. Husk å lese salgsoppgaven før visningen, så du stiller forberedt. NB. Visning utgår dersom det ikke er noen påmeldte.
Ønsker du kun å bli holdt orientert, kan du fra eiendommens hjemmeside få varsel om solgtpris, eller kontakte megler.
VisningspåmeldingOm boligen
Sjeldent stor to-roms selveier på hele 88 kvm. ved brygga, midt i byen
- Høyt hevet over gatenivået i femte etasje
- Egen altan med sol morgen/formiddag sommerstid
- Tilknyttet fjernvarme - vannbåren gulvvarme i alle rom
- De fleste overflater nymalt høsten 2025
- Sigdal-kjøkken med alle hvitevarer integrert
- To innvendige boder med meget gode lagringsmuligheter
- Enkel adkomst med heis til alle etasjer
- Restauranter i første etasje
- Alle byens tilbud innenfor få minutters gange
- Kun 10 min. gange til togstasjonen
NB: Knappen for å vise hele beskrivelsen har kun en visuell effekt.
NB: Knappen for å vise hele beskrivelsen har kun en visuell effekt.
Salgsoppgaven beskriver vesentlig og lovpålagt informasjon om eiendommen
Se komplett salgsoppgaveNyttige lenker
Nærområdet
Krogsveen Fredrikstad og Sarpsborg
Verdien av en god megler.
Annonseinformasjon
| FINN-kode | 441000826 |
|---|---|
| Sist endret | 18. mai 2026 09:48 |
| Referanse | KR67.25330 |
Annonsene kan være mangelfulle i forhold til lovpålagt opplysningsplikt. Før bindende avtale inngås oppfordres interessenter til å innhente komplett informasjon fra meglerforetaket, selger eller utleier.
































