Bildegalleri

Velkommen til Jon Sørensens veg 1, en innholdsrik enebolig over to plan! Foto: Espen Edin/Image Day.
Vilberg/Sundet
Familievennlig enebolig sentralt i Eidsvoll | Terrasse på 33 m² | Peisovn | Romslig hage | Kort vei til skoler/barnehage
Prisantydning4 000 000 kr
Nøkkelinfo
- Boligtype
- Enebolig
- Eieform
- Eier (Selveier)
- Soverom
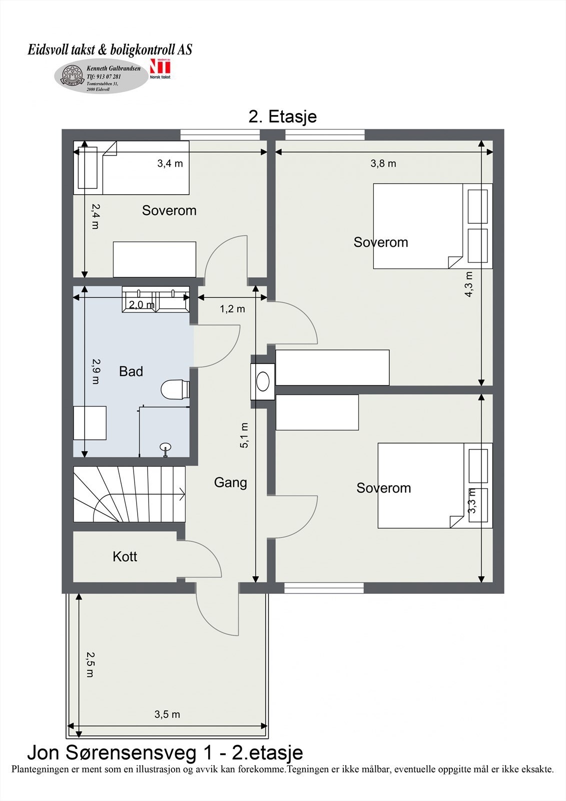
- 3
- Internt bruksareal
- 175 m² (BRA-i)
- Bruksareal
- 194 m²
- Eksternt bruksareal
- 19 m² (BRA-e)
- Balkong/Terrasse
- 42 m² (TBA)
- Etasje
- 2
- Byggeår
- 1964
- Energimerking
- G - Gul
- Rom
- 4
- Tomteareal
- 1 804 m² (festet)
- Festeavgift
- 3 525 kr
Fasiliteter
Balkong/Terrasse
Barnevennlig
Garasje/P-plass
Hage
Peis/Ildsted
Rolig
Sentralt
Visning
søndag, 11. januar
12:00 – 12:45
Vi ønsker på forhånd å vite om du kommer på visning og ber deg ta kontakt for avtale om visning på angitt dag. Dette gjør vi for å kunne yte bedre service til kundene våre.
For visninger utover de annonserte, ta kontakt med megler på telefon 902 46 934.
VisningspåmeldingOm boligen
Velkommen til Jon Sørensens veg 1, presentert av Krister Johnsen Støme v/EiendomsMegler 1!
Eiendommen består av en stor, festet tomt med opparbeidet hage, enebolig og garasje. Eneboligen er oppført med 2 plan og råkjeller som inneholder blant annet en romslig og delvis åpen stue-/kjøkkenløsning, bad, 3 soverom, kott og uinnredede rom i råkjeller. Det er rikelig med lagringsplass i boligen.
Området er attraktivt for barnefamilier med kort gangavstand til skoler, barnehage, dagligvareforretninger, Eidsvoll kunstgressbane og buss. En kort kjøretur unna ligger Eidsvoll stasjon, Eidsvollsbygningen og turområder.
Kort fortalt:
- Terrasse og balkong
- Garasje
- Peisovn fra 2019
- Varmepumpe fra 2023
- Bad pusset opp i 2017
- Kjøkken ble modernisert i 2017
- EL-lader fra 2018
Eiendommen består av en stor, festet tomt med opparbeidet hage, enebolig og garasje. Eneboligen er oppført med 2 plan og råkjeller som inneholder blant annet en romslig og delvis åpen stue-/kjøkkenløsning, bad, 3 soverom, kott og uinnredede rom i råkjeller. Det er rikelig med lagringsplass i boligen.
Området er attraktivt for barnefamilier med kort gangavstand til skoler, barnehage, dagligvareforretninger, Eidsvoll kunstgressbane og buss. En kort kjøretur unna ligger Eidsvoll stasjon, Eidsvollsbygningen og turområder.
Kort fortalt:
- Terrasse og balkong
- Garasje
- Peisovn fra 2019
- Varmepumpe fra 2023
- Bad pusset opp i 2017
- Kjøkken ble modernisert i 2017
- EL-lader fra 2018
NB: Knappen for å vise hele beskrivelsen har kun en visuell effekt.
NB: Knappen for å vise hele beskrivelsen har kun en visuell effekt.
Salgsoppgaven beskriver vesentlig og lovpålagt informasjon om eiendommen
Se komplett salgsoppgaveNyttige lenker
Nærområdet
Eiendomsmegler 1 Jessheim
Vi loser deg trygt gjennom hele boligsalget
Annonseinformasjon
| FINN-kode | 440545068 |
|---|---|
| Sist endret | 01. jan. 2026 18:26 |
| Referanse | 3375250216 |
Annonsene kan være mangelfulle i forhold til lovpålagt opplysningsplikt. Før bindende avtale inngås oppfordres interessenter til å innhente komplett informasjon fra meglerforetaket, selger eller utleier.








































