


Velkommen til Majorstuveien 13 B! Her får dere et lyst, gjennomført og moderne hjem dere kan flytte rett inn i. Vi ses på visning. Foto: Kim David Eriksen
Salgsoppgaven beskriver vesentlig og lovpålagt informasjon om eiendommen
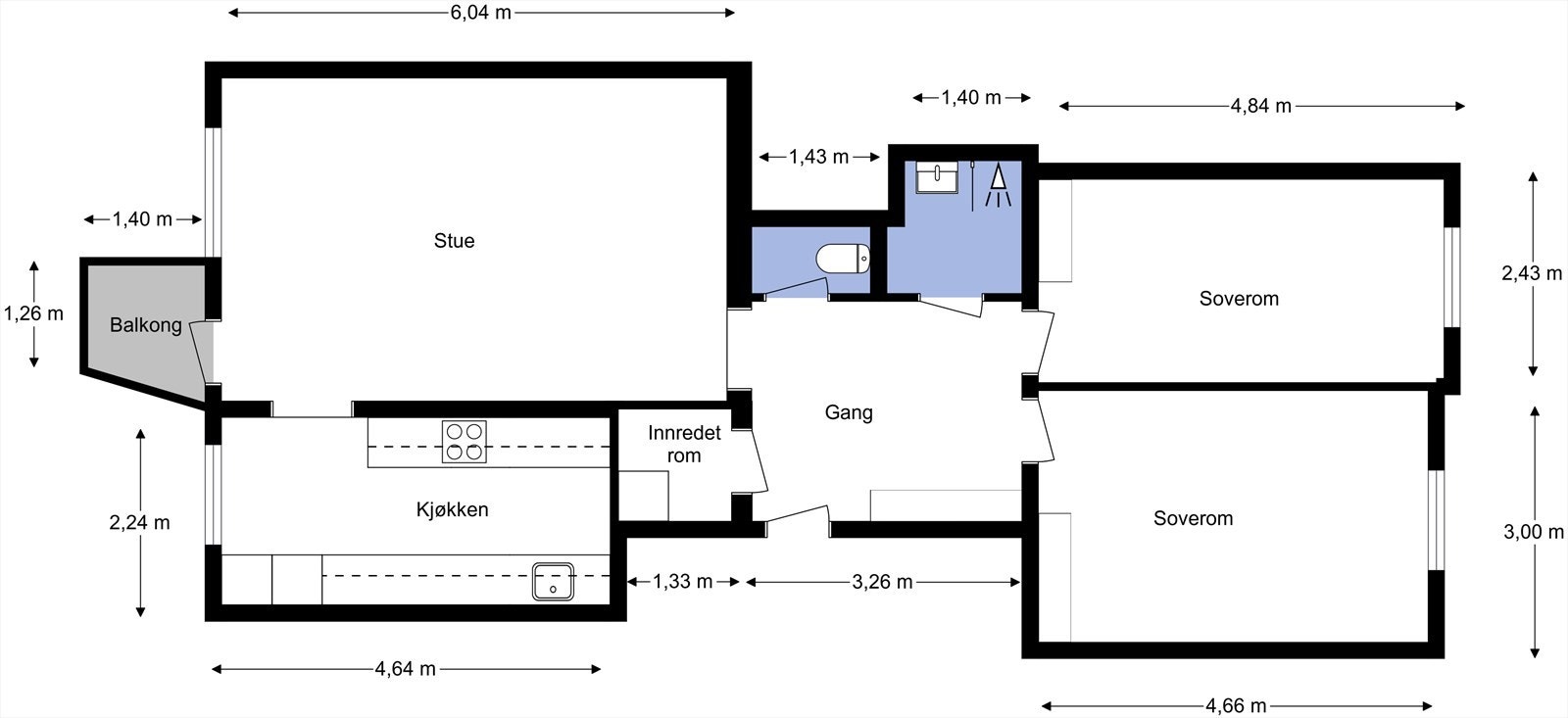
Se komplett salgsoppgaveMajorstuveien 13B
på annonsen
prisantydning per kvadratmeter
Pris per m² ligger 11 159 kr under snittet for leiligheter i Uranienborg - Majorstuen.
Grafen viser antall leiligheter solgt i Uranienborg - Majorstuen siste året fordelt på pris per m² - totalt 1 476 leiligheter
Antall boliger
Kvadratmeterpris tilsvarer prisantydning pluss fellesgjeld per kvadratmeter (p-rom eller BRA-i). Prisene i grafen er avrundet til nærmeste 1000 kr.












| FINN-kode | 440528271 |
|---|---|
| Sist endret | 16. feb. 2026 11:14 |
| Referanse | 1008250330 |
Annonsene kan være mangelfulle i forhold til lovpålagt opplysningsplikt. Før bindende avtale inngås oppfordres interessenter til å innhente komplett informasjon fra meglerforetaket, selger eller utleier.