Bildegalleri

Krogsveen presenterer Hjerakroken 4E - Foto: Heidi Larsen
Dal
Praktisk 3-Roms eierleilighet | Parkering | Populært og barnevennlig | Nærhet til servicetilbud
Prisantydning2 890 000 kr
Nøkkelinfo
- Boligtype
- Leilighet
- Eieform
- Selveier
- Soverom
- 2
- Internt bruksareal
- 55 m² (BRA-i)
- Bruksareal
- 62 m²
- Eksternt bruksareal
- 7 m² (BRA-e)
- Balkong/Terrasse
- 33 m² (TBA)
- Etasje
- 1
- Byggeår
- 2014
- Energimerking
- Rom
- 3
- Tomteareal
- 3 195 m² (eiet)
Fasiliteter
Balkong/Terrasse
Barnevennlig
Garasje/P-plass
Kjæledyr tillatt
Kabel-TV
Offentlig vann/kloakk
Rolig
Visning
For å delta på visning, ber vi om at du melder deg på. Da sikrer vi at du får nødvendig informasjon og at det er satt av tilstrekkelig med tid. Kontakt megler dersom annet tidspunkt ønskes. Husk å lese salgsoppgaven før visningen, så du stiller forberedt. NB. Visning utgår dersom det ikke er noen påmeldte. Ønsker du kun å bli holdt orientert, kan du fra eiendommens hjemmeside få varsel om solgtpris, eller kontakte megler.
VisningspåmeldingOm boligen
Velkommen til Hjerakroken 4E
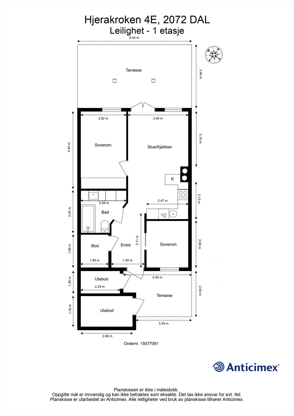
Praktisk og arealeffektiv tre roms leilighet på Dal. Leiligheten har en god planløsning med to soverom, bad og åpen kjøkken/stue løsning. Leiligheten har to terrasser med god plass til sittegrupper.
Eiendommen på Dal i Eidsvoll ligger i et barnevennlig område med gangavstand til skole, barnehage, butikk, tog og buss. Nærhet til Letohallen, idrettstilbud og flotte friluftsområder, inkludert Hurdalssjøen og Mistberget. Området byr på gode pendlermuligheter til Oslo og Gardermoen. Råholt og Jessheim tilbyr et bredt servicetilbud med butikker og helsetjenester i nærheten. Området passer godt for de som ser etter noe med variert aktivitetstilbud og gode hverdagsfasiliteter.
Husk visningspåmelding
Praktisk og arealeffektiv tre roms leilighet på Dal. Leiligheten har en god planløsning med to soverom, bad og åpen kjøkken/stue løsning. Leiligheten har to terrasser med god plass til sittegrupper.
Eiendommen på Dal i Eidsvoll ligger i et barnevennlig område med gangavstand til skole, barnehage, butikk, tog og buss. Nærhet til Letohallen, idrettstilbud og flotte friluftsområder, inkludert Hurdalssjøen og Mistberget. Området byr på gode pendlermuligheter til Oslo og Gardermoen. Råholt og Jessheim tilbyr et bredt servicetilbud med butikker og helsetjenester i nærheten. Området passer godt for de som ser etter noe med variert aktivitetstilbud og gode hverdagsfasiliteter.
Husk visningspåmelding
NB: Knappen for å vise hele beskrivelsen har kun en visuell effekt.
NB: Knappen for å vise hele beskrivelsen har kun en visuell effekt.
Salgsoppgaven beskriver vesentlig og lovpålagt informasjon om eiendommen
Se komplett salgsoppgaveNyttige lenker
Nærområdet
Krogsveen Jessheim
Verdien av en god megler.
Annonseinformasjon
| FINN-kode | 440523948 |
|---|---|
| Sist endret | 16. apr. 2026 11:27 |
| Referanse | KR63.25254 |
Annonsene kan være mangelfulle i forhold til lovpålagt opplysningsplikt. Før bindende avtale inngås oppfordres interessenter til å innhente komplett informasjon fra meglerforetaket, selger eller utleier.
























