Bildegalleri

Velkommen til Breigata 7 - presentert av Eiendomsmegler Krogsveen v/ Jan Robert Ottesen
Tøyen / Grønland
Lys, luftig 2-roms. Stor og skjermet, solrik sydvestvendt balkong. Baderom fra 2019. Sentral beliggenhet. Garasje m/EL*
Prisantydning5 290 000 kr
Nøkkelinfo
- Boligtype
- Leilighet
- Eieform
- Eier (Selveier)
- Soverom
- 1
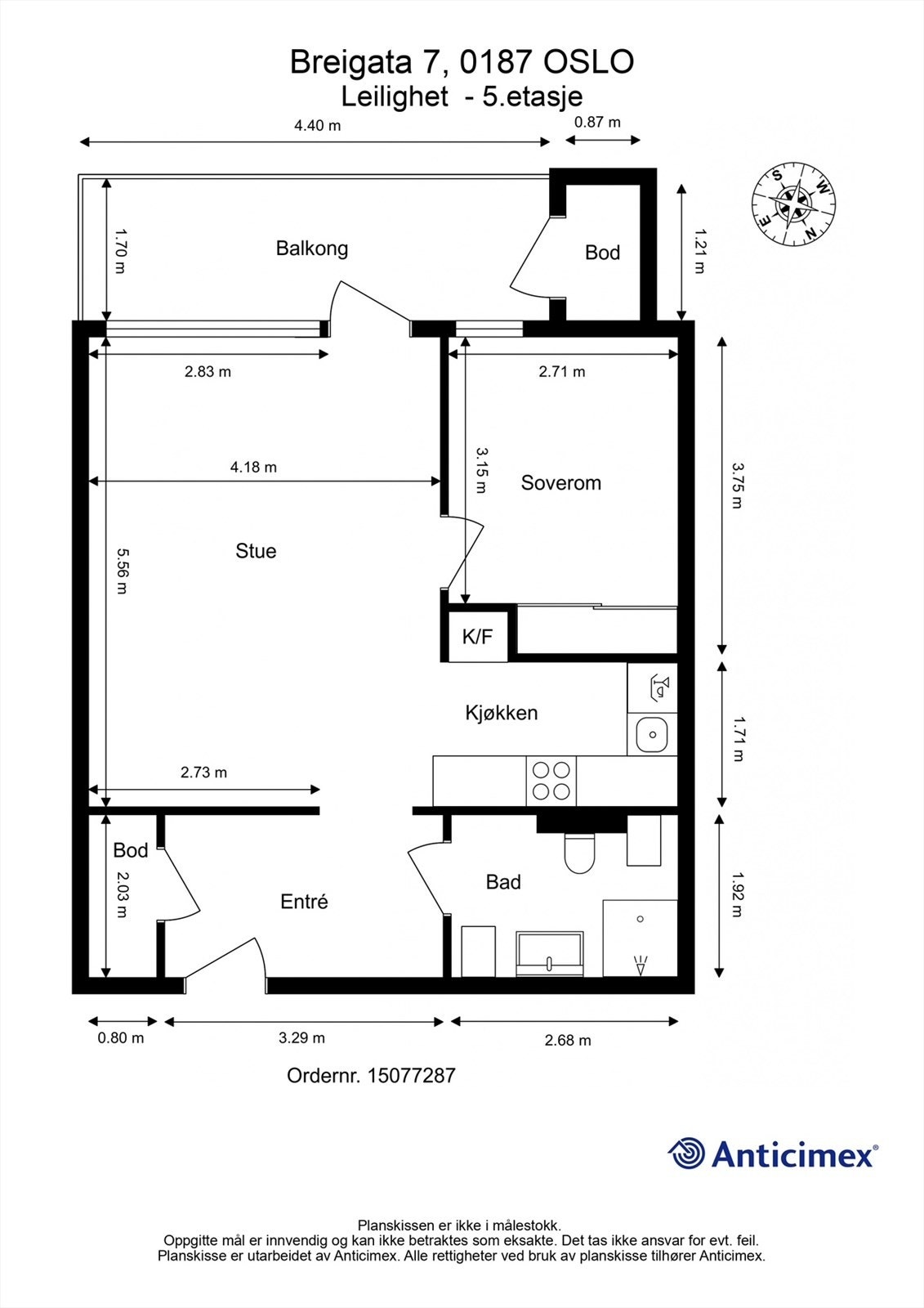
- Internt bruksareal
- 54 m² (BRA-i)
- Bruksareal
- 60 m²
- Eksternt bruksareal
- 6 m² (BRA-e)
- Balkong/Terrasse
- 8 m² (TBA)
- Etasje
- 5
- Byggeår
- 1984
- Energimerking
- E - Rød
- Rom
- 2
- Tomteareal
- 1 426 m² (eiet)
Fasiliteter
Balkong/Terrasse
Barnevennlig
Bredbåndstilknytning
Garasje/P-plass
Heis
Kjæledyr tillatt
Ingen gjenboere
Kabel-TV
Offentlig vann/kloakk
Rolig
Sentralt
Utsikt
Utvidelsesmuligheter
Vaktmester-/vektertjeneste
Turterreng
Lademulighet
Visning
søndag, 11. januar
15:45 – 16:30
For å delta på visning, ber vi om at du melder deg på. Da sikrer vi at du får nødvendig informasjon og at det er satt av tilstrekkelig med tid. Kontakt megler dersom annet tidspunkt ønskes. Husk å lese salgsoppgaven før visningen, så du stiller forberedt.
Ønsker du kun å bli holdt orientert, kan du fra eiendommens hjemmeside få varsel om solgtpris, eller kontakte megler.
VisningspåmeldingOm boligen
Pen 2-roms leilighet med store vindusflater, en romslig planløsning og oppgradert standard! Beliggende høyt oppe i femte etasje med flott utsikt over sameiets fellesområde/bakgård og nesten ingen direkte innsyn, oppleves leiligheten som usjenert. Fra stuen er det utgang til herlig balkong på hele 8 kvm. Her er det sol store deler av dagen, og markise som gjør at leiligheten holder seg behagelig sval gjennom varme sommerdager. En lys og arealeffektiv leilighet hvor bygården ligger i urbane omgivelser, men skjermet med umiddelbar nærhet til både parker og Barcode, samt alt Grønland og Tøyen har å by på! Beliggenheten anses som sjeldent god med alt av byens fasiliteter rett utenfor døren!
- Baderom fra 2019
- God lagringsplass. 3 boder
- *Opsjon på kjøp av garasjeplass med elbillader
NB: Knappen for å vise hele beskrivelsen har kun en visuell effekt.
NB: Knappen for å vise hele beskrivelsen har kun en visuell effekt.
Salgsoppgaven beskriver vesentlig og lovpålagt informasjon om eiendommen
Se komplett salgsoppgaveNyttige lenker
Nærområdet
Krogsveen Årvoll
Velkommen til en enklere boligreise.
Annonseinformasjon
| FINN-kode | 440385551 |
|---|---|
| Sist endret | 04. jan. 2026 07:41 |
| Referanse | KR39.25211 |
Annonsene kan være mangelfulle i forhold til lovpålagt opplysningsplikt. Før bindende avtale inngås oppfordres interessenter til å innhente komplett informasjon fra meglerforetaket, selger eller utleier.































