Bildegalleri

Velkommen til Hammarstuvegen 22! Innholdsrik enebolig fordelt på to plan med klassisk preg - romslig planløsning, flere oppgraderinger og gode løsninger for en aktiv familie.
Furnes
Familievennlig enebolig i Furnes med kort vei til barnehage og skoler | Varmepumpe og vedovn | Stor tomt og terrasse
Prisantydning3 600 000 kr
Nøkkelinfo
- Boligtype
- Enebolig
- Eieform
- Eier (Selveier)
- Soverom
- 4
- Internt bruksareal
- 165 m² (BRA-i)
- Bruksareal
- 165 m²
- Balkong/Terrasse
- 120 m² (TBA)
- Byggeår
- 1961
- Energimerking
- F - Gul
- Rom
- 5
- Tomteareal
- 1 050 m² (eiet)
Fasiliteter
Aircondition
Balkong/Terrasse
Garasje/P-plass
Hage
Offentlig vann/kloakk
Peis/Ildsted
Sentralt
Turterreng
Visning
Våre visninger har påmelding. Dette gjør vi for å kunne yte bedre service for våre kunder. Verdifullt for boligkjøper og for oss. Vi anbefaler at salgsoppgaven leses før visning, og ring oss gjerne på forhånd for spørsmål om boligen. Passer ikke angitt tidspunkt, ta kontakt så finner vi en løsning. Skulle det mot formodning ikke være påmeldte 4 timer før angitt visningstidspunkt vil ikke visning bli gjennomført.
VisningspåmeldingOm boligen
Velkommen til Hammarstuvegen 22 - Her bor du i et rolig og veletablert område på Furnes, kun 10 minutter fra både Hamar og Brumunddal. Rett i nærheten finner man Olrud kjøpesenter, IKEA og gode bussforbindelser. Kort vei til skoler, barnehager, flotte turområder og treningsfasiliteter.
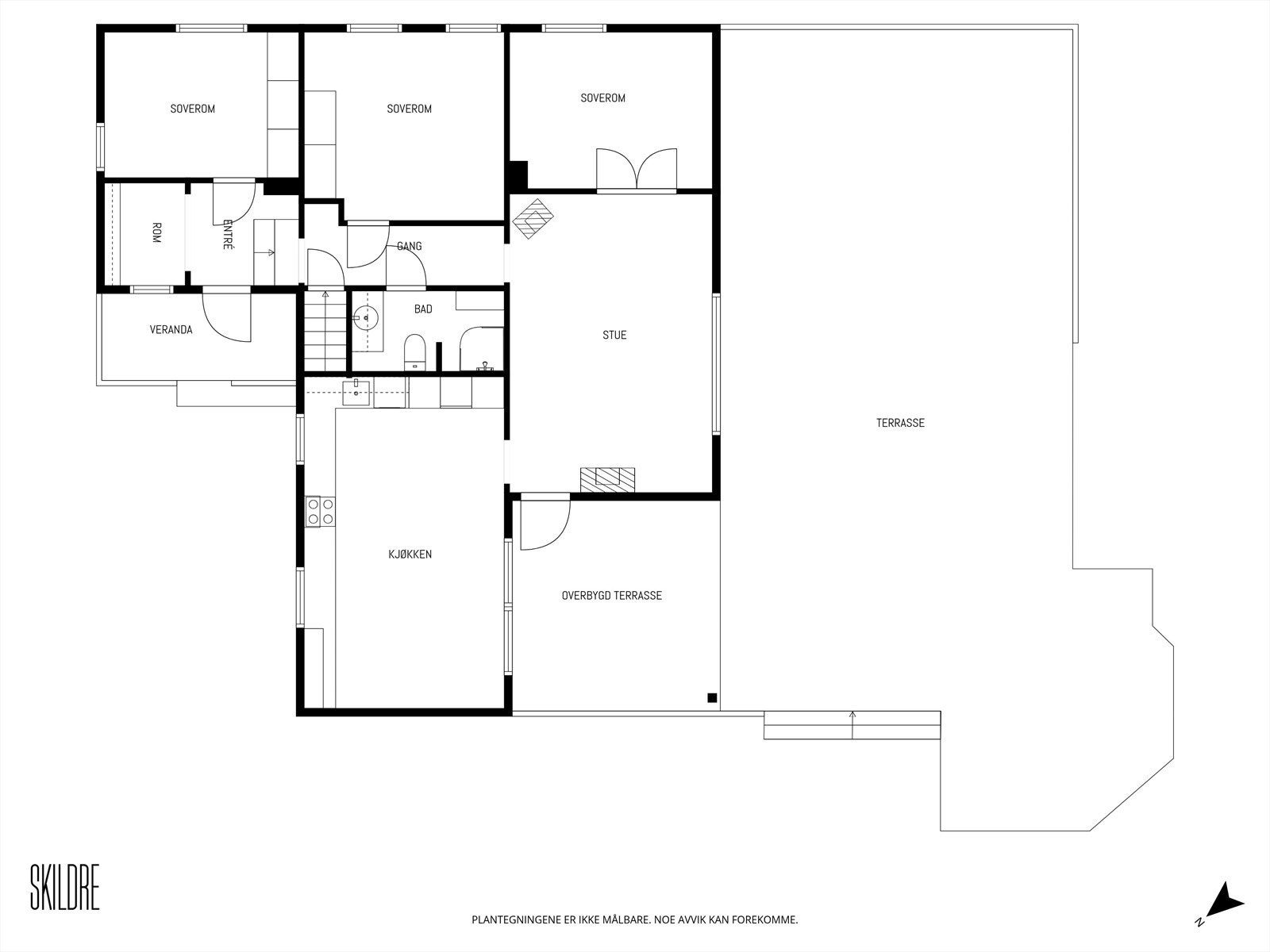
Enebolig går over to plan med påbygg og moderniseringer. 1. etasje med stue, kjøkken, 3 soverom og bad. Kjeller med soverom, walk in og vaskerom.
Kvaliteter:
Enebolig går over to plan med påbygg og moderniseringer. 1. etasje med stue, kjøkken, 3 soverom og bad. Kjeller med soverom, walk in og vaskerom.
Kvaliteter:
- Stor tomt på over 1 mål med solrik hage og gode parkeringsmuligheter
- Terrasse i forlengelse av stuen på ca. 120 m²
- 4 soverom med flere bruksmuligheter fordelt over to plan
- Kjøkken fra 2009 med nyere detaljer i 2023
- Flislagt bad
- Mange rom for fleksibel bruk
NB: Knappen for å vise hele beskrivelsen har kun en visuell effekt.
NB: Knappen for å vise hele beskrivelsen har kun en visuell effekt.
Salgsoppgaven beskriver vesentlig og lovpålagt informasjon om eiendommen
Se komplett salgsoppgaveNyttige lenker
Nærområdet
DNB Eiendom AS
Fra hjem til hjem
Annonseinformasjon
| FINN-kode | 440350848 |
|---|---|
| Sist endret | 05. des. 2025 12:09 |
| Referanse | 517250144 |
Annonsene kan være mangelfulle i forhold til lovpålagt opplysningsplikt. Før bindende avtale inngås oppfordres interessenter til å innhente komplett informasjon fra meglerforetaket, selger eller utleier.










































