Bildegalleri

Her bor du med nærhet til sjø og flotte turområder, samtidig som sentrumskjernen i er like rundt hjørnet.
Stavanger Øst
Romslig og moderne selveierleilighet - 2 soverom, 2 stuer, hagestue, parkering i lukket anlegg
Prisantydning4 390 000 kr
Nøkkelinfo
- Boligtype
- Leilighet
- Eieform
- Eier (Selveier)
- Soverom
- 2
- Internt bruksareal
- 92 m² (BRA-i)
- Bruksareal
- 97 m²
- Eksternt bruksareal
- 5 m² (BRA-e)
- Etasje
- 1
- Byggeår
- 2013
- Energimerking
- D - Mørkegrønn
- Tomteareal
- 1 578 m² (eiet)
Fasiliteter
Barnevennlig
Bredbåndstilknytning
Garasje/P-plass
Heis
Kabel-TV
Offentlig vann/kloakk
Parkett
Rolig
Sentralt
Vaktmester-/vektertjeneste
Balansert ventilasjon
Om boligen
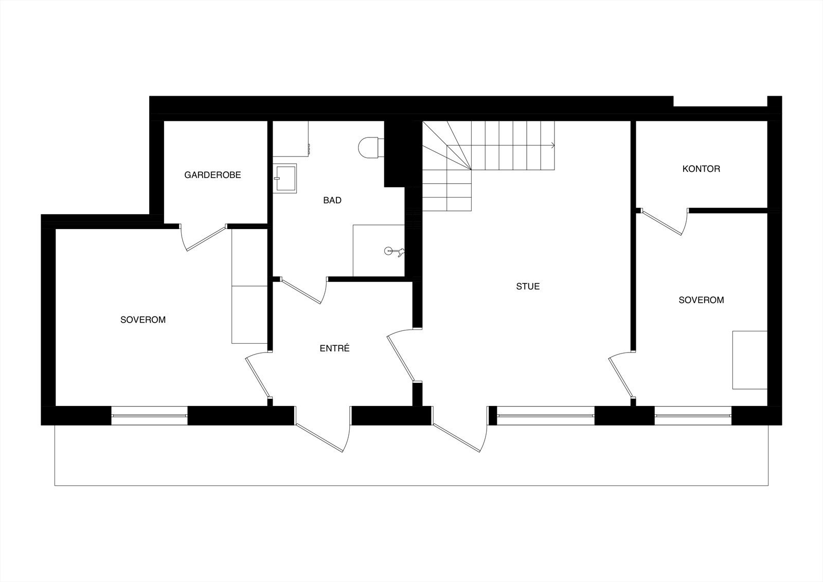
Dette er en moderne 3-roms leilighet med sentral beliggenhet i populære Stavanger Øst. Her bor du med nærhet til sjø og flotte turområder, samtidig som sentrumskjernen i er like rundt hjørnet. Leiligheten strekker seg over to plan og er gjennomgående med god standard.
- Stue med åpen kjøkkenløsning
- Stilren kjøkkeninnredning i sort utførelse med heltre benkeplate
- Lys og trivelig hagestue med fransk balkong
- To soverom, begge soverommene har direkte dør inn til innvendig bod som kan brukes som garderoberom
- Tidløst helfliset bad med varme i gulv
- Bod i u.etasje
- Parkeringsplass i lukket anlegg
- Fjernvarme oppvarming og balansert ventilasjon
- Grønne og frodige fellesområder
- Gå-/sykkelavstand til sentrum
- Umiddelbar nærhet til park og sjø
NB: Knappen for å vise hele beskrivelsen har kun en visuell effekt.
NB: Knappen for å vise hele beskrivelsen har kun en visuell effekt.
Salgsoppgaven beskriver vesentlig og lovpålagt informasjon om eiendommen
Se komplett salgsoppgaveNyttige lenker
Nærområdet
Nordvik Stavanger
Vi vet hva det er verdt
Annonseinformasjon
| FINN-kode | 440226490 |
|---|---|
| Sist endret | 29. des. 2025 13:53 |
| Referanse | 43-0193/25 |
Annonsene kan være mangelfulle i forhold til lovpålagt opplysningsplikt. Før bindende avtale inngås oppfordres interessenter til å innhente komplett informasjon fra meglerforetaket, selger eller utleier.







































