Bildegalleri

Salg av kontrakt | Lekker 4-roms hjørneleilighet i 4. etasje. Vestvendt balkong på 15 m². Garasjeplass kan kjøpes. Lav dokumentavgift. Overtakelse april 2026. Bilde fra byggeplass, 29/1-26.
Røa
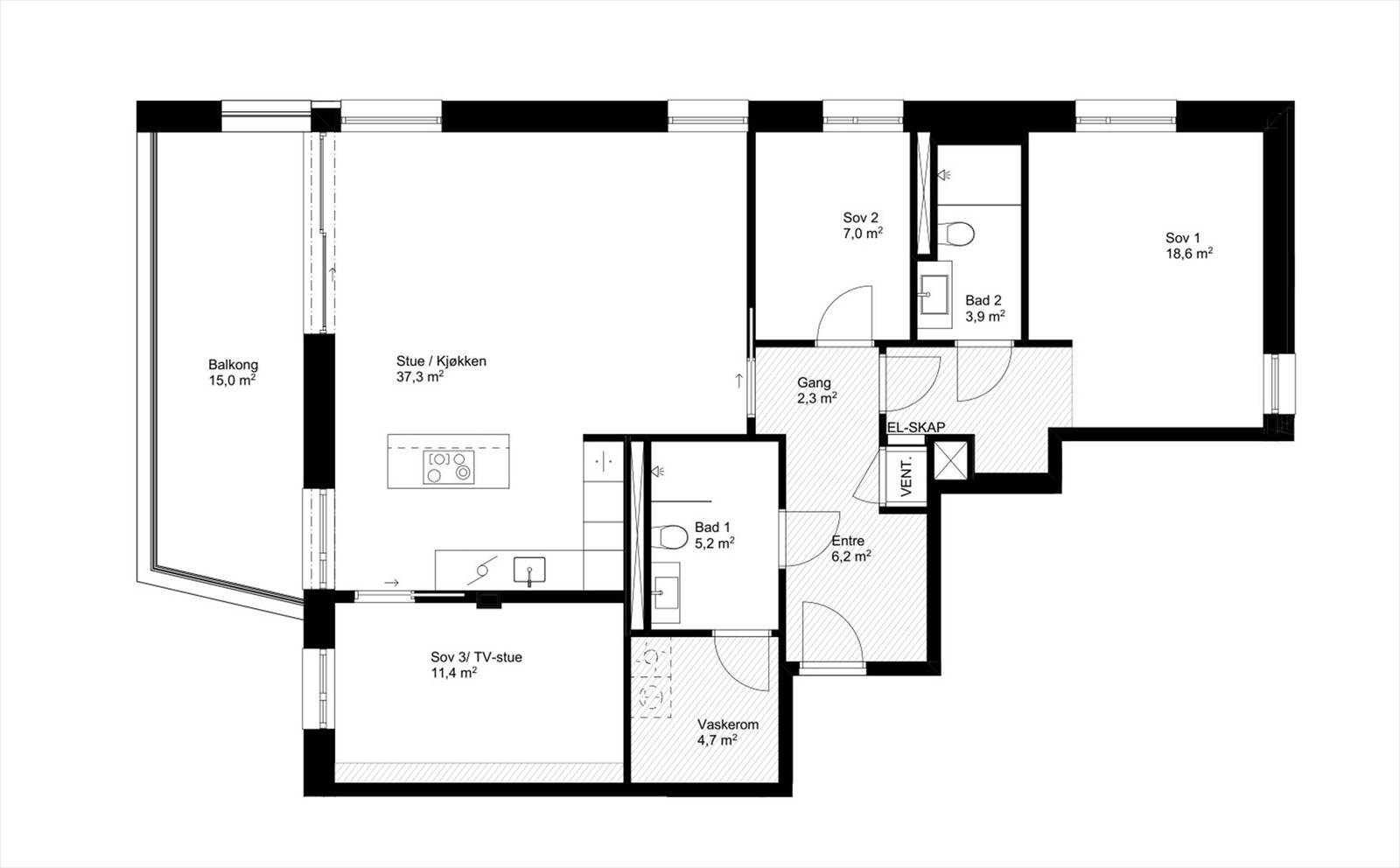
Lekker 4-roms hjørneleilighet m/3 soverom og 2 bad. God planløsning. Stor vestvendt balkong m/fri utsikt. Garasjeplass*
Prisantydning15 990 000 kr
Nøkkelinfo
- Boligtype
- Leilighet
- Eieform
- Eier (Selveier)
- Soverom
- 3
- Bruksareal
- 104 m²
- Etasje
- 4
- Byggeår
- 2025
- Rom
- 4
- Tomteareal
- 1 700 m² (eiet)
Fasiliteter
Balkong/Terrasse
Bredbåndstilknytning
Garasje/P-plass
Heis
Kjæledyr tillatt
Parkett
Sentralt
Lademulighet
Balansert ventilasjon
Visning
Salg av kontraktsposisjon: Leiligheten er under oppføring og det er ikke tilgang på selve leiligheten/byggeplass. Det er mulig å gjennomføre en digital visning på Teams for en gjennomgang av spørsmål. Konferer med megler Martin Killi Arnesen for ytterligere informasjon og en hyggelig prat.
VisningspåmeldingOm boligen
Dette er et salg av kontraktsposisjon vedrørende leilighet C-403 i prosjektet Røa-X. En lekker og stor 4-roms hjørneleilighet med vestvendt balkong på hele 15 m². Garasjeplass kan kjøpes. Denne leiligheten ligger i bygg C, som har flest solgte enheter i prosjektet per tid. Røa-X blir et kvalitetsprosjekt som består av totalt 4 punkthus hvor det er lagt vekt på gode planløsninger og store private balkonger. Anerkjente og prisvinnende Lund+Slaatto Arkitekter som har tegnet Røa X.
- 4-roms selveierleilighet på byggets hjørne i 4. etasje
- Vestvendt balkong på 15 m² med meget gode solforhold
- Høyt og luftig
- *Garasjeplass kan kjøpes
- Overtakelse 8/4-2026
- Lav dokumentavgift
- 5års reklamasjonsrett
- Gjennomgående planløsning
- Lekkert kjøkken fra HTH med øy og integrerte hvitevarer
- 3 soverom, 2 bad og eget vaskerom
- Heis
- Energivennlig (Godt isolert og balansert ventilasjon - BREEAM-sertifisert)
- God lagringsplass med kjellerbod på ca. 5 m²
- Nærhet til Røa Stasjon
- 4-roms selveierleilighet på byggets hjørne i 4. etasje
- Vestvendt balkong på 15 m² med meget gode solforhold
- Høyt og luftig
- *Garasjeplass kan kjøpes
- Overtakelse 8/4-2026
- Lav dokumentavgift
- 5års reklamasjonsrett
- Gjennomgående planløsning
- Lekkert kjøkken fra HTH med øy og integrerte hvitevarer
- 3 soverom, 2 bad og eget vaskerom
- Heis
- Energivennlig (Godt isolert og balansert ventilasjon - BREEAM-sertifisert)
- God lagringsplass med kjellerbod på ca. 5 m²
- Nærhet til Røa Stasjon
NB: Knappen for å vise hele beskrivelsen har kun en visuell effekt.
NB: Knappen for å vise hele beskrivelsen har kun en visuell effekt.
Salgsoppgaven beskriver vesentlig og lovpålagt informasjon om eiendommen
Se komplett salgsoppgaveNærområdet
Røisland & Co Eiendomsmegling AS
Tenk nytt - bo godt!
Annonseinformasjon
| FINN-kode | 439426874 |
|---|---|
| Sist endret | 05. feb. 2026 12:29 |
| Referanse | RCOPS3.25118 |
Annonsene kan være mangelfulle i forhold til lovpålagt opplysningsplikt. Før bindende avtale inngås oppfordres interessenter til å innhente komplett informasjon fra meglerforetaket, selger eller utleier.


































