Bildegalleri

Velkommen til Pettergjerdet 6D! Foto: Viking Media (Marius Hoddevik)
Solgt
Mauseidvåg
Nyere tomannsbolig fra 2021 med endeplassering - Vannbåren varme - Carport - To bad - Nær skole, bhg. og turområder
Prisantydning3 790 000 kr
Nøkkelinfo
- Boligtype
- Tomannsbolig
- Eieform
- Eier (Selveier)
- Soverom
- 3
- Internt bruksareal
- 105 m² (BRA-i)
- Bruksareal
- 110 m²
- Eksternt bruksareal
- 5 m² (BRA-e)
- Balkong/Terrasse
- 57 m² (TBA)
- Byggeår
- 2021
- Energimerking
- B - Rød
- Rom
- 5
- Tomteareal
- 1 909 m² (eiet)
Fasiliteter
Barnevennlig
Balkong/Terrasse
Garasje/P-plass
Offentlig vann/kloakk
Turterreng
Utsikt
Bredbåndstilknytning
Moderne
Rolig
Lademulighet
Balansert ventilasjon
Om boligen
Velkommen til Pettergjerdet 6D!
Denne boligen kan by på følgende kvaliteter:
Denne boligen kan by på følgende kvaliteter:
- Beliggende i et rolig nabolag rett ved barnehage. Kort skoleveg, og nærhet til flere turområder.
- Nyere tomannnsbolig som gir energieffektive og praktiske løsninger.
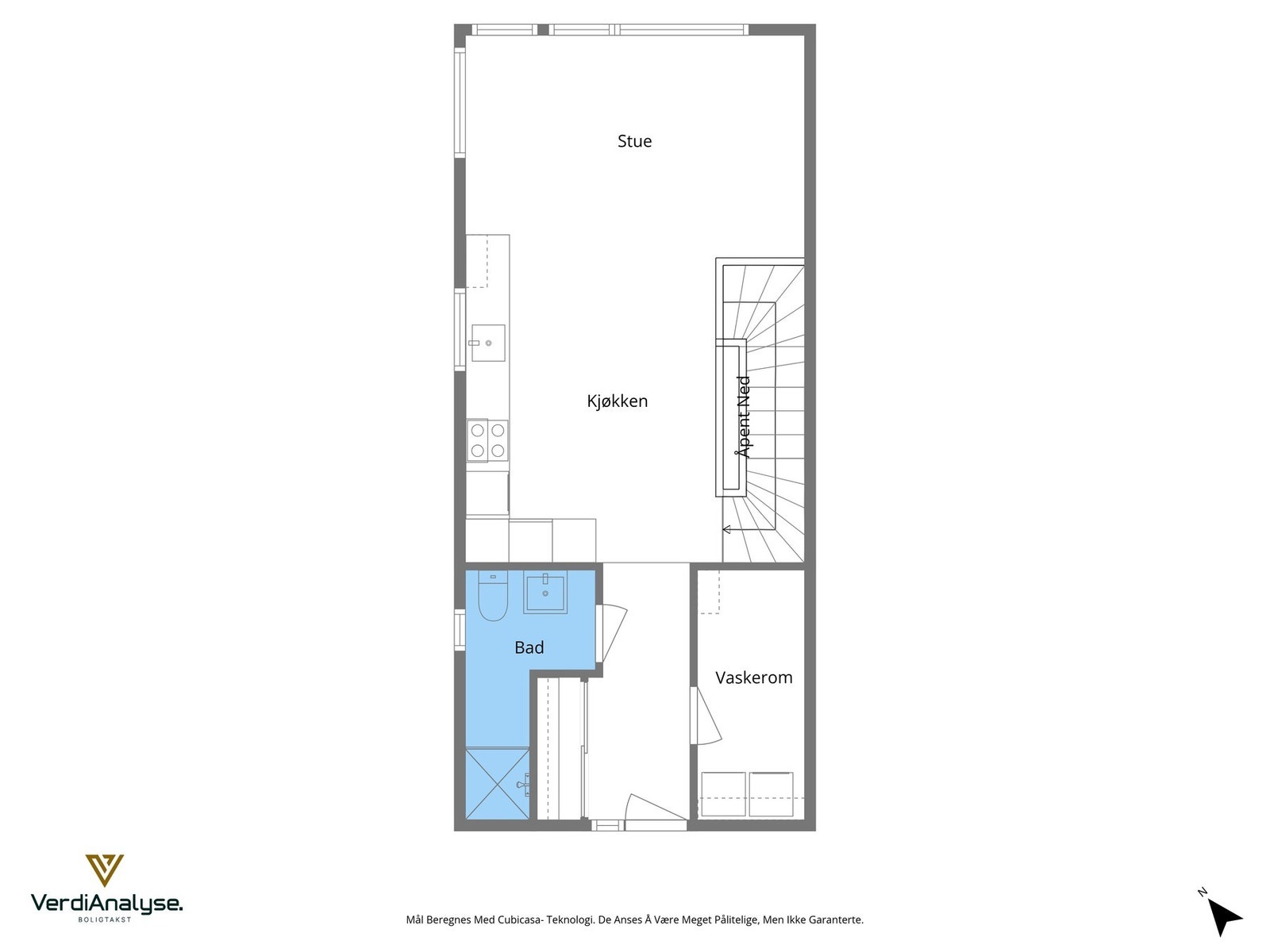
- Åpen stue-/kjøkkenløsning med store vindusflater og enkle møbleringssoner.
- Oppgradert kjøkken fra HTH med blant annet større oppbevarings- og benkeplass.
- To fult utstyrte bad hvor ett har badekar og ett har dusjnisje.
- Eget vaskerom ekstra lagringskapasitet.
- Tre gode soverom. Hovedsoverommet har en optimal løsning med egen walk-through garderobe.
- Kjellerstue med utgang til uteområde.
- Parkering i carport like utenfor inngangsdøren i tillegg til egen parkeringsplass og gjesteparkering. Her er det bod i bakkant og installert EL-billader.
- Stor innegjerdet hage og to gode terrasser.
Husk å meld deg på visning
NB: Knappen for å vise hele beskrivelsen har kun en visuell effekt.
NB: Knappen for å vise hele beskrivelsen har kun en visuell effekt.
Salgsoppgaven beskriver vesentlig og lovpålagt informasjon om eiendommen
Se komplett salgsoppgaveNyttige lenker
Nærområdet
EIE Eiendomsmegling Ålesund
Annonseinformasjon
| FINN-kode | 439408877 |
|---|---|
| Sist endret | 13. des. 2025 13:14 |
| Referanse | 17250194 |
Annonsene kan være mangelfulle i forhold til lovpålagt opplysningsplikt. Før bindende avtale inngås oppfordres interessenter til å innhente komplett informasjon fra meglerforetaket, selger eller utleier.




































