Bildegalleri

Velkommen til Jernvegen 35

Solrikt med flott utsikt. Utleiemuligheter. Romslig innholdsrikt hus. Dobbel garasje

Prisantydning4 990 000 kr
Totalpris
5 116 130 kr
Omkostninger
126 130 kr
Kommunale avg.
15 426 kr per år
Formuesverdi
914 250 kr

Nøkkelinfo

Boligtype
Enebolig
Eieform
Eier (Selveier)
Soverom
5
Primærrom
250 m²
Bruksareal
250 m²
Etasje
3
Byggeår
2009
Energimerking
C - Gul
Rom
7
Tomteareal
1 098 m² (eiet)
Bruttoareal
279 m²

Les mer om bruksareal her

Fasiliteter

Aircondition
Alpinanlegg
Balkong/Terrasse
Barnevennlig
Garasje/P-plass
Hage
Kjæledyr tillatt
Offentlig vann/kloakk
Parkett
Peis/Ildsted
Rolig
Sentralt
Utsikt
Bademulighet
Fiskemulighet
Turterreng

Visning

For å delta på visning, ber vi om at du melder deg på. Da sikrer vi at du får nødvendig informasjon og at det er satt av tilstrekkelig med tid. Kontakt megler dersom annet tidspunkt ønskes. Husk å lese salgsoppgaven før visningen, så du stiller forberedt. NB. Visning utgår dersom det ikke er noen påmeldte innen dagen før kl. 15.00. Ønsker du kun å bli holdt orientert, kan du fra eiendommens hjemmeside få varsel om solgtpris, eller kontakte megler.
Visningspåmelding

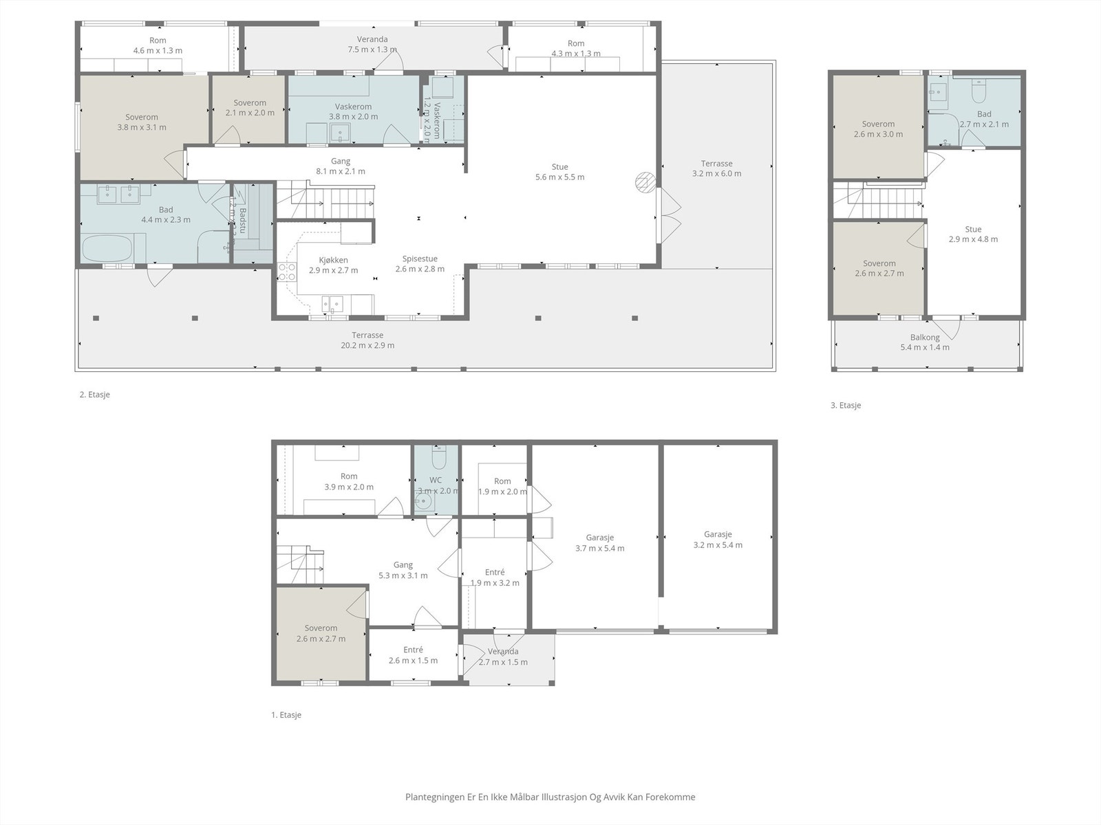
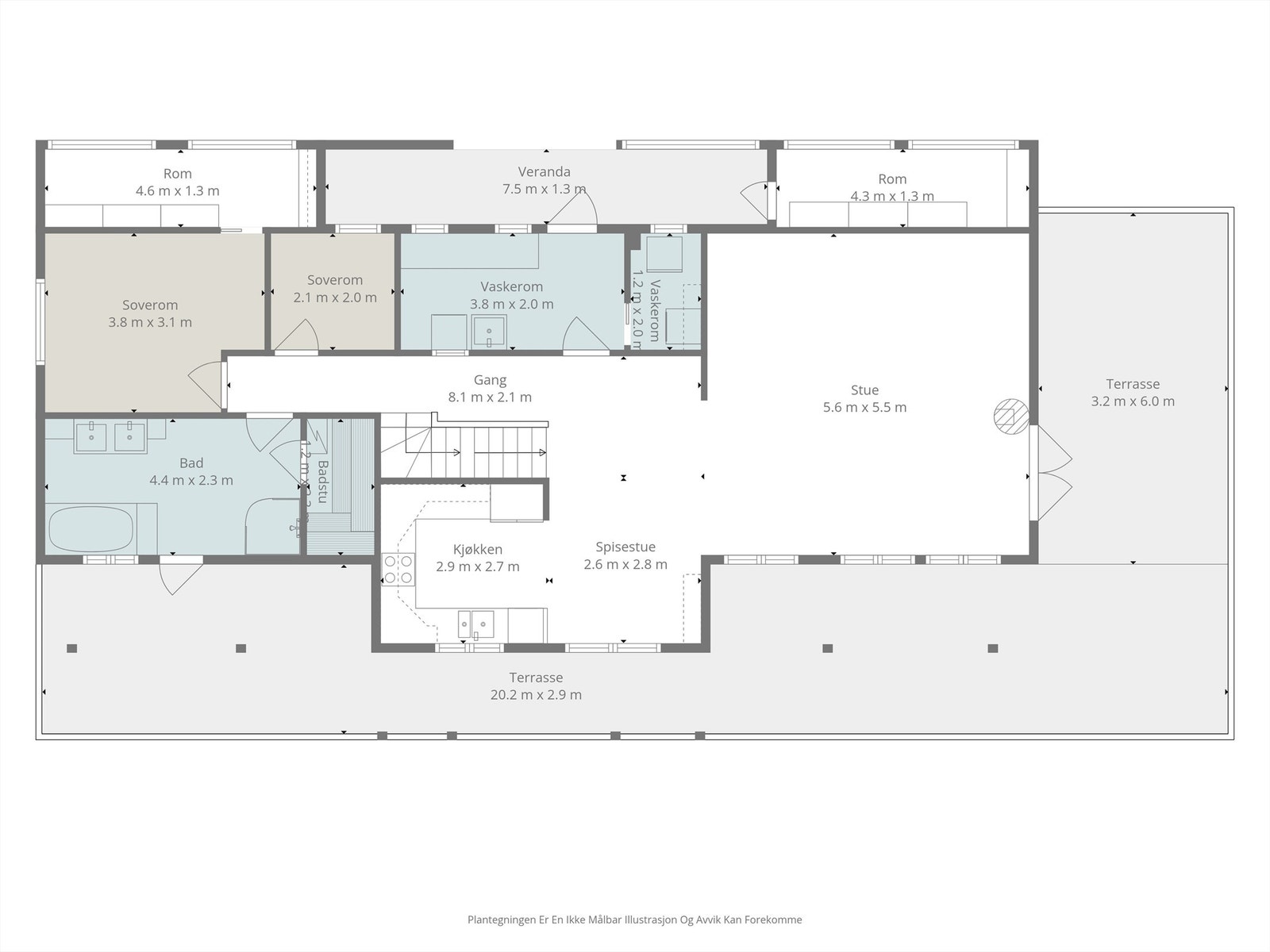
Om boligen

Velkommen til Jernvegen 35 - En innholdsrik og flott enebolig med fin beliggenhet.

Her får du en enebolig med solrik beliggenhet, fri og usjenert utsikt over Hartevann og Otrosåsen, stort flott tomt med dobbel garasje og kort vei til sentrum, skole og barnehage.
Denne boligen byr på god planløsning, 5 soverom, to bad, badstu, vaskerom, stor åpen stue/ kjøkken løsning med spisestueplass og utgang til meget romslig og solrik veranda med fantastisk utsikt. Loftstue med balkong.
Separat utleiedel i underetasjen og ellers god gang og bodplass, dobbel garasje med direkte inngang til boligen. Toalett.
Umiddelbar nærhet til fine turmuligheter hele året, og fine bade- og vannsport muligheter i Hartevann rett nedforbi. Rolig og veletablert nabolag.
https://my.matterport.com/show/?m=j1ugTnMP4

Salgsoppgaven beskriver vesentlig og lovpålagt informasjon om eiendommen

Se komplett salgsoppgave

Nærområdet

Annonseinformasjon

FINN-kode439270129
Sist endret28. nov. 2025 07:37
ReferanseKR32.2564

Rapporter annonse

Annonsene kan være mangelfulle i forhold til lovpålagt opplysningsplikt. Før bindende avtale inngås oppfordres interessenter til å innhente komplett informasjon fra meglerforetaket, selger eller utleier.