Bildegalleri

EIE Jessheim v/ Julie Fredheim Maudal har gleden av å presentere Lundstadjordet 34! Foto: Bjørn Sørheim
Pen selveierleilighet på Sand! Balkong på 10 kvm | Flott førstegangskjøp eller utleieobjekt | Kort vei til Jessheim
Prisantydning2 890 000 kr
Nøkkelinfo
- Boligtype
- Leilighet
- Eieform
- Eier (Selveier)
- Soverom
- 1
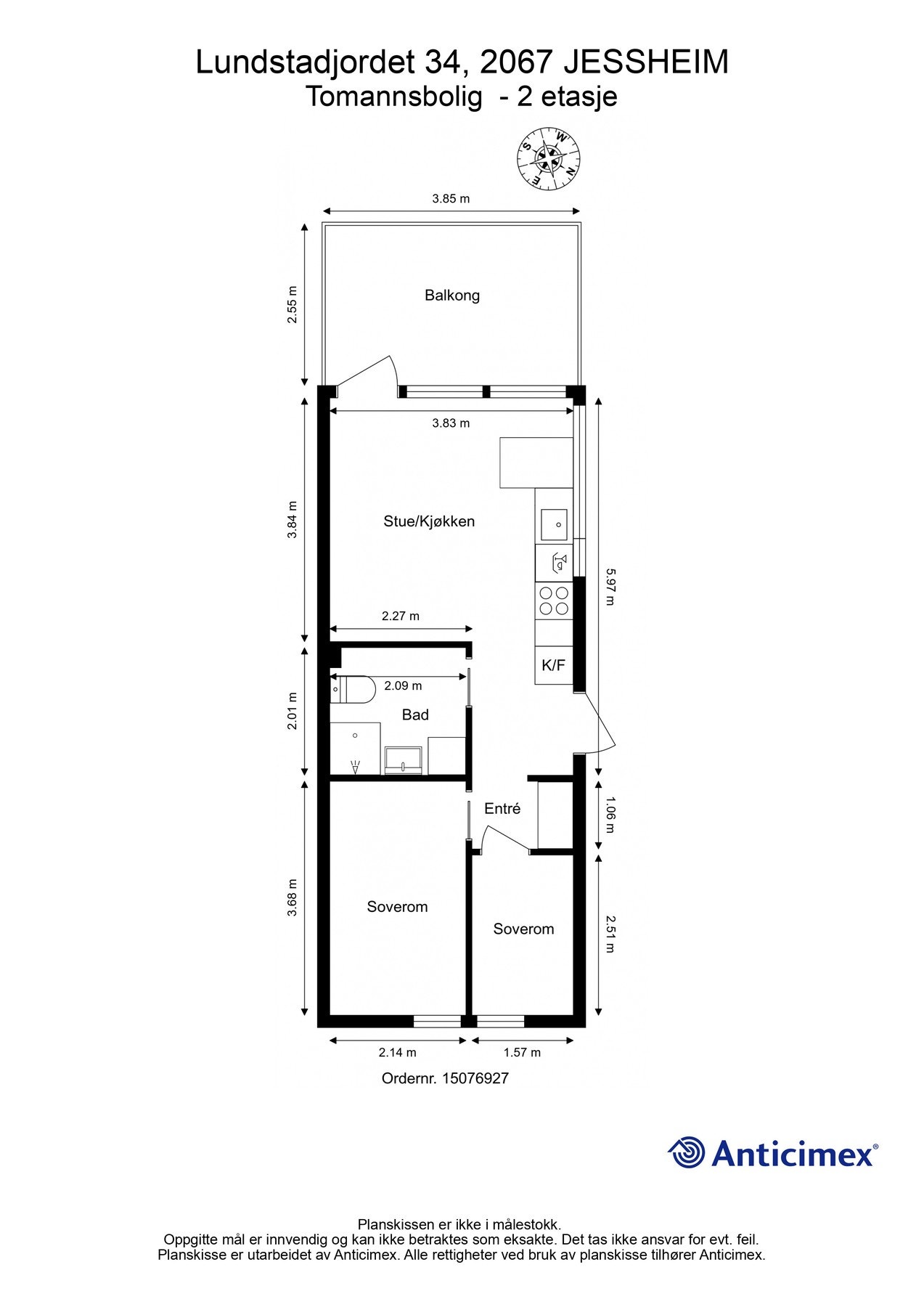
- Internt bruksareal
- 38 m² (BRA-i)
- Bruksareal
- 43 m²
- Eksternt bruksareal
- 5 m² (BRA-e)
- Balkong/Terrasse
- 10 m² (TBA)
- Etasje
- 2
- Byggeår
- 2016
- Energimerking
- D - Rød
- Tomt
- Eiet
Fasiliteter
Barnevennlig
Balkong/Terrasse
Garasje/P-plass
Kabel-TV
Offentlig vann/kloakk
Bredbåndstilknytning
Rolig
Balansert ventilasjon
Om boligen
EIE Jessheim v/ Julie Fredheim Maudal har gleden av å presentere Lundstadjordet 34!
Leiligheten ligger fint plassert på Sand, kun 3 km fra Jessheim sentrum. Her bor du med nærhet til både dagligvare, lekeplasser, skiløyper og turmuligheter. Jessheim byr på et rikt utvalg av butikker, serveringssteder og kulturtilbud, samt gode kollektivforbindelser til Oslo og Gardermoen.
Kvaliteter verdt å merke seg:
- Disponerer parkeringsplass ute
- Romslig soverom
- Tidløst flislagt bad med gulvvarme og opplegg for vaskemaskin/ tørketrommel
- Åpen stue- og kjøkkenløsning
- Flott sydvestvendt balkong på 10 kvm
- Perfekt førstegangskjøp eller utleieobjekt
Mangler du egenkapital? Boligen kan kjøpes med Finit Deleie.
Velkommen til visning!
Leiligheten ligger fint plassert på Sand, kun 3 km fra Jessheim sentrum. Her bor du med nærhet til både dagligvare, lekeplasser, skiløyper og turmuligheter. Jessheim byr på et rikt utvalg av butikker, serveringssteder og kulturtilbud, samt gode kollektivforbindelser til Oslo og Gardermoen.
Kvaliteter verdt å merke seg:
- Disponerer parkeringsplass ute
- Romslig soverom
- Tidløst flislagt bad med gulvvarme og opplegg for vaskemaskin/ tørketrommel
- Åpen stue- og kjøkkenløsning
- Flott sydvestvendt balkong på 10 kvm
- Perfekt førstegangskjøp eller utleieobjekt
Mangler du egenkapital? Boligen kan kjøpes med Finit Deleie.
Velkommen til visning!
NB: Knappen for å vise hele beskrivelsen har kun en visuell effekt.
NB: Knappen for å vise hele beskrivelsen har kun en visuell effekt.
Salgsoppgaven beskriver vesentlig og lovpålagt informasjon om eiendommen
Se komplett salgsoppgaveNærområdet
EIE eiendomsmegling Jessheim
Annonseinformasjon
| FINN-kode | 439149802 |
|---|---|
| Sist endret | 24. feb. 2026 05:02 |
| Referanse | 20251402 |
Annonsene kan være mangelfulle i forhold til lovpålagt opplysningsplikt. Før bindende avtale inngås oppfordres interessenter til å innhente komplett informasjon fra meglerforetaket, selger eller utleier.































