Bildegalleri

Oliver Rudjord v/Eiendomsmegler 1 har gleden av å presentere Kolsåsstien 9!
KOLSÅS
Romslig 4-roms leilighet over 2 plan | To terrasser og barnevennlig beliggenhet | Oppussingsobjekt | Parkering
Prisantydning5 200 000 kr
Nøkkelinfo
- Boligtype
- Leilighet
- Eieform
- Eier (Selveier)
- Soverom
- 3
- Internt bruksareal
- 88 m² (BRA-i)
- Bruksareal
- 92 m²
- Eksternt bruksareal
- 4 m² (BRA-e)
- Balkong/Terrasse
- 14 m² (TBA)
- Etasje
- 3
- Byggeår
- 1978
- Energimerking
- F - Rød
- Rom
- 4
- Tomteareal
- 2 334 m²
Fasiliteter
Balkong/Terrasse
Barnevennlig
Garasje/P-plass
Ingen gjenboere
Utsikt
Turterreng
Om boligen
Velkommen til Kolsåsstien 9! En innholdsrik selveierleilighet over to plan med en attraktiv beliggenhet på Kolsås. Her bor du rolig til i et etablert boligområde med umiddelbar nærhet til marka, dagligvarebutikker, skoler, barnehager og offentlig kommunikasjon. Boligen har eldre standard og representerer en flott mulighet til å skape drømmehjemmet.
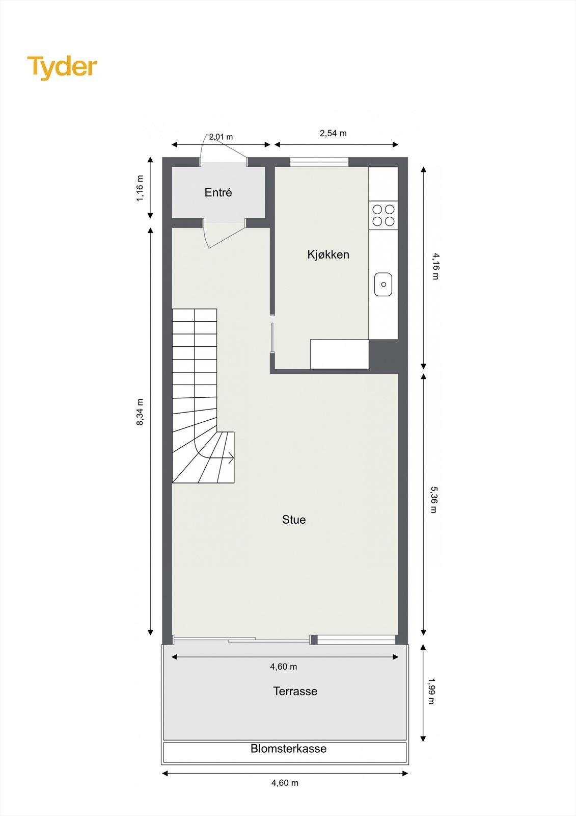
Leiligheten har en praktisk planløsning med stue og kjøkken i 2. etasje, og tre soverom, bad og toalettrom i 3. etasje.
Kort fortalt:
- Leilighet over to plan med tre soverom
- Terrasse på 9 m² og balkong på 5 m²
- Parkeringsplass i felles garasjeanlegg
- Nærhet til turområder, butikker og skoler
- Kort vei til buss og T-bane
Velkommen til visning!
Leiligheten har en praktisk planløsning med stue og kjøkken i 2. etasje, og tre soverom, bad og toalettrom i 3. etasje.
Kort fortalt:
- Leilighet over to plan med tre soverom
- Terrasse på 9 m² og balkong på 5 m²
- Parkeringsplass i felles garasjeanlegg
- Nærhet til turområder, butikker og skoler
- Kort vei til buss og T-bane
Velkommen til visning!
NB: Knappen for å vise hele beskrivelsen har kun en visuell effekt.
NB: Knappen for å vise hele beskrivelsen har kun en visuell effekt.
Salgsoppgaven beskriver vesentlig og lovpålagt informasjon om eiendommen
Se komplett salgsoppgaveNyttige lenker
Nærområdet
EiendomsMegler 1 Asker
Vi loser deg trygt gjennom hele boligsalget
Annonseinformasjon
| FINN-kode | 438821851 |
|---|---|
| Sist endret | 02. jan. 2026 02:09 |
| Referanse | 3345250186 |
Annonsene kan være mangelfulle i forhold til lovpålagt opplysningsplikt. Før bindende avtale inngås oppfordres interessenter til å innhente komplett informasjon fra meglerforetaket, selger eller utleier.














































