Bildegalleri

Velkommen til vinteridyll!
Solgt
Stor, idyllisk eiendom for storfamilien! Flere utleiemuligheter og nok av boltreplass på 8,9 måls tomt. Velkommen!
Prisantydning9 900 000 kr
Nøkkelinfo
- Boligtype
- Enebolig
- Eieform
- Selveier
- Soverom
- 9
- Internt bruksareal
- 353 m² (BRA-i)
- Bruksareal
- 828 m²
- Eksternt bruksareal
- 354 m² (BRA-e)
- Balkong/Terrasse
- 102 m² (TBA)
- Etasje
- 2
- Byggeår
- 1850
- Tomteareal
- 8 915 m² (eiet)
Om boligen
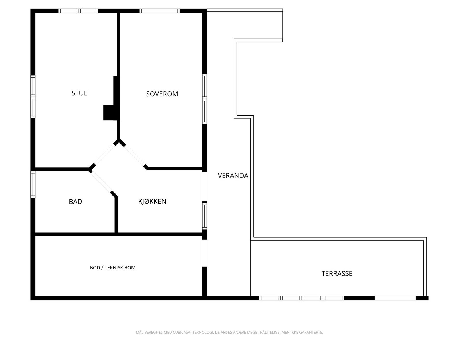
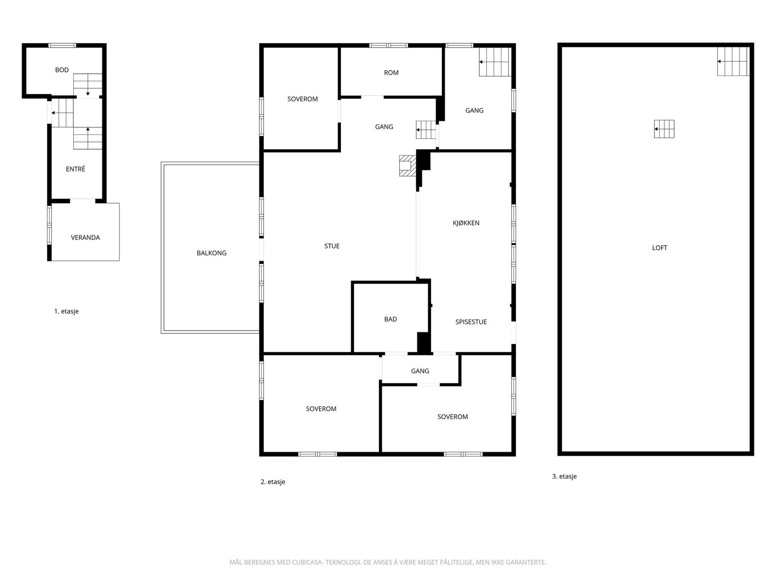
Drømmer du om eget småbruk? Velkommen til Låhneveien 42 A, et sjarmerende småbruk med sentral beliggenhet i landlige og idylliske omgivelser. Her bor man tett på naturen, samtidig som det er kort vei til alle fasiliteter og servicetilbud. Eiendommen er over 8,9 mål, med nydelig utsikt og store plenarealer. Solforholdene er gode, og bebyggelsen består av to låver og et stort hovedhus med fire boenheter - alle med egen inngang.
Plassert i enden av en blindevei, har eiendommen en usjenert beliggenhet med fullstendig ro. Store plenarealer innbyr til lek, og tomten har drivhus og fine uteplasser. Bolighuset er opprinnelig fra 1850, og hoveddelen i 1. etasje har bevarte tømmervegger i delikat miks med det moderne. I hoveddelen er det fire soverom, kjøkken fra 2025 og koselig peisovn i stuen.
Plassert i enden av en blindevei, har eiendommen en usjenert beliggenhet med fullstendig ro. Store plenarealer innbyr til lek, og tomten har drivhus og fine uteplasser. Bolighuset er opprinnelig fra 1850, og hoveddelen i 1. etasje har bevarte tømmervegger i delikat miks med det moderne. I hoveddelen er det fire soverom, kjøkken fra 2025 og koselig peisovn i stuen.
NB: Knappen for å vise hele beskrivelsen har kun en visuell effekt.
NB: Knappen for å vise hele beskrivelsen har kun en visuell effekt.
Salgsoppgaven beskriver vesentlig og lovpålagt informasjon om eiendommen
Se komplett salgsoppgaveNyttige lenker
Nærområdet

PrivatMegleren Tønsberg
Kun det beste på dine vegne
Annonseinformasjon
| FINN-kode | 438447442 |
|---|---|
| Sist endret | 09. feb. 2026 18:34 |
| Referanse | 13250197 |
Annonsene kan være mangelfulle i forhold til lovpålagt opplysningsplikt. Før bindende avtale inngås oppfordres interessenter til å innhente komplett informasjon fra meglerforetaket, selger eller utleier.



























































