Bildegalleri

Velkommen til Frams gate 6A - et innholdsrikt og familievennlig rekkehus over tre plan-V/ Eira Næss Huseby, Eiendomsmegler Norge.
Solgt
Åsen/Hillevåg
Innholdsrikt og familievennlig enderekkehus med sentral beliggenhet- Ingen dokumentavgift
Prisantydning4 090 000 kr
Nøkkelinfo
- Boligtype
- Rekkehus
- Eieform
- Andel
- Soverom
- 2
- Internt bruksareal
- 91 m² (BRA-i)
- Bruksareal
- 105 m²
- Eksternt bruksareal
- 14 m² (BRA-e)
- Balkong/Terrasse
- 52 m² (TBA)
- Etasje
- 2
- Byggeår
- 1956
- Energimerking
- F - Oransje
- Rom
- 4
- Tomteareal
- 1 192 m² (eiet)
Fasiliteter
Balkong/Terrasse
Garasje/P-plass
Sentralt
Om boligen
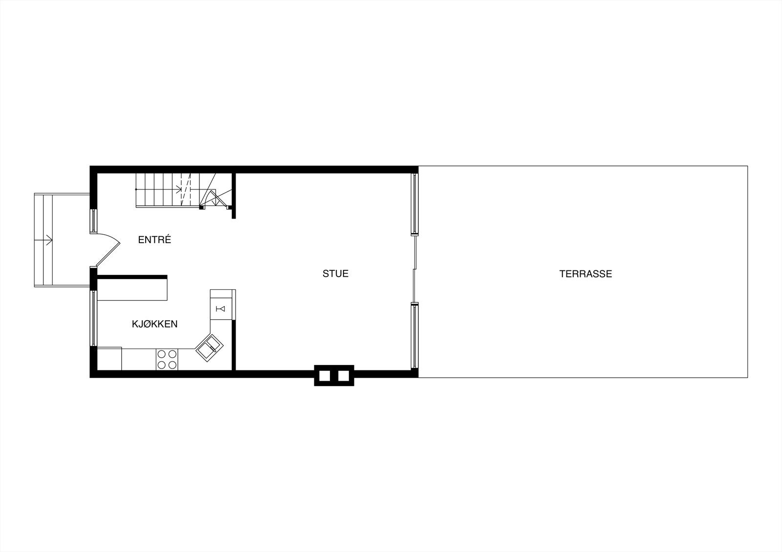
Velkommen til Frams gate 6A et innholdsrikt og familievennlig rekkehus over tre plan, attraktivt beliggende på Åsen/Hillevåg.
Kort fortalt:
- Familievennlig rekkehus over tre plan på Åsen/Hillevåg
- Moderne kjøkken og stue i åpen løsning
- Lys stue med utgang til solrik og skjermet terrasse mot friområde
- Oppusset bad fra 2025, helfliset, varmekabler og moderne innredning
- 2 soverom (mulighet for å etablere 3 soverom)
- Romslig loft med gode lagringsmuligheter
-Innredet kjeller med kjellerstue, toalett og vaskerom (ikke godkjent for varig opphold)
- Pent og parbeidet felelsområdet med gode leke- og rekreasjonsmuligheter
- Ingen dokumentavgift
Dette er en bolig som passer perfekt for førstegangskjøpere, par eller enslige som ønsker en lettstelt og sentral bolig med god stand.
Kort fortalt:
- Familievennlig rekkehus over tre plan på Åsen/Hillevåg
- Moderne kjøkken og stue i åpen løsning
- Lys stue med utgang til solrik og skjermet terrasse mot friområde
- Oppusset bad fra 2025, helfliset, varmekabler og moderne innredning
- 2 soverom (mulighet for å etablere 3 soverom)
- Romslig loft med gode lagringsmuligheter
-Innredet kjeller med kjellerstue, toalett og vaskerom (ikke godkjent for varig opphold)
- Pent og parbeidet felelsområdet med gode leke- og rekreasjonsmuligheter
- Ingen dokumentavgift
Dette er en bolig som passer perfekt for førstegangskjøpere, par eller enslige som ønsker en lettstelt og sentral bolig med god stand.
NB: Knappen for å vise hele beskrivelsen har kun en visuell effekt.
NB: Knappen for å vise hele beskrivelsen har kun en visuell effekt.
Salgsoppgaven beskriver vesentlig og lovpålagt informasjon om eiendommen
Se komplett salgsoppgaveNyttige lenker
Nærområdet
Eiendomsmegler Norge Stavanger
Det viktigste stedet i Norge er der du bor
Annonseinformasjon
| FINN-kode | 438268344 |
|---|---|
| Sist endret | 11. des. 2025 15:29 |
| Referanse | 20250218 |
Annonsene kan være mangelfulle i forhold til lovpålagt opplysningsplikt. Før bindende avtale inngås oppfordres interessenter til å innhente komplett informasjon fra meglerforetaket, selger eller utleier.































