Bildegalleri

Velkommen til Eventyrveien 50, presentert av Terje Tveit i Krogsveen.
BJERKÅS / VOLLEN
Arkitekttegnet enebolig i blindvei. Attraktivt og barnevennlig område. Solrik, inngjerdet naturtomt. Garasjeplass.
Prisantydning7 490 000 kr
Nøkkelinfo
- Boligtype
- Enebolig
- Eieform
- Eier (Selveier)
- Soverom
- 3
- Internt bruksareal
- 140 m² (BRA-i)
- Bruksareal
- 140 m²
- Balkong/Terrasse
- 15 m² (TBA)
- Etasje
- 2
- Byggeår
- 1983
- Energimerking
- G - Rød
- Rom
- 5
- Tomteareal
- 491 m² (eiet)
Fasiliteter
Balkong/Terrasse
Barnevennlig
Garasje/P-plass
Hage
Peis/Ildsted
Rolig
Utsikt
Om boligen
Velkommen til Eventyrveien 50, presentert av Terje Tveit i Krogsveen.
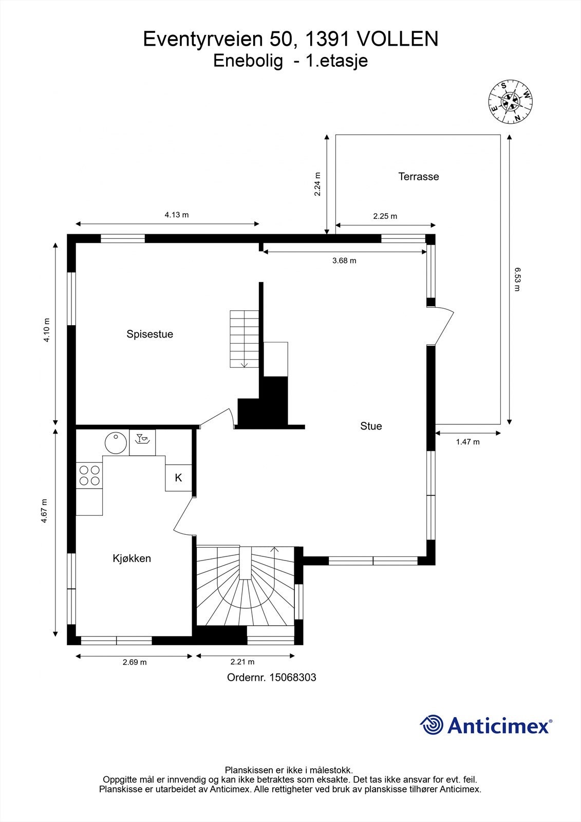
Her får du en innholdsrik enebolig over 3 plan. Boligen inneholder stue, spisestue, kjøkken, bad, toalettrom, vaskerom 3 soverom entré og to boder. Boligen har garasje i garasjerekke og en stor inngjerdet hage.
Kort fortalt:
Her får du en innholdsrik enebolig over 3 plan. Boligen inneholder stue, spisestue, kjøkken, bad, toalettrom, vaskerom 3 soverom entré og to boder. Boligen har garasje i garasjerekke og en stor inngjerdet hage.
Kort fortalt:
- 3 soverom, kan tilbakeføres til 4 soverom
- Lys og fin stue, meget romslig takhøyde
- Garasjeplass i garasjerekke
- 3 innvendige boder
- Stille og rolig i blindvei i etablert villastrøk
- Kort vei til lekeplass
- Turterreng rett utenfor døren
- Barnehage og skole i nærområde
- Naturskjønne omgivelser
- Boligen ligger i et populært boligområde med kort vei til Vollen sentrum og Slemmestad sentrum.
Velkommen til visning!
NB: Knappen for å vise hele beskrivelsen har kun en visuell effekt.
NB: Knappen for å vise hele beskrivelsen har kun en visuell effekt.
Salgsoppgaven beskriver vesentlig og lovpålagt informasjon om eiendommen
Se komplett salgsoppgaveNyttige lenker
Nærområdet
Krogsveen Asker
Verdien av en god megler.
Annonseinformasjon
| FINN-kode | 438086380 |
|---|---|
| Sist endret | 29. jan. 2026 09:38 |
| Referanse | KR15.2515 |
Annonsene kan være mangelfulle i forhold til lovpålagt opplysningsplikt. Før bindende avtale inngås oppfordres interessenter til å innhente komplett informasjon fra meglerforetaket, selger eller utleier.



































