Bildegalleri

Moderne og stilfull enebolig med store vindusflater, fantastisk uteplass og barnevennlig beliggenhet i Prestegårdsskogen
Prisantydning6 000 000 kr
Nøkkelinfo
- Boligtype
- Enebolig
- Eieform
- Eier (Selveier)
- Soverom
- 4
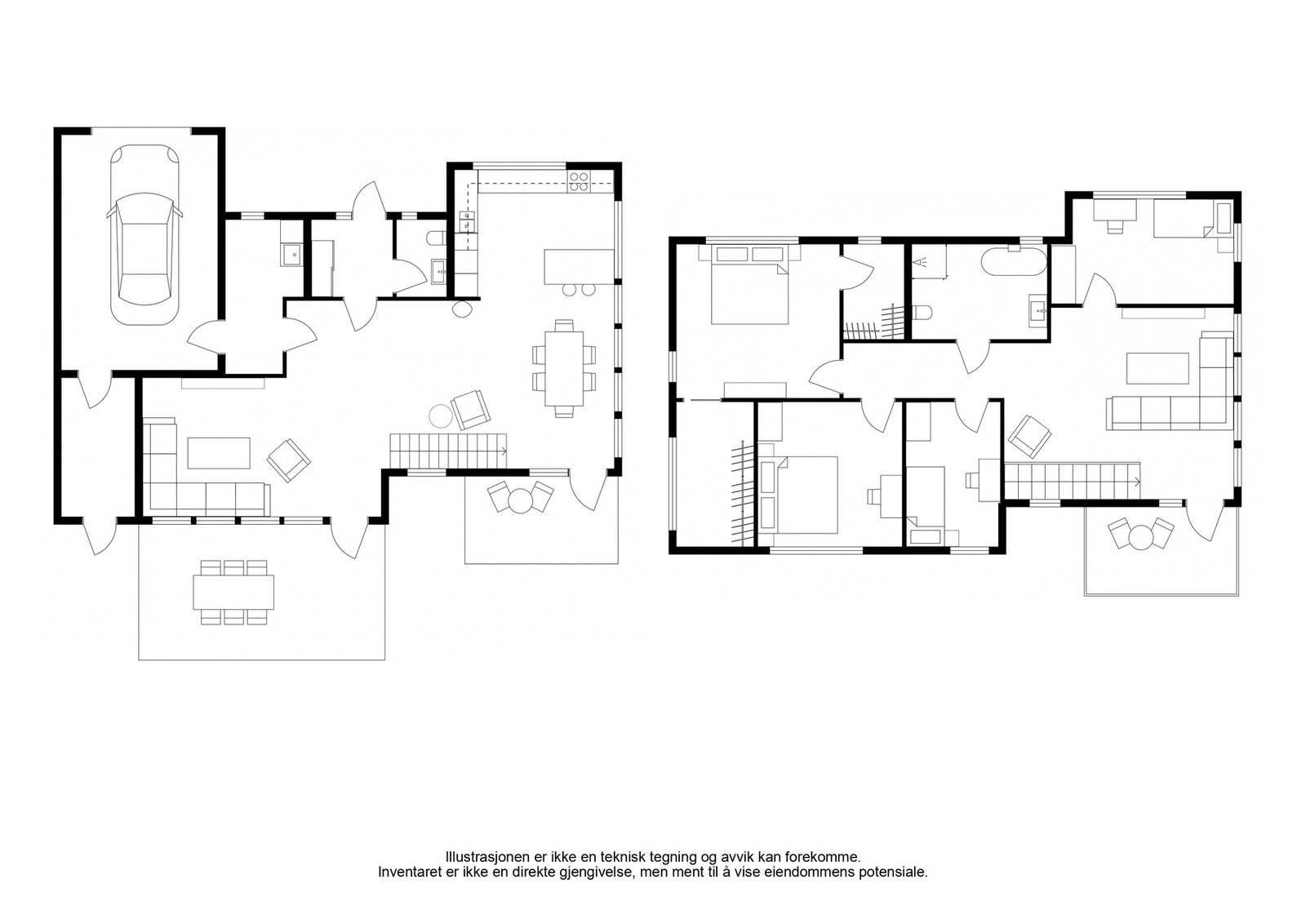
- Internt bruksareal
- 208 m² (BRA-i)
- Bruksareal
- 208 m²
- Balkong/Terrasse
- 44 m² (TBA)
- Byggeår
- 2019
- Energimerking
- B - Gul
- Tomteareal
- 824 m² (eiet)
Fasiliteter
Balkong/Terrasse
Garasje/P-plass
Offentlig vann/kloakk
Turterreng
Bredbåndstilknytning
Moderne
Rolig
Lademulighet
Balansert ventilasjon
Om boligen
Velkommen til en moderne og innholdsrik enebolig i attraktive Prestegårdsskogen - et rolig, familievennlig område med kort vei til både natur og aktiviteter. Boligen byr på gjennomført design, store vindusflater og åpne romløsninger som gir flott lys og god atmosfære.
Området er omgitt av skog, turstie og byr på gode muligheter for friluftsliv året rundt. Samtidig ligger idrettsanlegg, barneskole, ungdomsskole og dagligvare innen få minutter. Her får du en perfekt kombinasjon av nærhet til naturen og kort vei til sentrum og fasiliteter.
Området er omgitt av skog, turstie og byr på gode muligheter for friluftsliv året rundt. Samtidig ligger idrettsanlegg, barneskole, ungdomsskole og dagligvare innen få minutter. Her får du en perfekt kombinasjon av nærhet til naturen og kort vei til sentrum og fasiliteter.
NB: Knappen for å vise hele beskrivelsen har kun en visuell effekt.
NB: Knappen for å vise hele beskrivelsen har kun en visuell effekt.
Salgsoppgaven beskriver vesentlig og lovpålagt informasjon om eiendommen
Se komplett salgsoppgaveNyttige lenker
Nærområdet

PrivatMegleren Rakkestad
Kun det beste på dine vegne
Annonseinformasjon
| FINN-kode | 437980609 |
|---|---|
| Sist endret | 27. nov. 2025 05:03 |
| Referanse | 192250091 |
Annonsene kan være mangelfulle i forhold til lovpålagt opplysningsplikt. Før bindende avtale inngås oppfordres interessenter til å innhente komplett informasjon fra meglerforetaket, selger eller utleier.





























































