Bildegalleri

Saua gard 47 - Foto: Portal Norge
Saudasjøen - Enebolig med flott utsiktsbeliggenhet - Godt vedlikeholdt - Romslig hage - Garasje - 4 soverom
Prisantydning2 590 000 kr
Nøkkelinfo
- Boligtype
- Enebolig
- Eieform
- Eier (Selveier)
- Soverom
- 4
- Internt bruksareal
- 169 m² (BRA-i)
- Bruksareal
- 187 m²
- Eksternt bruksareal
- 18 m² (BRA-e)
- Balkong/Terrasse
- 50 m² (TBA)
- Byggeår
- 1978
- Rom
- 6
- Tomteareal
- 1 130 m² (eiet)
Fasiliteter
Balkong/Terrasse
Barnevennlig
Garasje/P-plass
Offentlig vann/kloakk
Parkett
Peis/Ildsted
Rolig
Utsikt
Lademulighet
Visning
Ved annonsert visning er det viktig at du melder deg på visningen ved å bruke visningspåmeldingsknappen eller kontakter megler. Annonserte visninger hvor det ikke er noen påmeldte innen 24t før visningstidspunkt vil ikke bli avholdt.
For visninger utover dette, ta direkte kontakt med megler.
VisningspåmeldingOm boligen
Enebolig beliggende i Saudasjøen med nydelig utsikt!
Boligen er godt vedlikeholdt, med oppgraderinger utført i nyere tid - her kan en flytte rett inn.
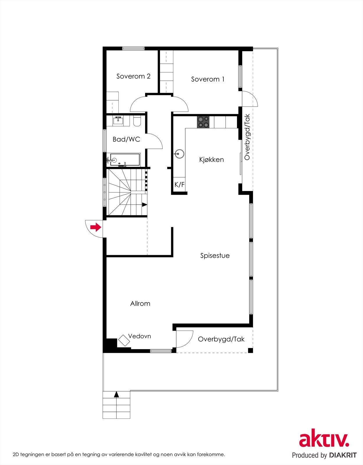
Hovedplan har to soverom, bad, kjøkken og stue.
Kjeller har to soverom, bad, vaskerom, stue og bod.
Kjeller har isolert grunnmurselement (meget god type grunnmur).
Glaserte takpanner som har god levetid.
Kledning er godt vedlikeholdt - tre sider ble malt i år.
HTH-kjøkken, skiftet i 2012. Begge bad renovert i 2004/2005. Romslig balkong (fra 2005).
Lagringsloft og bod (mulig kontor/gjesterom) i kjeller. I tillegg utvendig lagringsrom samt under balkong.
Sikringsskap fra 2023.
Enkel garasje der det ble skiftet kledning og tak i 2022, samt montert elbil-lader.
Flott beliggenhet i enden av blindvei. Romslig tomt på over 1 mål.
Boligen er godt vedlikeholdt, med oppgraderinger utført i nyere tid - her kan en flytte rett inn.
Hovedplan har to soverom, bad, kjøkken og stue.
Kjeller har to soverom, bad, vaskerom, stue og bod.
Kjeller har isolert grunnmurselement (meget god type grunnmur).
Glaserte takpanner som har god levetid.
Kledning er godt vedlikeholdt - tre sider ble malt i år.
HTH-kjøkken, skiftet i 2012. Begge bad renovert i 2004/2005. Romslig balkong (fra 2005).
Lagringsloft og bod (mulig kontor/gjesterom) i kjeller. I tillegg utvendig lagringsrom samt under balkong.
Sikringsskap fra 2023.
Enkel garasje der det ble skiftet kledning og tak i 2022, samt montert elbil-lader.
Flott beliggenhet i enden av blindvei. Romslig tomt på over 1 mål.
NB: Knappen for å vise hele beskrivelsen har kun en visuell effekt.
NB: Knappen for å vise hele beskrivelsen har kun en visuell effekt.
Salgsoppgaven beskriver vesentlig og lovpålagt informasjon om eiendommen
Se komplett salgsoppgaveNærområdet
Aktiv Sauda
Annonseinformasjon
| FINN-kode | 437973474 |
|---|---|
| Sist endret | 29. jan. 2026 08:06 |
| Referanse | 1402250078 |
Annonsene kan være mangelfulle i forhold til lovpålagt opplysningsplikt. Før bindende avtale inngås oppfordres interessenter til å innhente komplett informasjon fra meglerforetaket, selger eller utleier.































































