Bildegalleri

Leiligheten ligger midt i hjertet av Sandefjord sentrum. Rett utenfor døra finner man alt Sandefjord har å tilby av byliv og kulturtilbud.
Solgt
Bo lettvint og urbant midt i sentrum! Moderne 3-roms selveier fra 2021. Fjerde etasje med heis, balkong og garasjeplass.
Prisantydning4 300 000 kr
Nøkkelinfo
- Boligtype
- Leilighet
- Eieform
- Eier (Selveier)
- Soverom
- 2
- Internt bruksareal
- 67 m² (BRA-i)
- Bruksareal
- 70 m²
- Eksternt bruksareal
- 3 m² (BRA-e)
- Balkong/Terrasse
- 6 m² (TBA)
- Etasje
- 4
- Byggeår
- 2022
- Tomteareal
- 2 095 m² (eiet)
Fasiliteter
Balkong/Terrasse
Garasje/P-plass
Heis
Offentlig vann/kloakk
Parkett
Turterreng
Utsikt
Sentralt
Bredbåndstilknytning
Moderne
Balansert ventilasjon
Om boligen
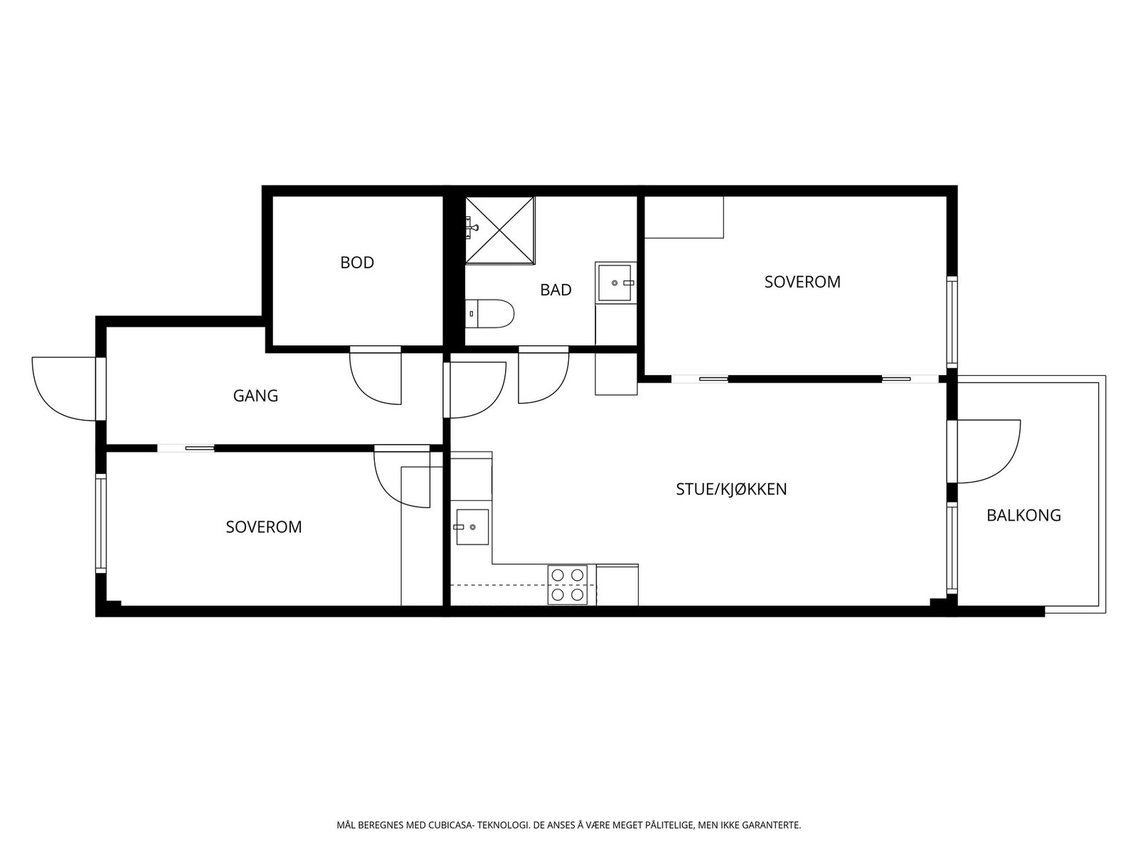
Gjennomgående, delikat 3-roms selveierleilighet fra 2021, i 4.etasje av et kombinert bolig- og næringsbygg med heis. Leiligheten ligger midt i sentrum med alle fasiliteter rett utenfor døren, så her ligger alt til rette for et enklere liv. Livsløpsstandard. Det følger med en bod og en garasjeplass i felles kjeller, og fra stuen er det utgang til en balkong på ca. 6 kvm, perfekt når været frister til utetid.
Leiligheten har en nydelig stue med gode lysforhold og åpen kjøkkenløsning. Kjøkkenet har integrerte hvitevarer, og midt i rommet er det plass til spisebord. Videre er det et stilrent bad med fliser, gulvvarme og opplegg for vaskemaskin, samt innvendig bod og to gode soverom med skap. Andre kvaliteter som parkettgulv, balansert ventilasjon og utvendig screens finnes også. Lave strømkostnader med felles fjernvarmeanlegg for varmtvann.
Leiligheten har en nydelig stue med gode lysforhold og åpen kjøkkenløsning. Kjøkkenet har integrerte hvitevarer, og midt i rommet er det plass til spisebord. Videre er det et stilrent bad med fliser, gulvvarme og opplegg for vaskemaskin, samt innvendig bod og to gode soverom med skap. Andre kvaliteter som parkettgulv, balansert ventilasjon og utvendig screens finnes også. Lave strømkostnader med felles fjernvarmeanlegg for varmtvann.
NB: Knappen for å vise hele beskrivelsen har kun en visuell effekt.
NB: Knappen for å vise hele beskrivelsen har kun en visuell effekt.
Salgsoppgaven beskriver vesentlig og lovpålagt informasjon om eiendommen
Se komplett salgsoppgaveNyttige lenker
Nærområdet
PrivatMegleren Sandefjord
Kun det beste på dine vegne
Annonseinformasjon
| FINN-kode | 437955648 |
|---|---|
| Sist endret | 15. jan. 2026 10:59 |
| Referanse | 33250096 |
Annonsene kan være mangelfulle i forhold til lovpålagt opplysningsplikt. Før bindende avtale inngås oppfordres interessenter til å innhente komplett informasjon fra meglerforetaket, selger eller utleier.












































