Bildegalleri

Velkommen til denne flotte leiligheten i Edelgranveien 64!
Moderne leilighet med stor terrasse og garasjeplass | Familievennlig nabolag nær skog og mark
Prisantydning4 750 000 kr
Nøkkelinfo
- Boligtype
- Leilighet
- Eieform
- Eier (Selveier)
- Soverom
- 1
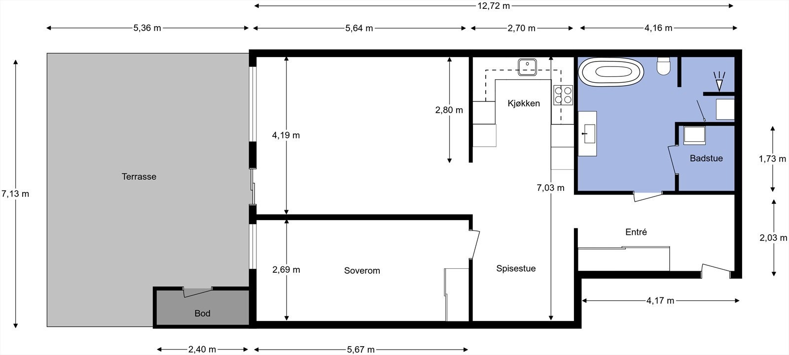
- Internt bruksareal
- 84 m² (BRA-i)
- Bruksareal
- 89 m²
- Eksternt bruksareal
- 5 m² (BRA-e)
- Balkong/Terrasse
- 36 m² (TBA)
- Etasje
- -1
- Byggeår
- 1982
- Rom
- 2
- Tomteareal
- 44 390 m² (eiet)
Fasiliteter
Balkong/Terrasse
Barnevennlig
Bredbåndstilknytning
Garasje/P-plass
Hage
Kjæledyr tillatt
Offentlig vann/kloakk
Parkett
Rolig
Sentralt
Vaktmester-/vektertjeneste
Turterreng
Om boligen
Velkommen til denne flotte leiligheten i Edelgranveien 64!
Leiligheten ligger i byggets underetasje og er bygget i 1982, med oppgraderinger som nytt bad og kjøkken i 2004. Fra stuen er det utgang til en romslig terrasse på 36 m² med bod. Leiligheten har også en kjellerbod på 3m² og garasjeplass i fellesanlegg. Her bor du i et hyggelig område med umiddelbar nærhet til landskapsvernområde (Dælivann med omkringliggende skog) og Murenveien med fine gå-, trille- og sykkelveier. Området er kjent for sin trygghet og gode naboskap, samt nærhet til skog og mark.
Merk deg dette:
-God standard og stilrene detaljer
-Badstue med valgfri dampfunksjon
-Boble og massage badekar
-Stor terrasse med adkomst til grøntareal
-Gode lagringsmuligheter m/bod på balkong + kjeller
-Garasjeplass
Leiligheten ligger i byggets underetasje og er bygget i 1982, med oppgraderinger som nytt bad og kjøkken i 2004. Fra stuen er det utgang til en romslig terrasse på 36 m² med bod. Leiligheten har også en kjellerbod på 3m² og garasjeplass i fellesanlegg. Her bor du i et hyggelig område med umiddelbar nærhet til landskapsvernområde (Dælivann med omkringliggende skog) og Murenveien med fine gå-, trille- og sykkelveier. Området er kjent for sin trygghet og gode naboskap, samt nærhet til skog og mark.
Merk deg dette:
-God standard og stilrene detaljer
-Badstue med valgfri dampfunksjon
-Boble og massage badekar
-Stor terrasse med adkomst til grøntareal
-Gode lagringsmuligheter m/bod på balkong + kjeller
-Garasjeplass
NB: Knappen for å vise hele beskrivelsen har kun en visuell effekt.
NB: Knappen for å vise hele beskrivelsen har kun en visuell effekt.
Salgsoppgaven beskriver vesentlig og lovpålagt informasjon om eiendommen
Se komplett salgsoppgaveNærområdet
Aktiv Grünerløkka
Annonseinformasjon
| FINN-kode | 437815609 |
|---|---|
| Sist endret | 04. jan. 2026 19:54 |
| Referanse | 1008250235 |
Annonsene kan være mangelfulle i forhold til lovpålagt opplysningsplikt. Før bindende avtale inngås oppfordres interessenter til å innhente komplett informasjon fra meglerforetaket, selger eller utleier.







































