Bildegalleri

Velkommen til Grønland 70A - presentert av Meglerhuset & partners.
Union Brygge | Pir 7 | Gjennomgående 3-roms selveier med solrik terrasse | Heis | Sentralt
Nøkkelinfo
- Boligtype
- Leilighet
- Eieform
- Eier (Selveier)
- Soverom
- 2
- Internt bruksareal
- 81 m² (BRA-i)
- Bruksareal
- 87 m²
- Eksternt bruksareal
- 6 m² (BRA-e)
- Balkong/Terrasse
- 17 m² (TBA)
- Etasje
- 5
- Byggeår
- 2013
- Energimerking
- C - Mørkegrønn
- Tomteareal
- 3 402 m² (eiet)
Fasiliteter
Visning
Om boligen
Velkommen til Grønland 70A presentert av Meglerhuset & Partners.
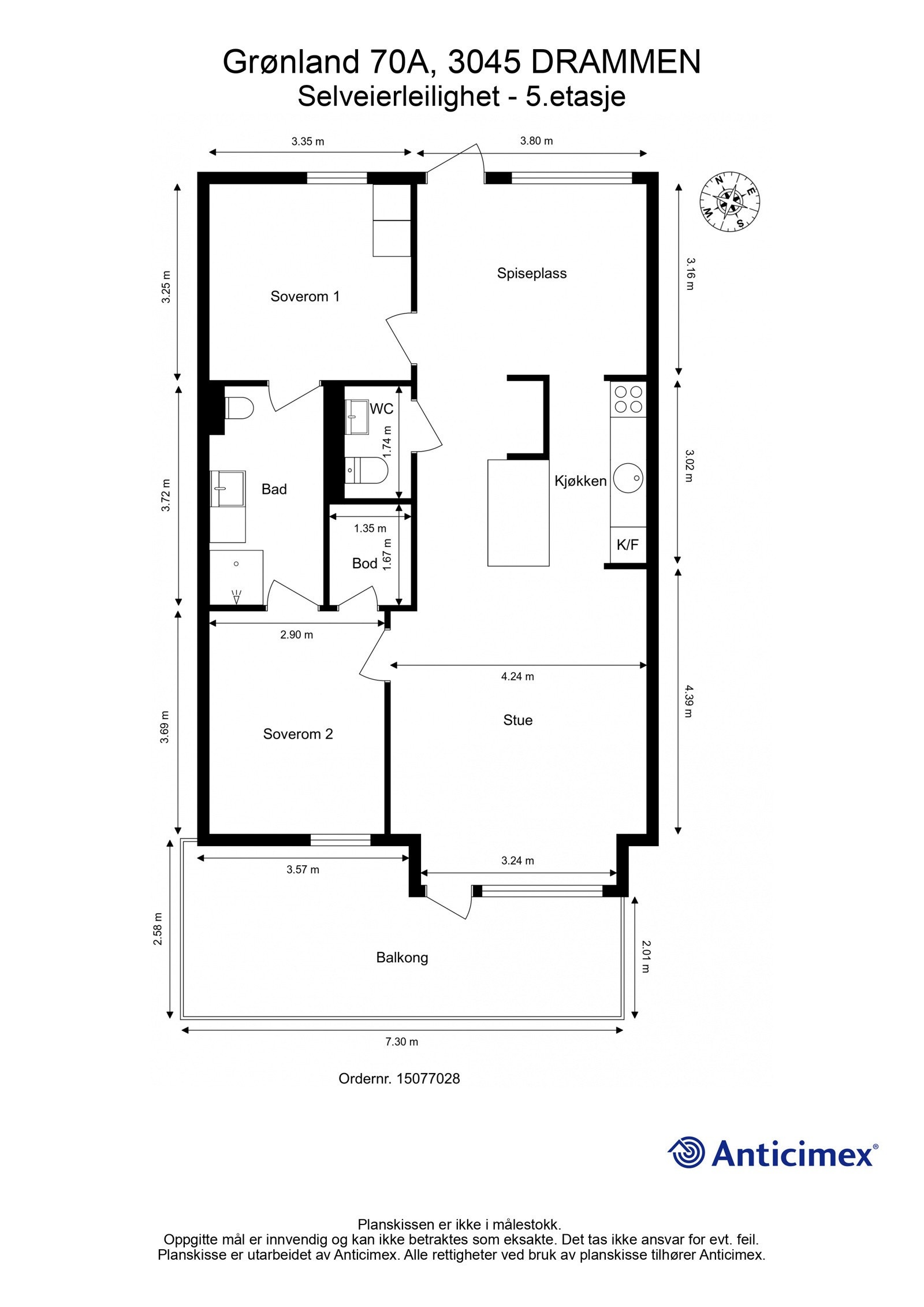
Dette er en lys og innbydende selveierleilighet i 5. etasje i det populære boligprosjektet Pir 7 på Union Brygge. Leiligheten fremstår moderne og velholdt, med et stilrent kjøkken i åpen løsning mot en romslig stue. Videre består den av to soverom, ett bad og et separat toalettrom. Store vindusflater gir svært gode lysforhold gjennom hele dagen og skaper en luftig atmosfære.
Union Brygge er et av Drammens mest attraktive boområder, med alt du trenger rett i nærheten: stor Meny-butikk, kafeer, restauranter, apotek, blomsterbutikk, treningssenter, bibliotek, USN campus Drammen og flotte turmuligheter langs elven. Her bor du med kort gangavstand til sentrum, servicetilbud samt togavganger mot Oslo og Kongsberg.
Salgsoppgaven beskriver vesentlig og lovpålagt informasjon om eiendommen
Se komplett salgsoppgaveNærområdet
Meglerhuset & Partners Drammen
Annonseinformasjon
| FINN-kode | 437697502 |
|---|---|
| Sist endret | 05. jan. 2026 03:11 |
| Referanse | 11250075 |
Annonsene kan være mangelfulle i forhold til lovpålagt opplysningsplikt. Før bindende avtale inngås oppfordres interessenter til å innhente komplett informasjon fra meglerforetaket, selger eller utleier.



























