Bildegalleri

Velkommen til Krutthusgata 3 Foto: Fodro
Hel horisontaldelt tomannsbolig med meget sentral plassering - Gode leieinntekter
Prisantydning4 975 000 kr
Nøkkelinfo
- Boligtype
- Tomannsbolig
- Eieform
- Eier (Selveier)
- Soverom
- 4
- Internt bruksareal
- 235 m² (BRA-i)
- Bruksareal
- 235 m²
- Eksternt bruksareal
- 4 m² (BRA-e)
- Balkong/Terrasse
- 5 m² (TBA)
- Byggeår
- 1951
- Energimerking
- G - Oransje
- Rom
- 6
- Tomteareal
- 367 m²
Om boligen
Eiendomsmegler1 presenterer Krutthusgata 3.
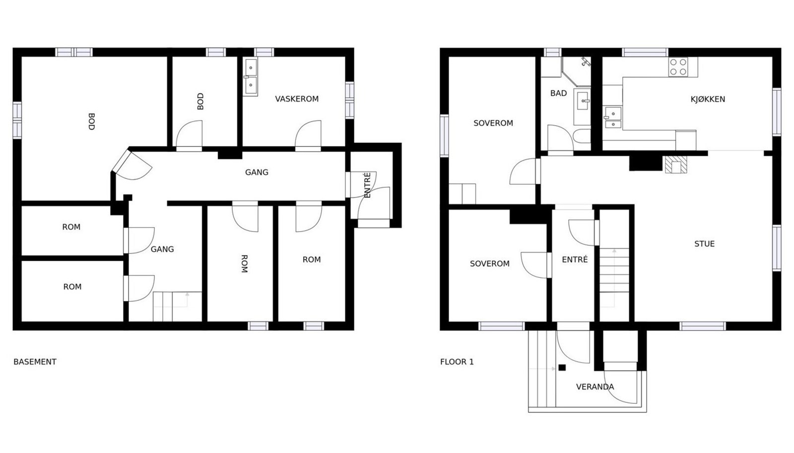
Dette er en hel tomannsbolig over fire plan. Boder i kjeller, to leiligheter i 1. og 2. etasje, samt innredet loft med loftstue og soverom. Loft er ikke dokumentert omsøkt. Boligen er lys og holder normal god standard. Godt tidvis oppgradert og ivaretatt med tanke på alder, men noe påkostninger må påregnes. Fin bolig for å bo i selv, og leie ut en enhet, eller benytte som utleie objekt for begge enheter.
Boligen ligger i sentrum av Hammerfest, her er kun kort gangvei til alle av byens fasiliteter. Umiddelbar nærhet til friarealer/turområder.
Butikker, busstopp, museer mv. er kun en spasertur unna.
Kort fortalt:
- Hel tomannsbolig
- 2 fulle leiligheter
- En leilighet med loft
- En leilighet med kjeller
- Sentrum
- Normal bra standard
- Parkering på tomt
Velkommen på visning!
Dette er en hel tomannsbolig over fire plan. Boder i kjeller, to leiligheter i 1. og 2. etasje, samt innredet loft med loftstue og soverom. Loft er ikke dokumentert omsøkt. Boligen er lys og holder normal god standard. Godt tidvis oppgradert og ivaretatt med tanke på alder, men noe påkostninger må påregnes. Fin bolig for å bo i selv, og leie ut en enhet, eller benytte som utleie objekt for begge enheter.
Boligen ligger i sentrum av Hammerfest, her er kun kort gangvei til alle av byens fasiliteter. Umiddelbar nærhet til friarealer/turområder.
Butikker, busstopp, museer mv. er kun en spasertur unna.
Kort fortalt:
- Hel tomannsbolig
- 2 fulle leiligheter
- En leilighet med loft
- En leilighet med kjeller
- Sentrum
- Normal bra standard
- Parkering på tomt
Velkommen på visning!
NB: Knappen for å vise hele beskrivelsen har kun en visuell effekt.
NB: Knappen for å vise hele beskrivelsen har kun en visuell effekt.
Salgsoppgaven beskriver vesentlig og lovpålagt informasjon om eiendommen
Se komplett salgsoppgaveNyttige lenker
Nærområdet
EiendomsMegler 1 Hammerfest
Vi er der du er - EiendomsMegler 1
Annonsene kan være mangelfulle i forhold til lovpålagt opplysningsplikt. Før bindende avtale inngås oppfordres interessenter til å innhente komplett informasjon fra meglerforetaket, selger eller utleier.














































