Bildegalleri

Velkommen til Bråtenveien 7!
Ski
Sentrumsnær enebolig med kort gange til "alt" - Garasje med utestue/kjøkken - Uteområder med gode sol- og utsiktsforhold
Prisantydning8 300 000 kr
Nøkkelinfo
- Boligtype
- Enebolig
- Eieform
- Eier (Selveier)
- Soverom
- 3
- Internt bruksareal
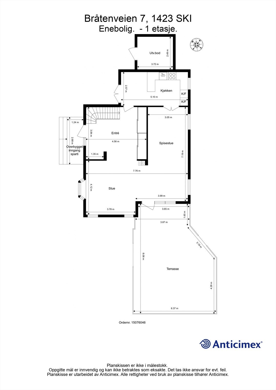
- 195 m² (BRA-i)
- Bruksareal
- 237 m²
- Eksternt bruksareal
- 42 m² (BRA-e)
- Balkong/Terrasse
- 56 m² (TBA)
- Byggeår
- 1983
- Energimerking
- F - Rød
- Tomteareal
- 631 m² (eiet)
Fasiliteter
Balkong/Terrasse
Barnevennlig
Bredbåndstilknytning
Garasje/P-plass
Hage
Offentlig vann/kloakk
Peis/Ildsted
Rolig
Sentralt
Utsikt
Lademulighet
Visning
For at vår megler og selger skal kunne gi deg den beste oppfølgingen og kjøpsopplevelsen er det obligatorisk påmelding til alle våre visninger. Dersom ditt reserverte tidspunkt likevel ikke kan benyttes trenger vi beskjed så tidlig som mulig sånn at vi kan finne en alternativ løsning. Vi har alltid tid til deg. Visninger uten påmeldte deltagere avlyses. Ta kontakt for privatvisninger.
VisningspåmeldingOm boligen
Velkommen til Bråtenveien 7!
Eiendommen har en meget sentrumsnær beliggenhet hvor det er kort gange til "alt". Boligen ligger innerst i blindvei og har flotte uteområder med gode sol- og utsiktsforhold. Stille og rolig nabolag. Få minutters gange til Ski stasjon og Ski sentrum. Med Follobanen tar du deg til Oslo på 11-12 minutter. Det er kort og barnevennlig vei til skole og barnehage(r).
Boligen består av to etasjer og kjeller, med har en innholdsrik planløsning med flere bruksområder. Dobbelgarasje hvorav den ene delen er innredet til utestue/kjøkken med tilhørende pergola. Det er montert elbillader. Ellers flere uteområder - her kan man flytte seg med sola.
Velkommen til en hyggelig visning!
Eiendommen har en meget sentrumsnær beliggenhet hvor det er kort gange til "alt". Boligen ligger innerst i blindvei og har flotte uteområder med gode sol- og utsiktsforhold. Stille og rolig nabolag. Få minutters gange til Ski stasjon og Ski sentrum. Med Follobanen tar du deg til Oslo på 11-12 minutter. Det er kort og barnevennlig vei til skole og barnehage(r).
Boligen består av to etasjer og kjeller, med har en innholdsrik planløsning med flere bruksområder. Dobbelgarasje hvorav den ene delen er innredet til utestue/kjøkken med tilhørende pergola. Det er montert elbillader. Ellers flere uteområder - her kan man flytte seg med sola.
Velkommen til en hyggelig visning!
NB: Knappen for å vise hele beskrivelsen har kun en visuell effekt.
NB: Knappen for å vise hele beskrivelsen har kun en visuell effekt.
Salgsoppgaven beskriver vesentlig og lovpålagt informasjon om eiendommen
Se komplett salgsoppgaveNærområdet
Attentus Eiendomsmegling
Annonseinformasjon
| FINN-kode | 437141493 |
|---|---|
| Sist endret | 14. nov. 2025 19:32 |
| Referanse | ATE1.25326 |
Annonsene kan være mangelfulle i forhold til lovpålagt opplysningsplikt. Før bindende avtale inngås oppfordres interessenter til å innhente komplett informasjon fra meglerforetaket, selger eller utleier.










































































