Bildegalleri

Velkommen til Sandakerveien 27! Presenteres av Silje Heggø ved Nordvik bolig. Foto: Kenneth Williassen
Torshov
Gjennomgående 6-roms med stort potensial. Vestvendt balkong. Separat kjøkken. Moderniseringsbehov. Sentral beliggenhet
Prisantydning9 490 000 kr
Nøkkelinfo
- Boligtype
- Leilighet
- Eieform
- Eier (Selveier)
- Soverom
- 5
- Internt bruksareal
- 121 m² (BRA-i)
- Bruksareal
- 134 m²
- Eksternt bruksareal
- 13 m² (BRA-e)
- Balkong/Terrasse
- 3 m² (TBA)
- Etasje
- 4
- Byggeår
- 1888
- Energimerking
- F - Oransje
- Rom
- 6
- Tomteareal
- 266 m² (eiet)
Fasiliteter
Balkong/Terrasse
Barnevennlig
Bredbåndstilknytning
Kabel-TV
Offentlig vann/kloakk
Parkett
Peis/Ildsted
Rolig
Sentralt
Turterreng
Visning
søndag, 15. februar
14:00 – 14:45
Meld deg på visning ved å trykke på lenken visningspåmelding.
VisningspåmeldingOm boligen
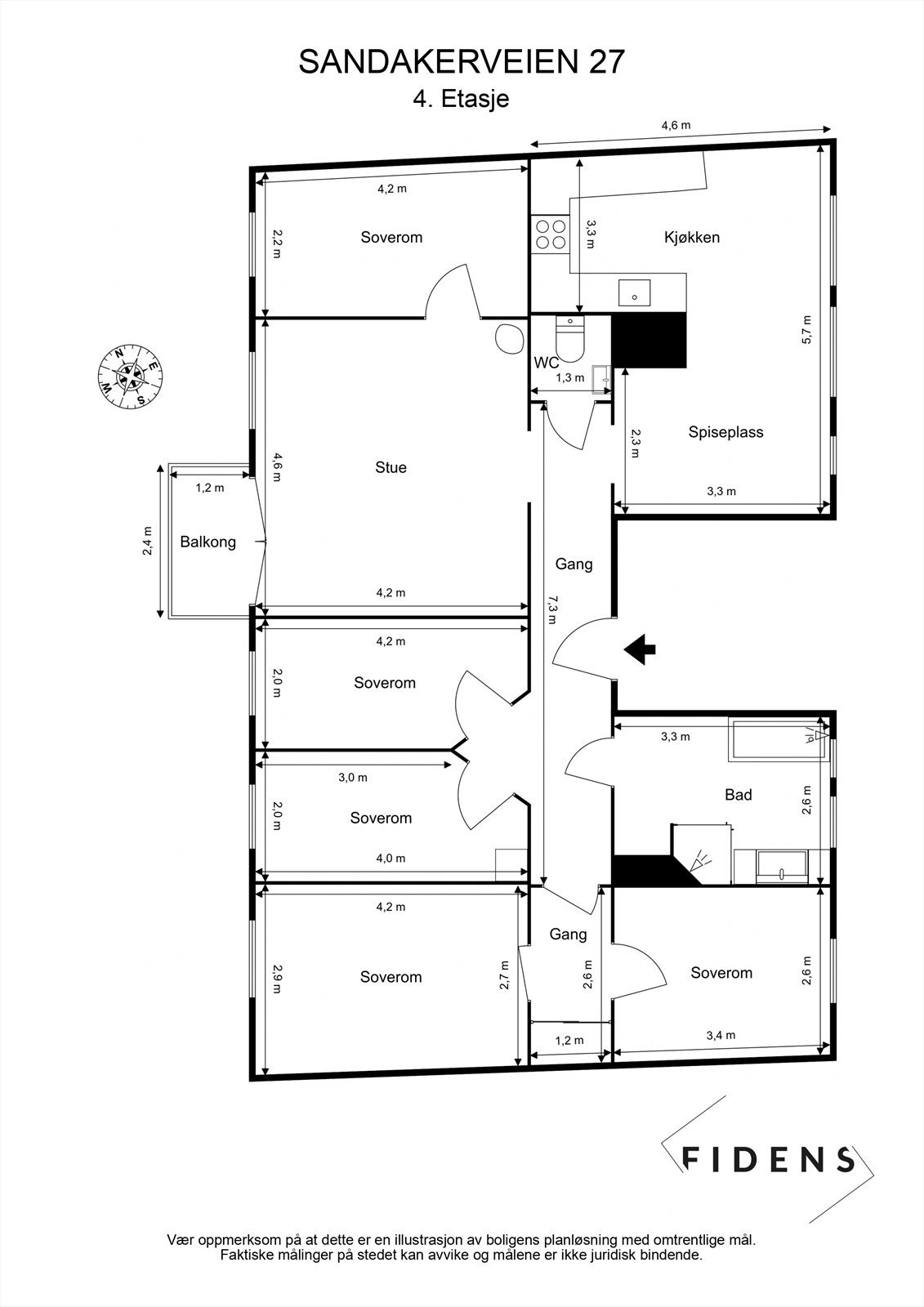
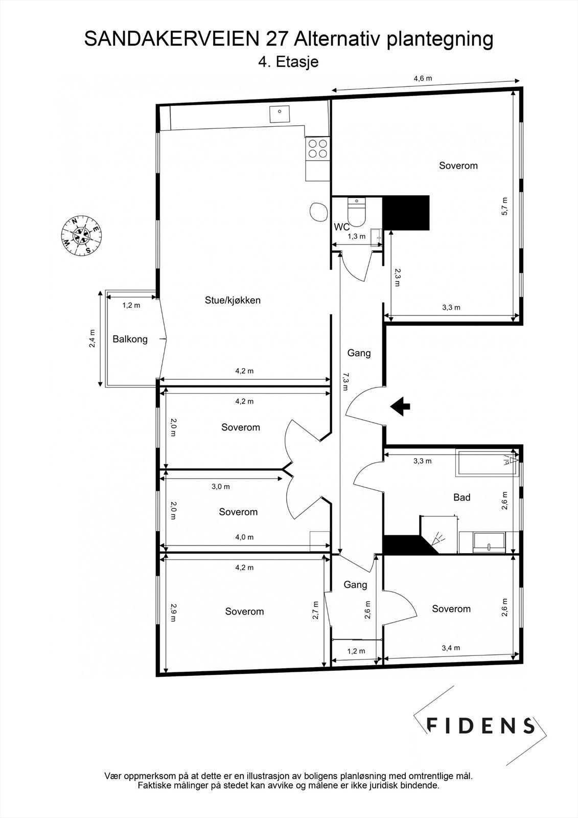
Sandakerveien 27 er en unik og attraktiv selveierleilighet med gjennomgående planløsning og hele 5 soverom.
Leiligheten ligger i 4. etasje av en klassisk bygård fra 1888, og byr på en solrik, vestvendt balkong. Leiligheten inneholder separat kjøkken, stue med vedovn, stort bad samt et toalettrom, som gir muligheter for tilpasning etter egne behov.
Leiligheten har behov for noe modernisering og oppussing, dette gir en unik mulighet for kjøperen til å sette sitt eget preg på boligen!
- Gjennomgående 6-roms i klassisk bygård
- Vestvendt balkong på ca. 3m²
- God planløsning med stort potensial
- Noe moderniseringsbehov må påregnes
- Peisovn
- Disponerer to romslige boder
- Ca. 3 minutters gange til trikk og buss
- Kort vei til kafeer, spisesteder og dagligvare
- Mulighet for rask overtakele
Leiligheten ligger i 4. etasje av en klassisk bygård fra 1888, og byr på en solrik, vestvendt balkong. Leiligheten inneholder separat kjøkken, stue med vedovn, stort bad samt et toalettrom, som gir muligheter for tilpasning etter egne behov.
Leiligheten har behov for noe modernisering og oppussing, dette gir en unik mulighet for kjøperen til å sette sitt eget preg på boligen!
- Gjennomgående 6-roms i klassisk bygård
- Vestvendt balkong på ca. 3m²
- God planløsning med stort potensial
- Noe moderniseringsbehov må påregnes
- Peisovn
- Disponerer to romslige boder
- Ca. 3 minutters gange til trikk og buss
- Kort vei til kafeer, spisesteder og dagligvare
- Mulighet for rask overtakele
NB: Knappen for å vise hele beskrivelsen har kun en visuell effekt.
NB: Knappen for å vise hele beskrivelsen har kun en visuell effekt.
Salgsoppgaven beskriver vesentlig og lovpålagt informasjon om eiendommen
Se komplett salgsoppgaveNyttige lenker
Nærområdet
Nordvik Torshov
Vi vet hva det er verdt
Annonseinformasjon
| FINN-kode | 437107945 |
|---|---|
| Sist endret | 08. feb. 2026 15:19 |
| Referanse | 29-0246/25 |
Annonsene kan være mangelfulle i forhold til lovpålagt opplysningsplikt. Før bindende avtale inngås oppfordres interessenter til å innhente komplett informasjon fra meglerforetaket, selger eller utleier.
























































