Bildegalleri

Eiendomsmegler Krogsveen v/Idriss Eliassy ønsker velkommen til Karisveien 17!
Solgt
Skjetten
Familievennlig rekkehus med 4 soverom | Utgang til markterrasse | God planløsning| Garasjeplass m/ elbillader
Prisantydning5 100 000 kr
Nøkkelinfo
- Boligtype
- Rekkehus
- Eieform
- Andel
- Soverom
- 4
- Internt bruksareal
- 135 m² (BRA-i)
- Bruksareal
- 154 m²
- Eksternt bruksareal
- 19 m² (BRA-e)
- Balkong/Terrasse
- 10 m² (TBA)
- Byggeår
- 1973
- Energimerking
- F - Rød
- Rom
- 4
- Tomteareal
- 82 400 m² (eiet)
Fasiliteter
Balkong/Terrasse
Barnevennlig
Garasje/P-plass
Hage
Kabel-TV
Peis/Ildsted
Rolig
Sentralt
Turterreng
Lademulighet
Om boligen
Velkommen til Karisveien 17! Et innholdsrikt og familievennlig rekkehus beliggende i et etablert og trygt boligområde på Skjetten. Her bor du med nærhet til skoler, barnehager og dagligvarebutikker, samt kort vei til bussholdeplass med gode forbindelser. Området byr også på flotte turmuligheter og flere lekeplasser, noe som gjør dette til et ideelt hjem for en aktiv familie.
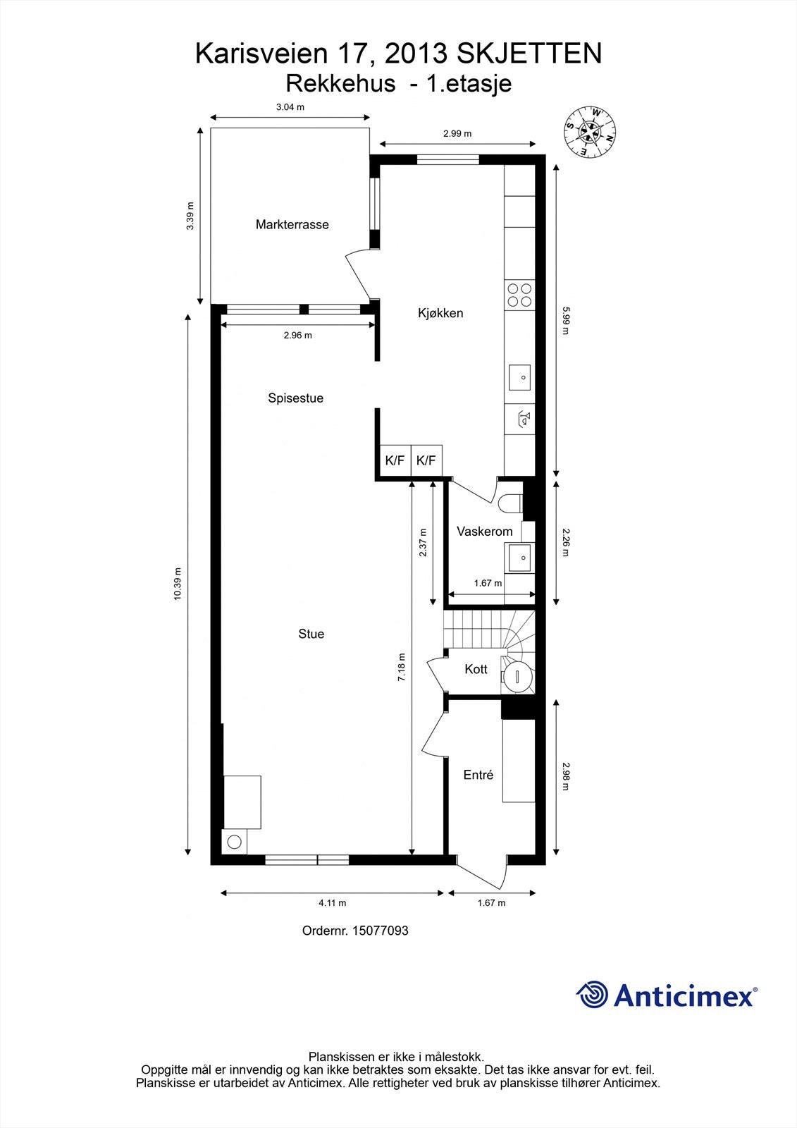
Boligen går over to plan og har en god planløsning med fire soverom og et praktisk walk-in-closet i andre etasje. Kjøkken, bad og vaskerom ble oppgradert i 2012, og alle vinduer ble skiftet i 2022. Stuen har en hyggelig peis, og fra kjøkkenet er det utgang til en terrasse på 10 m². Eiendommen har også en garasjeplass med elbillader og en utvendig bod.
Velkommen til visning!
Boligen går over to plan og har en god planløsning med fire soverom og et praktisk walk-in-closet i andre etasje. Kjøkken, bad og vaskerom ble oppgradert i 2012, og alle vinduer ble skiftet i 2022. Stuen har en hyggelig peis, og fra kjøkkenet er det utgang til en terrasse på 10 m². Eiendommen har også en garasjeplass med elbillader og en utvendig bod.
Velkommen til visning!
NB: Knappen for å vise hele beskrivelsen har kun en visuell effekt.
NB: Knappen for å vise hele beskrivelsen har kun en visuell effekt.
Salgsoppgaven beskriver vesentlig og lovpålagt informasjon om eiendommen
Se komplett salgsoppgaveNyttige lenker
Nærområdet
Krogsveen Lillestrøm
Velkommen til en enklere boligreise.
Annonseinformasjon
| FINN-kode | 437098959 |
|---|---|
| Sist endret | 28. nov. 2025 10:49 |
| Referanse | KR60.25369 |
Annonsene kan være mangelfulle i forhold til lovpålagt opplysningsplikt. Før bindende avtale inngås oppfordres interessenter til å innhente komplett informasjon fra meglerforetaket, selger eller utleier.

































