Bildegalleri

Velkommen til Karolinerveien 9A, presentert av EiendomsMegler 1 ved Ivar Lindrupsen.
Byåsen/Havstad
LUFTIG TOPP- OG HJØRNELIELIGHET MED SENTRAL BELIGGENHET. Bod i kjeller. Stor takterrasse. Nærhet til alt.
Prisantydning1 990 000 kr
Nøkkelinfo
- Boligtype
- Leilighet
- Eieform
- Andel
- Soverom
- 0
- Internt bruksareal
- 22 m² (BRA-i)
- Bruksareal
- 25 m²
- Eksternt bruksareal
- 3 m² (BRA-e)
- Balkong/Terrasse
- 43 m² (TBA)
- Etasje
- 4
- Byggeår
- 1969
- Energimerking
- F - Rød
- Rom
- 1
- Tomteareal
- 44 328 m² (eiet)
Fasiliteter
Balkong/Terrasse
Kabel-TV
Offentlig vann/kloakk
Turterreng
Utsikt
Vaktmester-/vektertjeneste
Sentralt
Bredbåndstilknytning
Rolig
Bademulighet
Lademulighet
Visning
onsdag, 11. februar
16:00 – 16:45
Våre visninger har påmelding. Dette gjør vi for å kunne yte bedre service for våre kunder. Verdifullt for boligkjøper og for oss. Vi anbefaler at salgsoppgaven lastes ned digitalt før visning, og ring oss gjerne på forhånd for spørsmål om boligen. Passer ikke angitt tidspunkt, ta kontakt så finner vi en løsning. Skulle det mot formodning ikke være påmeldte til angitt visningstidspunkt vil ikke visning bli gjennomført.
Om boligen
Velkommen til Karolinerveien 9 A, presentert av EiendomsMegler 1 ved Ivar Lindrupsen.
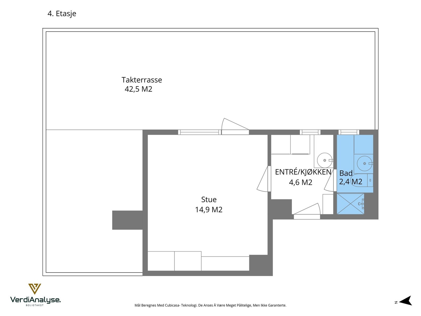
Lys 1-roms toppleilighet på 22 kvm i et rolig område på Havstad. Leiligheten har direkte utgang til en solrik takterrasse på hele 42,5 kvm som fungerer som en naturlig forlengelse av stuen, perfekt for både avslapning og sosiale sammenkomster. I tillegg følger det med en bod i kjelleren som gir god lagringsplass.
Nøkkelkvaliteter:
Lys 1-roms toppleilighet på 22 kvm i et rolig område på Havstad. Leiligheten har direkte utgang til en solrik takterrasse på hele 42,5 kvm som fungerer som en naturlig forlengelse av stuen, perfekt for både avslapning og sosiale sammenkomster. I tillegg følger det med en bod i kjelleren som gir god lagringsplass.
Nøkkelkvaliteter:
- Oppbevaring i en bod i kjeller
- Vinduer byttet i 2022
- Leiligheten har god plassutnyttelse
- Stue med plass til sofa og spisebord
- Stor takterrasse på hele 42,5 kvm
- Umiddelbar nærhet til dagligvare og Kollektivtransport
Velkommen til hyggelig visning!
NB: Knappen for å vise hele beskrivelsen har kun en visuell effekt.
NB: Knappen for å vise hele beskrivelsen har kun en visuell effekt.
Salgsoppgaven beskriver vesentlig og lovpålagt informasjon om eiendommen
Se komplett salgsoppgaveNyttige lenker
Nærområdet
EiendomsMegler 1 Byåsen
Vi loser deg trygt gjennom hele boligsalget
Annonseinformasjon
| FINN-kode | 437098529 |
|---|---|
| Sist endret | 06. feb. 2026 15:13 |
| Referanse | 35250257 |
Annonsene kan være mangelfulle i forhold til lovpålagt opplysningsplikt. Før bindende avtale inngås oppfordres interessenter til å innhente komplett informasjon fra meglerforetaket, selger eller utleier.






















