Bildegalleri

Moster - Enebolig med stor tomt og garasje
Nøkkelinfo
- Boligtype
- Enebolig
- Eieform
- Eier (Selveier)
- Soverom
- 4
- Bruksareal
- 178 m²
- Etasje
- 3
- Byggeår
- 1958
- Energimerking
- G - Rød
- Rom
- 6
- Tomteareal
- 1 751 m² (eiet)
Fasiliteter
Visning
Beliggenhet
Eiendommen ligger i kort avstand til skole og barnehage. 5 minutt biltur til butikk og 15 minutter til kommunesenter.
Beskrivelse
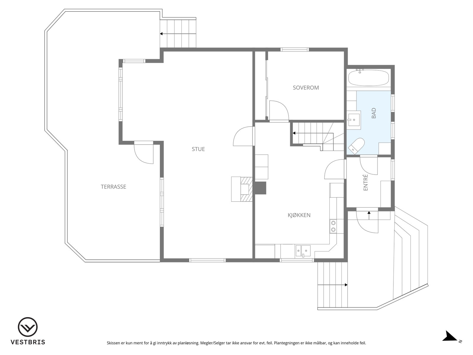
Enebolig over tre plan hvor hovedetasje inneholder entre, kjøkken med trapp til loftsetasjen, stue med utgang til stor terrasse. Loftetasje inneholder stue og 3 soverom.
Underetasje inneholder uinnredede kjellerrom med utgang og vaskerom. Garasje er over to plan hvor 1. etasje har biloppstillingsplass. 2. etasje er innredet med disponibelt rom. Trapp opp til 2. etasje er ødelagt. Garasje har et bruksareal på 86 kvm.
Boligen fremstår som slitt og har et stort behov for totalrenovering. Det vises til vedlagt verditakst utarbeidet av takstmann Jens-Tore Engevik av 15.10.2025 og herfra hitsettes følgende;
- Murverk har mye riss og sprekker. Pussen er og malt og denne er flasset.
- Det et seget takkonstruksjon som er forårsaket av innsatt takvindu uten tilstrekkelig understøttelse av avkappende takstoler.
- Takstein har oppnådd forventet levealder.
- Vinduer er modne for renovering/utskiftning.
- Ytterdører bør og renoveres.
- Det bør dreneres på nytt, og usikkert på om det er drenert.
- Slitte innvendige overflater.
- Uinnredet kjeller med uisolert gulv i betong.
- Etasjeskiller i tre med setninger.
- Det er ikke trapp mellom kjeller og 1. etasje.
- Varmtvannsbereder er på 200 liter og av eldre dato.
- Fliser på gulv og vegger på våtrom. Kondemnert på grunn av utett. Må renoveres.
Det anbefales at teknisk stand gjennomgås med fagpersonell.
Adkomst
Eiendommen ligger med direkte avkjørsel fra fv. 5000, Grindheimsvegen.
Utfyllende informasjon om fellesgjeld og felleskostnader
Annen info 1
Annen info 2
Annen info 3
Annen info 4
Annen info 5
Beskaffenhet
Tomtearealet er 1 751,4 m2. Tomtearealet består av gruslagt oppstillingsplass til bil samt plen og trær og busker. Tomten ligger i relativt skrånende terreng.
Ta kontakt med megler for komplett informasjon
Nyttige lenker
Nærområdet

Borgen Advokatar AS
Annonsene kan være mangelfulle i forhold til lovpålagt opplysningsplikt. Før bindende avtale inngås oppfordres interessenter til å innhente komplett informasjon fra meglerforetaket, selger eller utleier.



























