Bildegalleri

Kristoffer Mjåtveit har gleden av å presentere Gladengveien 4H!
Solgt
ENSJØ
Pen, attraktiv og gjennomgående 4-r fra 2012 - Stor terrasse på 36 kvm. og vestvendt balkong - IN-ordning - Garasjeleie*
Prisantydning6 675 000 kr
Nøkkelinfo
- Boligtype
- Leilighet
- Eieform
- Andel
- Soverom
- 3
- Internt bruksareal
- 86 m² (BRA-i)
- Bruksareal
- 91 m²
- Eksternt bruksareal
- 5 m² (BRA-e)
- Balkong/Terrasse
- 43 m² (TBA)
- Etasje
- 2
- Byggeår
- 2012
- Energimerking
- B - Mørkegrønn
- Rom
- 4
- Tomteareal
- 5 246 m² (eiet)
Fasiliteter
Balkong/Terrasse
Barnevennlig
Bredbåndstilknytning
Garasje/P-plass
Ingen gjenboere
Kabel-TV
Offentlig vann/kloakk
Parkett
Rolig
Sentralt
Utsikt
Balansert ventilasjon
Om boligen
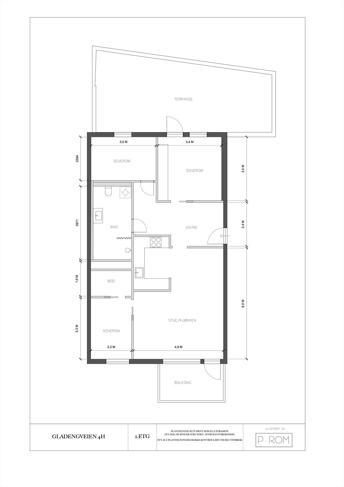
Meget pen, innbydende og innholdsrik 4-roms med to solrike uteplasser, god standard og gjennomgående planløsning.
Leiligheten ligger sentralt på urbane Ensjø med kort vei til alle fasiliteter som dagligvarebutikker, hyggelige spisesteder, parkområder og offentlig kommunikasjon.
Leiligheten ligger fint til i byggets 2. etasje og inneholder entré, kjøkken, stue, bad og tre soverom.
Leiligheten ligger sentralt på urbane Ensjø med kort vei til alle fasiliteter som dagligvarebutikker, hyggelige spisesteder, parkområder og offentlig kommunikasjon.
Leiligheten ligger fint til i byggets 2. etasje og inneholder entré, kjøkken, stue, bad og tre soverom.
- Herlig terrasse på 36 kvm. og vestvendt balkong på 7 kvm.
- Nymalte overflater i 2025
- Velholdt, med god standard fra byggeår
- Kjellerbod og innvendig bod
- IN-ordning
- Ved innfrielse av andel fellesgjeld vil felleskostnadene utgjøre ca. 6 774,-
- Akonto varmtvann og fyring inkl.
- Balansert ventilasjon
- Heis i bygget
- Rett til garasjeleie i kjelleren
- Ingen dok.avgift
NB: Knappen for å vise hele beskrivelsen har kun en visuell effekt.
NB: Knappen for å vise hele beskrivelsen har kun en visuell effekt.
Salgsoppgaven beskriver vesentlig og lovpålagt informasjon om eiendommen
Se komplett salgsoppgaveNyttige lenker
Nærområdet
Nordvik St.Hanshaugen
Annonseinformasjon
| FINN-kode | 436645887 |
|---|---|
| Sist endret | 10. apr. 2026 12:53 |
| Referanse | 5-0496/25 |
Annonsene kan være mangelfulle i forhold til lovpålagt opplysningsplikt. Før bindende avtale inngås oppfordres interessenter til å innhente komplett informasjon fra meglerforetaket, selger eller utleier.
























































