


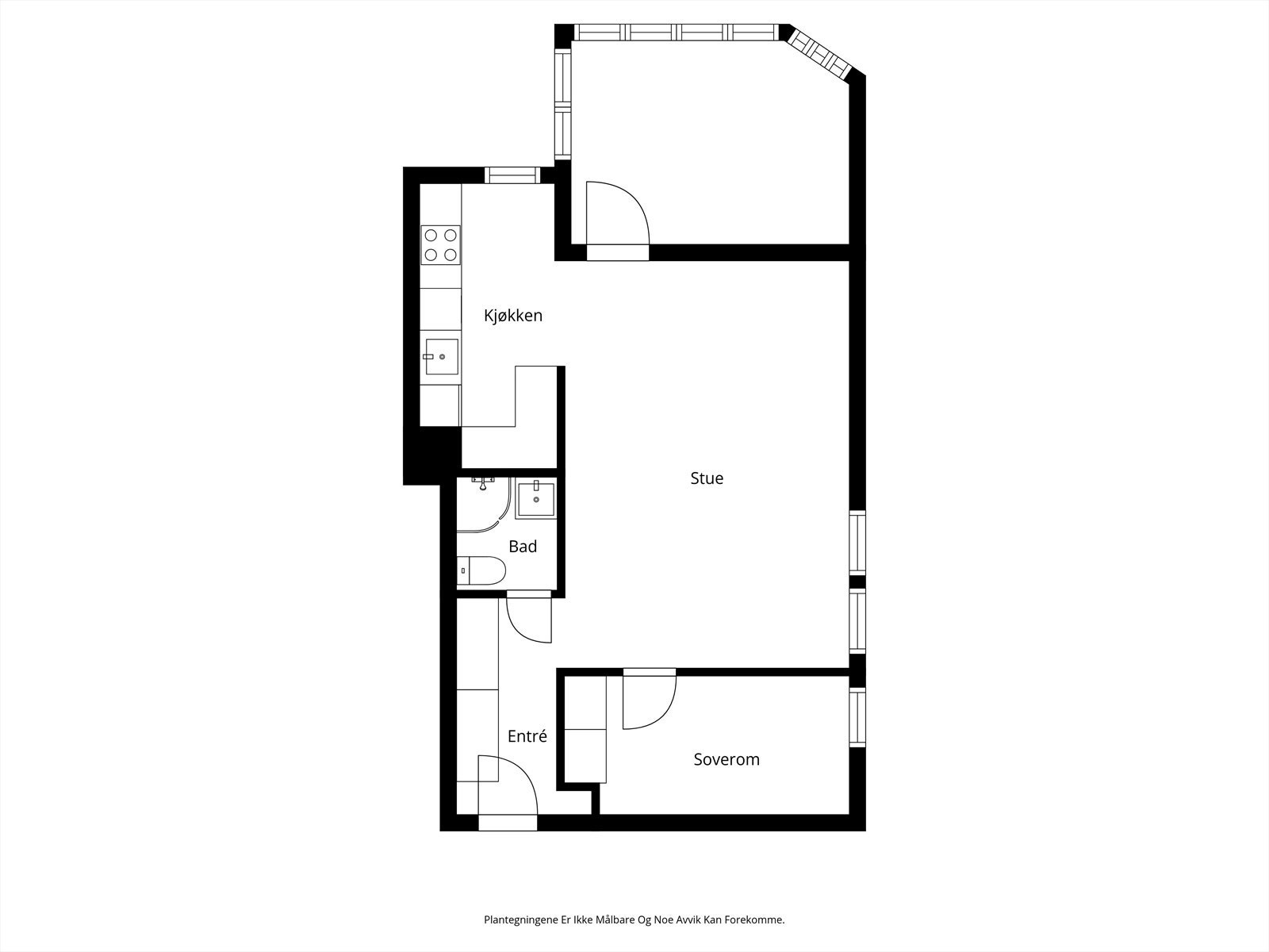
Megler Fabian Robertino (92117474) har gleden av å presentere Prestelandet 20! - En 2-roms leilighet i 3. etasje! (Bildet er redigert for å fremstå sesongriktig. Avvik kan forekomme)
Salgsoppgaven beskriver vesentlig og lovpålagt informasjon om eiendommen
Se komplett salgsoppgavePrestelandet 20
på annonsen
prisantydning per kvadratmeter
Pris per m² ligger 10 241 kr over snittet for leiligheter i Fredrikstad.
Grafen viser antall leiligheter solgt i Fredrikstad siste året fordelt på pris per m² - totalt 729 leiligheter
Antall boliger
Kvadratmeterpris tilsvarer prisantydning pluss fellesgjeld per kvadratmeter (p-rom eller BRA-i). Prisene i grafen er avrundet til nærmeste 1000 kr.












| FINN-kode | 436030423 |
|---|---|
| Sist endret | 01. apr. 2026 12:11 |
| Referanse | 217250338 |
Annonsene kan være mangelfulle i forhold til lovpålagt opplysningsplikt. Før bindende avtale inngås oppfordres interessenter til å innhente komplett informasjon fra meglerforetaket, selger eller utleier.