Bildegalleri

Huset er tegnet av Fjord arkitekter. Boligen ligger tilbaketrukket til på hyggelig tun bestående av 4 hus
Solrikt på Ullern
Ny enebolig | Hybel og utleiegaranti på kr 20 000,- pr mnd. | Fjordutsikt | Garasje | Solrik takterrasse | Siste sjanse
Prisantydning17 990 000 kr
Nøkkelinfo
- Boligtype
- Enebolig
- Eieform
- Eier (Selveier)
- Soverom
- 4
- Internt bruksareal
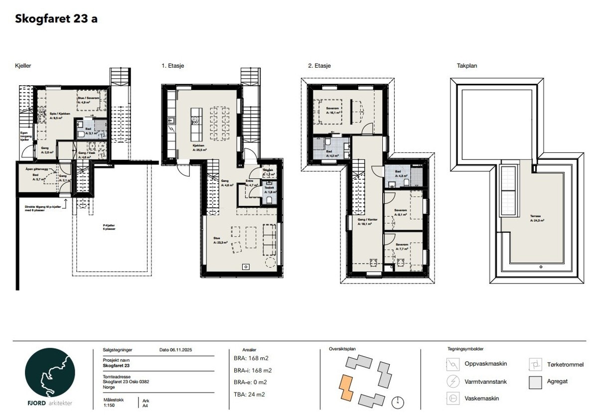
- 169 m² (BRA-i)
- Bruksareal
- 169 m²
- Balkong/Terrasse
- 33 m² (TBA)
- Byggeår
- 2025
- Energimerking
- B - Rød
- Tomteareal
- 1 665 m² (eiet)
Fasiliteter
Balkong/Terrasse
Peis/Ildsted
Parkett
Barnevennlig
Rolig
Moderne
Sentralt
Turterreng
Offentlig vann/kloakk
Utsikt
Visning
søndag, 01. mars
15:15 – 16:00
Alle våre visninger har påmelding. På denne måten sikrer vi at megler har god oversikt og tid til å imøtekomme alle interessenter på beste måte. Dette er veldig verdifullt for boligkjøpere og for oss. Det er enkelt å melde seg på, og du kan like enkelt melde deg av.
Kontakt også gjerne megler i forkant av visning dersom du har spørsmål.
VisningspåmeldingOm boligen
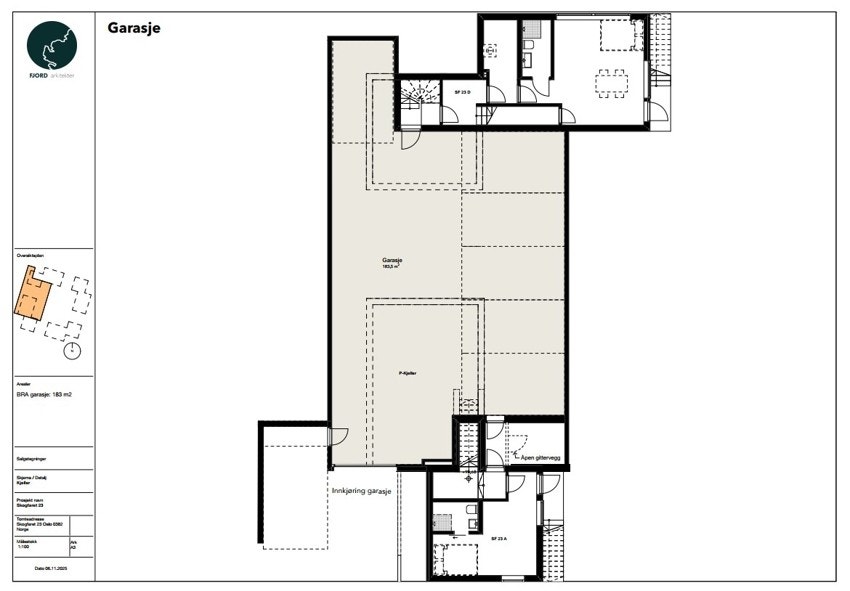
Nyoppført enebolig i solrike omgivelser. Eiendommen ligger tilbaketrukket på et lite høydedrag på et hyggelig tun med fire hus. Boligen er nylig ferdigstilt og har gjennomførte opparbeidede uteområder. Felles garasjeanlegg med direkte adkomst til boligen.
- Selger garanterer utleie for 1 år med kr 20 000 pr mnd
- Solrik takterrasse (19,5 kvm) med flott utsikt
- Lys hovedetasje med store vindusflater og utgang til terrasse og hage
- Lekkert kjøkken fra HTH med integrerte hvitevarer
- Peis i stue
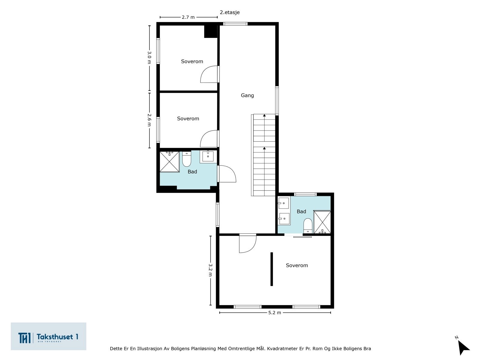
- 3 soverom + mulighet for 4 soverom på samme plan
- Masteravdeling med walk-in og dusjbad
- Gjestewc
- Separat vaskerom
- Selger vil montere hybelkjøkken før overtakelse
- Ferdigattest foreligger
- Lave omk. og garanti stilles
Sogner til Bjørnsletta skole. Montersorri skole ligger like i nærheten. Kort vei til T-bane, buss og CC Vest
NB: Knappen for å vise hele beskrivelsen har kun en visuell effekt.
NB: Knappen for å vise hele beskrivelsen har kun en visuell effekt.
Salgsoppgaven beskriver vesentlig og lovpålagt informasjon om eiendommen
Se komplett salgsoppgaveNyttige lenker
Nærområdet

PrivatMegleren Allé
Kun det beste på dine vegne
Annonseinformasjon
| FINN-kode | 436028462 |
|---|---|
| Sist endret | 01. mars 2026 03:08 |
| Referanse | 186250265 |
Annonsene kan være mangelfulle i forhold til lovpålagt opplysningsplikt. Før bindende avtale inngås oppfordres interessenter til å innhente komplett informasjon fra meglerforetaket, selger eller utleier.


































