Bildegalleri

Velkommen til Åkerveien 8A!
Prestfoss
Nyere og innbydende halvpart av tomannsbolig fra 2024 med alt på en flate - Landlig og rolig beliggenhet
Prisantydning2 790 000 kr
Nøkkelinfo
- Boligtype
- Tomannsbolig
- Eieform
- Eier (Selveier)
- Soverom
- 2
- Internt bruksareal
- 86 m² (BRA-i)
- Bruksareal
- 86 m²
- Balkong/Terrasse
- 30 m² (TBA)
- Byggeår
- 2024
- Energimerking
- B - Oransje
- Rom
- 3
- Tomteareal
- 301 m² (eiet)
Fasiliteter
Balkong/Terrasse
Barnevennlig
Hage
Offentlig vann/kloakk
Peis/Ildsted
Rolig
Turterreng
Balansert ventilasjon
Visning
Ønsker du å delta på visningen ber vi deg melde deg på slik at vi vet at du kommer. Da kan vi bistå alle best mulig og gi deg tiden du trenger på visningen. Kontakt gjerne megler før visning hvis du har spørsmål. Visningen avholdes bare dersom det er påmeldte. Hvis det ikke er oppsatt visningstidspunkt eller tidspunkt ikke passer, kontakt megler.
VisningspåmeldingOm boligen
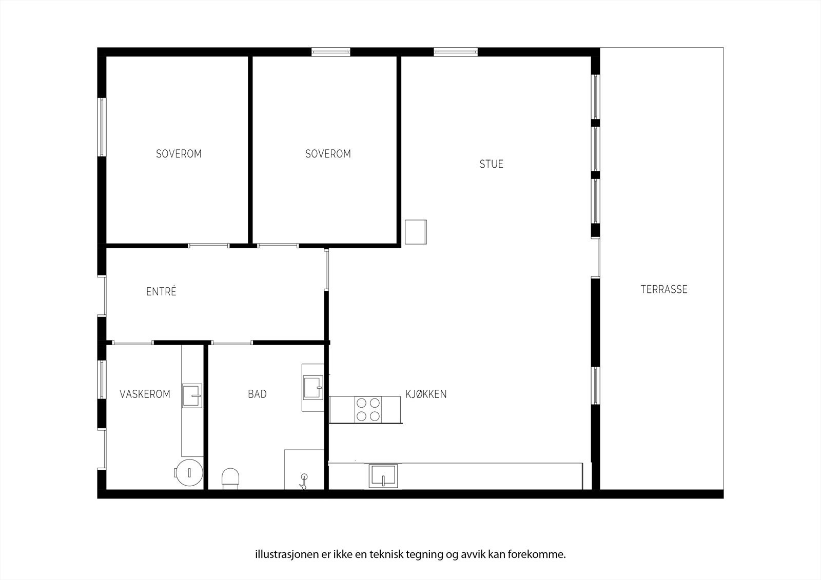
Velkommen til Åkerveien 8A - en moderne bolig fra 2024 som legger til rette for en enkel og behagelig hverdag. Boligen har lyse overflater og en praktisk planløsning på én flate med god flyt. Her får du entré, lys og åpen stue- og kjøkkenløsning med påkostet innredning og utgang til terrasse, samt bad, vaskerom og to soverom hvor hovedsoverommet har en smart garderobeløsning.
Eiendommen ligger landlig og idyllisk til i vakre Sigdal, like utenfor Prestfoss sentrum. Et rolig og barnevennlig område med kort gangavstand til barnehage, skole, idrettspark, aktivitetshall og bussforbindelse.
Kun en kort kjøretur til både Prestfoss og Åmot med butikker, caféer og servicetilbud. Her bor du tett på naturen, med flotte turmuligheter året rundt og kort vei til Soneren med båtliv og badestrand.
Eiendommen ligger landlig og idyllisk til i vakre Sigdal, like utenfor Prestfoss sentrum. Et rolig og barnevennlig område med kort gangavstand til barnehage, skole, idrettspark, aktivitetshall og bussforbindelse.
Kun en kort kjøretur til både Prestfoss og Åmot med butikker, caféer og servicetilbud. Her bor du tett på naturen, med flotte turmuligheter året rundt og kort vei til Soneren med båtliv og badestrand.
NB: Knappen for å vise hele beskrivelsen har kun en visuell effekt.
NB: Knappen for å vise hele beskrivelsen har kun en visuell effekt.
Salgsoppgaven beskriver vesentlig og lovpålagt informasjon om eiendommen
Se komplett salgsoppgaveNyttige lenker
Nærområdet
EiendomsMegler 1 Modum
et foretak i SpareBank 1 Sør-Norge konsernet
Annonseinformasjon
| FINN-kode | 435987067 |
|---|---|
| Sist endret | 06. feb. 2026 08:13 |
| Referanse | 2870250068 |
Annonsene kan være mangelfulle i forhold til lovpålagt opplysningsplikt. Før bindende avtale inngås oppfordres interessenter til å innhente komplett informasjon fra meglerforetaket, selger eller utleier.

























