Bildegalleri

Dette er en leilighet som er like praktisk som den er elegant.
Ved Sentrum
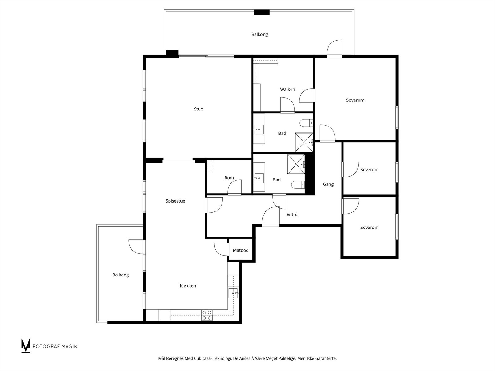
Eksklusiv 4-roms leilighet på 145 kvm i 8. etasje - Høyt og fritt over byens tak - Fantastiske sol og utsiktsforhold
Prisantydning4 990 000 kr
Nøkkelinfo
- Boligtype
- Leilighet
- Eieform
- Andel
- Soverom
- 3
- Internt bruksareal
- 145 m² (BRA-i)
- Bruksareal
- 160 m²
- Eksternt bruksareal
- 5 m² (BRA-e)
- Innglasset balkong
- 10 m² (BRA-b)
- Etasje
- 8
- Byggeår
- 2024
- Energimerking
- B - Mørkegrønn
- Rom
- 5
- Tomteareal
- 644 m² (eiet)
Fasiliteter
Balkong/Terrasse
Bredbåndstilknytning
Garasje/P-plass
Heis
Rolig
Sentralt
Utsikt
Balansert ventilasjon
Visning
For å delta på visning, ber vi om at du melder deg på. Da sikrer vi at du får nødvendig informasjon og at det er satt av tilstrekkelig med tid. Kontakt megler dersom annet tidspunkt ønskes. Husk å lese salgsoppgaven før visningen, så du stiller forberedt. NB. Visning utgår dersom det ikke er noen påmeldte.
Ønsker du kun å bli holdt orientert, kan du fra eiendommens hjemmeside få varsel om solgtpris, eller kontakte megler.
VisningspåmeldingOm boligen
Eksklusiv og romslig leilighet i hjertet av Sandefjord.
Velkommen til en helt unik leilighet som kombinerer moderne komfort, førsteklasses standard og en utsikt som må oppleves! Denne eksklusive 4-roms leiligheten på hele 145 kvm ligger i 8. etasje høyt og fritt over byens tak med fantastiske solforhold til langt på kveld.
Leiligheten har aldri vært bebodd, og fremstår derfor som helt ny. Her møtes du av store vindusflater som slipper inn rikelig med naturlig lys og gir en luftig og åpen atmosfære. Den gjennomtenkte planløsningen byr på romslige oppholdsrom, moderne kjøkken med integrerte hvitevarer, delikate baderom og gode soverom med rikelig plass. Dette er et hjem som er like praktisk som det er elegant.
Fra den private balkongen får du en imponerende utsikt over sentrum.
Velkommen til en helt unik leilighet som kombinerer moderne komfort, førsteklasses standard og en utsikt som må oppleves! Denne eksklusive 4-roms leiligheten på hele 145 kvm ligger i 8. etasje høyt og fritt over byens tak med fantastiske solforhold til langt på kveld.
Leiligheten har aldri vært bebodd, og fremstår derfor som helt ny. Her møtes du av store vindusflater som slipper inn rikelig med naturlig lys og gir en luftig og åpen atmosfære. Den gjennomtenkte planløsningen byr på romslige oppholdsrom, moderne kjøkken med integrerte hvitevarer, delikate baderom og gode soverom med rikelig plass. Dette er et hjem som er like praktisk som det er elegant.
Fra den private balkongen får du en imponerende utsikt over sentrum.
NB: Knappen for å vise hele beskrivelsen har kun en visuell effekt.
NB: Knappen for å vise hele beskrivelsen har kun en visuell effekt.
Salgsoppgaven beskriver vesentlig og lovpålagt informasjon om eiendommen
Se komplett salgsoppgaveNyttige lenker
Nærområdet
Krogsveen Sandefjord
Verdien av en god megler.
Annonseinformasjon
| FINN-kode | 435893915 |
|---|---|
| Sist endret | 06. feb. 2026 11:30 |
| Referanse | KR22.25435 |
Annonsene kan være mangelfulle i forhold til lovpålagt opplysningsplikt. Før bindende avtale inngås oppfordres interessenter til å innhente komplett informasjon fra meglerforetaket, selger eller utleier.













































